310 - 90 Collier Street, Barrie, Ontario L4M 0J3

Listed for:
$19
0 beds
0 baths
Listed 33 days ago
Offices for rent: 310 - 90 Collier Street, Barrie, Ontario L4M 0J3

View all 6 photos

Learn more about this property
More info:
Sutton Group Innovative Realty Inc.
MLS® number:
S8135304
Agent:
Darya Strilyana
Phone:
*Indicates required field
Name is required
Email is required
Please enter a valid phone number (e.g., 416-111-1111).

About

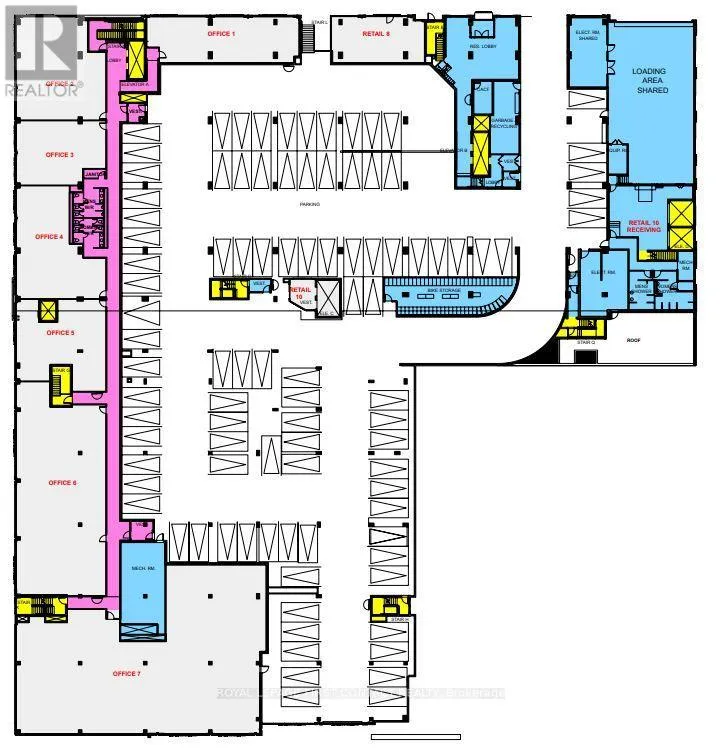
Mulcaster/Collier Discover premier office spaces in downtown Barrie, now locally owned and managed. Situated on the 3rd floor. Located across from City Hall, they offer close proximity to other professional businesses, and the Barrie Courthouse is just a minute's walk away. Additionally, enjoy the advantage of being near the lake, parks, and restaurants, making it an ideal spot in the City Center. Sizes are flexible to meet various needs, and can be combined for additional space where available. There are picturesque views of the lake and/or city through ample windows. Negotiable TI allowance possible with a 5 year lease. Occupancy will be determined based on size, location, and leasehold requirements. **EXTRAS** Note: measurements may not be entirely accurate. Adjustments and modifications to the premises may affect the final dimensions. Premise will be measured by BOMA standards prior to execution of lease. TMI to be assessed. (id:27476)

Property Highlights

MLS® Number
S8135304
Type
Office
Community Name
City Centre

Building

Building Type
Offices
Square Footage
1770 sqft
Amenities
Public Transit
Fireplace Present
No
Basement Type
Basement Features
Building Heating Type
Forced air
Heating Fuel
Natural gas
Building Cooling Type
Fully air conditioned

Utilities

Water
Municipal water

Location

Street Spotlight - For lease