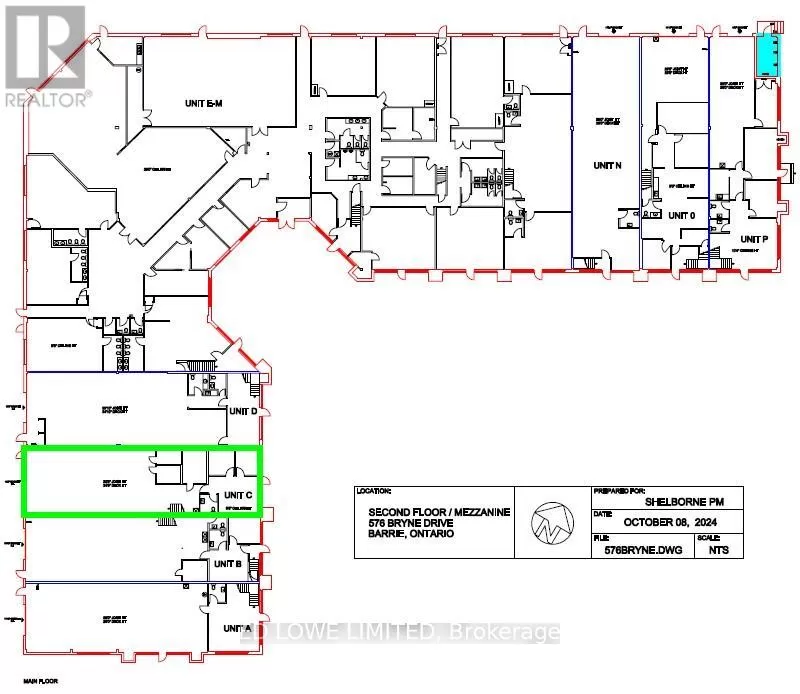
C - 576 Bryne Drive, Barrie, Ontario L4N 9P6

Listed for:
$15
0 beds
1 baths
Listed 153 days ago
Multi-Tenant Industrial for rent: C - 576 Bryne Drive, Barrie, Ontario L4N 9P6

View all 12 photos

Learn more about this property
More info:
Sutton Group Innovative Realty Inc.
MLS® number:
S12227008
Agent:
Darya Strilyana
Phone:
*Indicates required field
Name is required
Email is required
Please enter a valid phone number (e.g., 416-111-1111).

About

Cross Streets: Mapleview/Bryne Dr. ** Directions: Hwy 400, Mapleview W to Bryne Dr. 2442 s.f. of Industrial space for lease good for retail office use. Close to Walmart, Galaxy Cineplex, shopping, restaurants and highway 400 access. 574s.f. of mezzanine space available for additional rent of $150/mo increasing by $50/mo annually. $15.95/s.f./yr & TMI $5.69/s.f./yr + HST Tenant pays utilities. (id:27476)

Property Highlights

MLS® Number
S12227008
Type
Industrial
Community Name
400 West
Land Size
N/A

Building

Building Type
Multi-Tenant Industrial
Square Footage
2442 sqft
Bathrooms Total
1
Amenities
Highway, Public Transit
Fireplace Present
No
Basement Type
Basement Features
Building Heating Type
Forced air
Heating Fuel
Natural gas
Building Cooling Type
Partially air conditioned

Utilities

Water
Municipal water

Location