1 - 4 Patterson Road, Barrie, Ontario L4N 5P7

Listed for:
$14
0 beds
1 baths
Listed 109 days ago
1 - 4 Patterson Road, Barrie, Ontario L4N 5P7

View all 15 photos

About

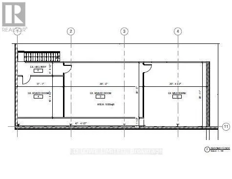
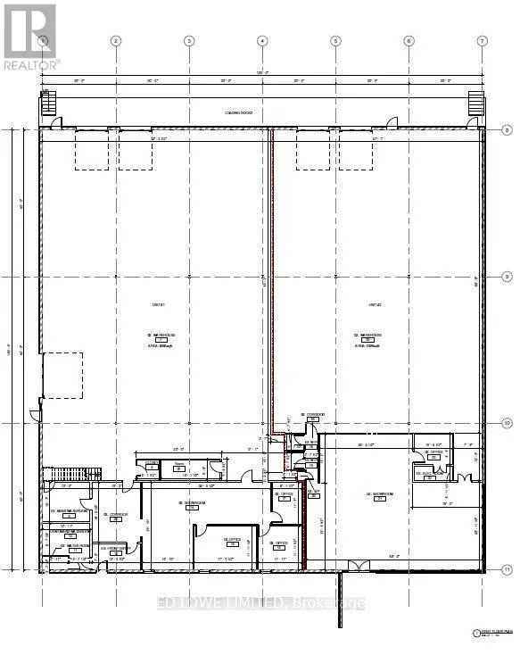
Corner Of Tiffin St & Patterson 14,980 s.f. Well-maintained free-standing industrial building offering excellent functionality and access. Multiple loading options - 4 Dock-Level Doors (10' x 10')1 Oversized Grade-Level Door. Suitable for warehousing, light manufacturing, or logistics. Ample yard and maneuvering space. Tenant responsible for maintenance and property taxes. Great location with convenient access to major transportation routes. Building height is 19' 8" to underside of soffit and 25' to the underside of the roof at the peak. (id:27476)

Property Highlights

MLS® Number
S12487974
Type
Industrial
Community Name
400 North

Building

Square Footage
14980 sqft
Bathrooms Total
1
Fireplace Present
No
Basement Type
Basement Features
Building Heating Type
Other
Heating Fuel
Building Cooling Type
Partially air conditioned

Utilities

Water
Municipal water

Location

Learn more about this property
More info:
Sutton Group Innovative Realty Inc.
MLS® number:
S12487974
Agent:
Darya Strilyana
Phone:
*Indicates required field
Name is required
Email is required
Please enter a valid phone number (e.g., 416-111-1111).