90 Birkhall Place, Barrie, Ontario L4N 0K2

Listed for:
$1,249,900
5 beds
4 baths
Listed 7 days ago
House for rent: 90 Birkhall Place, Barrie, Ontario L4N 0K2

View all 50 photos

Learn more about this property
More info:
Sutton Group Innovative Realty Inc.
MLS® number:
S12508958
Agent:
Darya Strilyana
Phone:
*Indicates required field
Name is required
Email is required
Please enter a valid phone number (e.g., 416-111-1111).

About

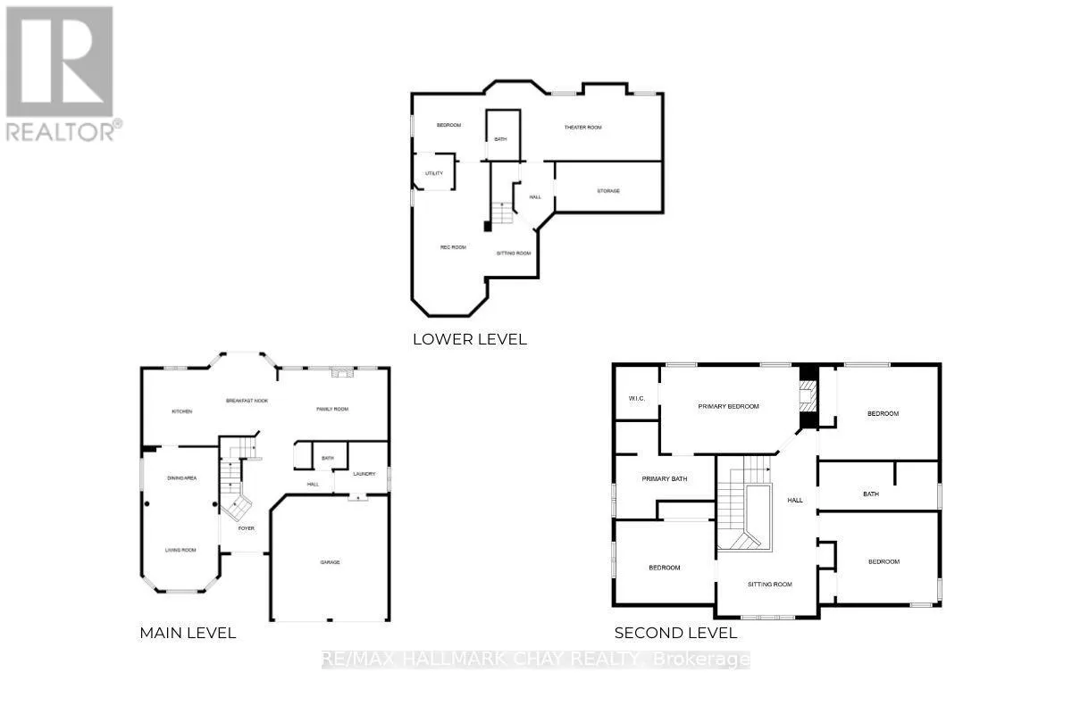
Cross Streets: Big Bay Point Rd/Sandringham Dr/Birkhall Pl. ** Directions: Big Bay Point Road to Sandringham Dr. Welcome to 90 Birkhall Place - an EXCEPTIONAL home in the sought-after family-centric community of Innis-shore in Barrie. Offering stunning curb appeal as one of the larger lots of the neighbourhood, this professionally landscaped property backs onto lush trails, tranquil green space, and a serene stream. Bold, elegant foyer with double door entry, open to above, leads into this meticulously maintained, upgraded 3,600+ sqft of finished living space offering 4+1 bedrooms, 3+1 bathrooms, full finished lower level. Extend your functional living space outdoors and appreciate the added luxury of your own personal swim spa. From tranquil morning coffee to al fresco dinners with loved ones, this backyard is more than a feature -it's a lifestyle. With high-end finishes throughout this home, you will notice attention to detail, style and function at every turn. Pride of ownership and thoughtful design is evident with seamless flow from room to room and updates that elevate both style & comfort. Chef-inspired kitchen boasts stunning two-tone cabinetry, quartz countertops, undermount sink, porcelain floor tiles, waterfall island, bev fridge, plenty of cabinets, as well as top-tier appliances, perfect for everyday meals & gourmet creations. Walk out to expansive rear deck from bright breakfast room. Family rm feature wall with chic b/I shelves, cozy gas fireplace for cooler evenings, accent windows - overlooking the fully fenced private rear yard. Combined living/dining features hardwood floor, two-story windows, crown moulding, decorative columns -pure sophistication. Private zone of this home offers a flexible loft space -home office, study zone -the choice is yours. Spacious primary suite with gas fireplace, spa-like ensuite, abundance of closet space. Three bedrooms, main bath complete the upper level. Full, finished lower level extends your interior living space further with an additional bedroom and full bath, spacious rec room with pool table and entertainment station. (id:27476)

Property Highlights

MLS® Number
S12508958
Type
Single Family
Community Name
Innis-Shore
Ownership Type
Freehold
Land Size
41.4 x 154.3 FT|under 1/2 acre
Parking Space Total
6

Building

Building Type
House
Storeys
2.00
Square Footage
2500 - 3000 sqft
Bathrooms Total
4
Bedrooms Above Ground
4
Bedrooms Total
5
Amenities
Public Transit, Park, Hospital
Exterior Finish
Stucco, Vinyl siding
Fireplace Present
Yes
Basement Type
Full (Finished)
Basement Features
Building Heating Type
Forced air
Heating Fuel
Natural gas
Building Cooling Type
Central air conditioning

Utilities

Water
Municipal water
Utility Sewer
Sanitary sewer

Room Layout

Bedroom 3
Second level
3.7 m x 3.1 m
Bedroom 4
Second level
4.4 m x 3.7 m
Bathroom
Second level
4.3 m x 1.7 m
Primary Bedroom
Second level
4.88 m x 3.05 m
Bathroom
Second level
1.6 m x 3.6 m
Bedroom 2
Second level
3.6 m x 3.4 m
Recreational, Games room
Lower level
7.3 m x 3.6 m
Games room
Lower level
6.7 m x 3.2 m
Bedroom 5
Lower level
3.3 m x 3.2 m
Bathroom
Lower level
2.3 m x 1.5 m
Kitchen
Main level
5.7 m x 3.66 m
Dining room
Main level
3.7 m x 2.6 m
Family room
Main level
5.3 m x 3.5 m
Living room
Main level
4.1 m x 3.7 m
Laundry room
Main level
2.4 m x 1.8 m
Bathroom
Main level
1.6 m x 1.2 m

Location