81 Innisfil Street, Barrie, Ontario L4N 3E3

Listed for:
$1,149,900
11 beds
6 baths
Listed 59 days ago
Other for rent: 81 Innisfil Street, Barrie, Ontario L4N 3E3

View all 13 photos

About

Cross Streets: Victoria St/Innisfil St. ** Directions: Bradford St/Victoria St/Innisfil St. UNBEATABLE INVESTMENT OPPORTUNITY IN BARRIE'S LAKESHORE DISTRICT - RARE LEGAL MULTIPLEX WITH RELIABLE CASH FLOW & STRONG FUTURE GROWTH POTENTIAL! Outstanding opportunity to acquire a legal income-generating multiplex in one of Barrie's most coveted Lakeshore locations, just steps from Kempenfelt Bay and Centennial Beach. Within walking distance of restaurants, shopping, parks, and Barrie's vibrant downtown core filled with entertainment, community events, and waterfront activities, this property truly delivers on lifestyle and convenience. The location also offers excellent connectivity with quick access to the Allandale Waterfront GO Station, local transit routes, and Highway 400. The main front unit features a charming covered porch, a generous yard, a bright, open eat-in kitchen and living room, three upper-level bedrooms, and a full bath. Comfort is assured with forced-air heating and central air conditioning. Behind it, the rear fourplex offers four well-designed units, each with an eat-in kitchen, open living space, two bedrooms, and a full bath, all heated with electric baseboards. With an extended driveway providing ample parking, separate entrances and utility metres, individual storage for every unit, and all kitchen appliances included, this versatile property generates reliable income with plenty of potential for upgrades and future growth. Properties of this scale and in such a prime location are rarely available - secure this exceptional investment today and reap the rewards for years to come! (id:27476)

Property Highlights

MLS® Number
S12558156
Type
Multi-family
Community Name
Sanford
Land Size
66 x 165 FT ; 65.78 X 163.32 X 66.01 ft|under 1/2 acre
Parking Space Total
6

Building

Building Type
Other
Storeys
2.00
Square Footage
3500 - 5000 sqft
Bathrooms Total
6
Bedrooms Above Ground
11
Bedrooms Total
11
Amenities
Separate Electricity Meters Park, Public Transit, Schools, Beach
Exterior Finish
Brick, Vinyl siding
Fireplace Present
No
Basement Type
Full
Basement Features
Separate entrance
Building Heating Type
Forced air
Heating Fuel
Natural gas
Building Cooling Type
Central air conditioning

Utilities

Water
Municipal water
Utility Sewer
Sanitary sewer

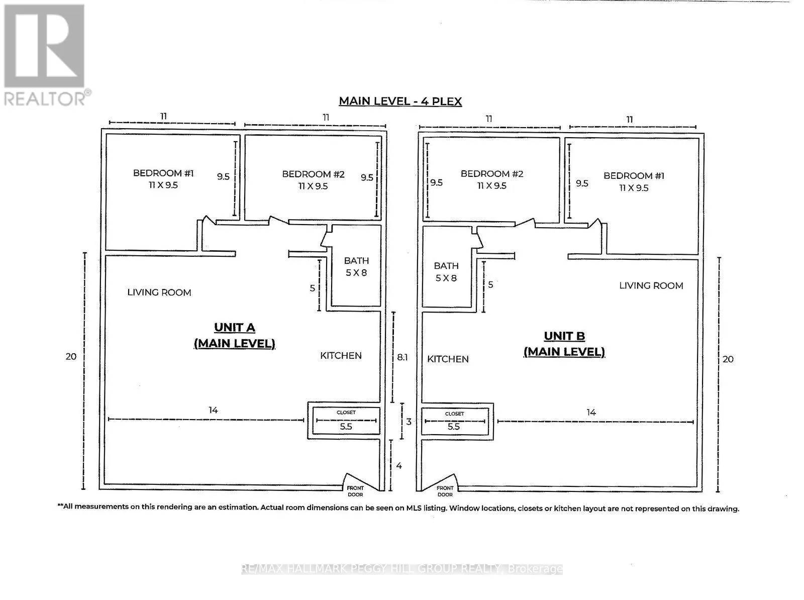
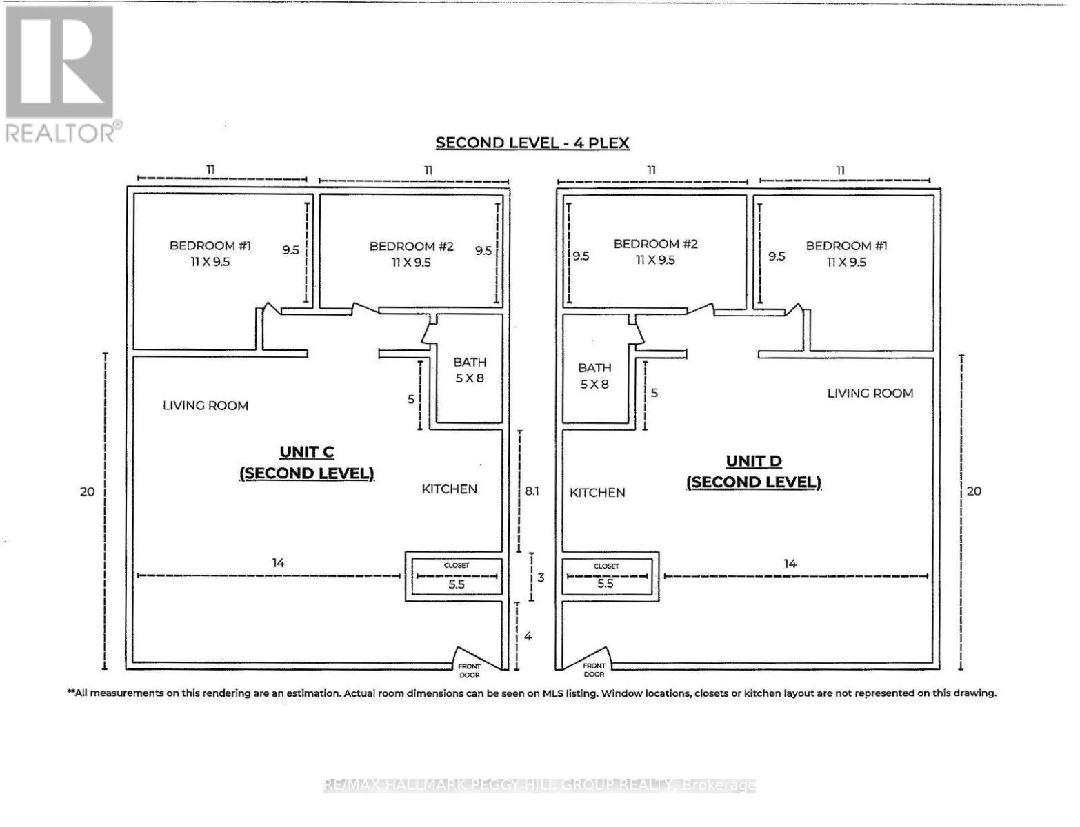
Room Layout

Kitchen
Second level
2.46 m x 1.65 m
Living room
Second level
4.27 m x 6.1 m
Bedroom
Second level
3.35 m x 2.87 m
Bedroom
Second level
3.35 m x 2.87 m
Kitchen
Second level
2.46 m x 1.65 m
Living room
Second level
4.27 m x 6.1 m
Bedroom
Second level
3.35 m x 2.87 m
Bedroom
Second level
3.35 m x 2.87 m
Bedroom
Second level
3.71 m x 3.1 m
Bedroom
Second level
4.01 m x 3.66 m
Bedroom
Second level
2.82 m x 2.64 m
Foyer
Main level
1.96 m x 3.66 m
Kitchen
Main level
2.46 m x 1.65 m
Living room
Main level
4.27 m x 6.1 m
Bedroom
Main level
3.35 m x 2.87 m
Bedroom
Main level
3.35 m x 2.87 m
Kitchen
Main level
6.43 m x 3.73 m
Living room
Main level
3.66 m x 3.73 m
Kitchen
Main level
2.46 m x 1.65 m
Living room
Main level
4.27 m x 6.1 m
Bedroom
Main level
3.35 m x 2.87 m
Bedroom
Main level
3.35 m x 2.87 m

Location

Learn more about this property
More info:
Sutton Group Innovative Realty Inc.
MLS® number:
S12558156
Agent:
Darya Strilyana
Phone:
*Indicates required field
Name is required
Email is required
Please enter a valid phone number (e.g., 416-111-1111).