300 - 152 Bayfield Street, Barrie, Ontario L4M 3B5

Listed for:
$14
0 beds
0 baths
Listed 163 days ago
Offices for rent: 300 - 152 Bayfield Street, Barrie, Ontario L4M 3B5

View all 15 photos

About

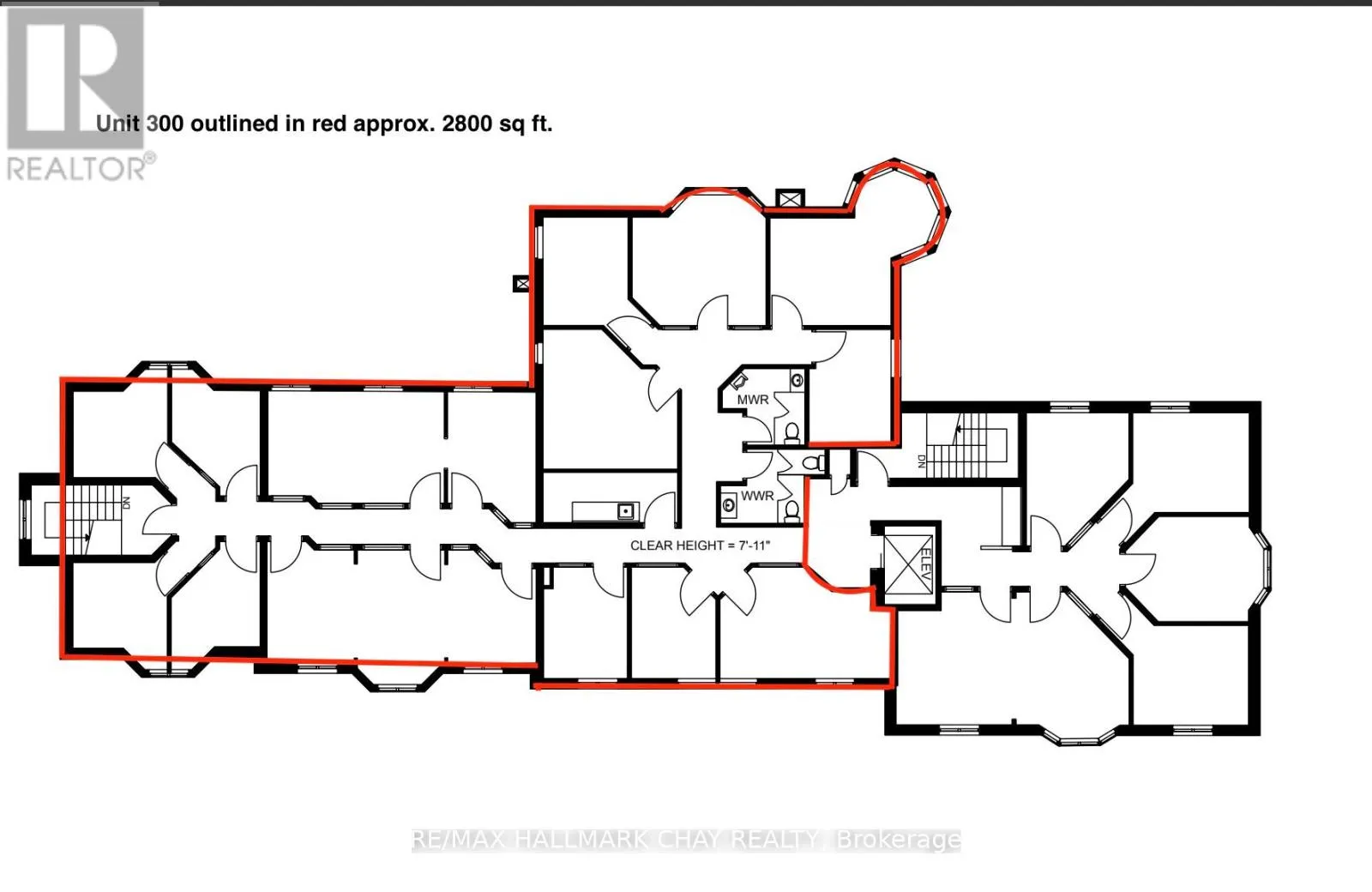
Cross Streets: Bayfield/Wellington. ** Directions: Bayfield St. at Wellington St. Approx. 2800 Sq Ft available on the top floor of this attractive Professional Office building. Located within close proximity to Downtown Barrie. Several private offices/meeting rooms all with an abundance of natural light. Area can be opened up to create larger work spaces. Includes a kitchen area and two washrooms. Elevator access. Parking available on site. Centrally located to Downtown Barrie's amenities as well as public transportation options and easy access to Hwy. 400. TMI $10.13 includes utilities. (id:27476)

Property Highlights

MLS® Number
S12603626
Type
Office
Community Name
City Centre

Building

Building Type
Offices
Square Footage
2800 sqft
Fireplace Present
No
Basement Type
Basement Features
Building Heating Type
Hot water radiator heat
Heating Fuel
Natural gas
Building Cooling Type
Fully air conditioned

Utilities

Water
Municipal water

Location

Learn more about this property
More info:
Sutton Group Innovative Realty Inc.
MLS® number:
S12603626
Agent:
Darya Strilyana
Phone:
*Indicates required field
Name is required
Email is required
Please enter a valid phone number (e.g., 416-111-1111).

Street Spotlight - For lease