54 Eugenia Street, Barrie, Ontario L4M 3T5

Listed for:
$1,189,900
5 beds
3 baths
Listed 50 days ago
House for rent: 54 Eugenia Street, Barrie, Ontario L4M 3T5

View all 49 photos

About

Cross Streets: Dundonald. ** Directions: Codrington Street to Dundonald Street to Eugenia Street. Located in the highly sought-after Codrington neighbourhood, this extensively renovated home has been transformed into a modern, functional, and beautifully designed home to meet today's lifestyle needs. The main floor offers a spacious, open-concept living, dining, and kitchen area with a bright, expansive flow. Southern-facing windows fill the space with natural light, while the chef-inspired kitchen features a large center island, quality finishes, and seamless connection to the living areas. Engineered hardwood flooring, upgraded fixtures, and lighting enhance the contemporary feel throughout. The second level offers three generously sized bedrooms with engineered hardwood floors, pot lights, large windows, and a stylish 4-piece bathroom. The third level adds two additional bedrooms, a den, and a full 3-piece bathroom-perfect for teens, guests, or a flexible work-from-home space. The fully finished fourth level provides even more functionality, featuring an additional family room, a second kitchen or wet bar area, a newly renovated 3-piece bathroom, storage, and a laundry room, creating excellent potential for in-law accommodation or extended-family living. Outside, the landscaped lot is equally impressive, offering irrigation, mature trees, perennials, a patio, and dedicated BBQ areas. The home is further enhanced by an oversized single garage with inside entry and a paved driveway for four vehicles. A convenient side-door entrance offers potential for a private in-law suite or professional home office. Upgrades include: furnace (2023), A/C (2024), windows and doors (2023), interior renovations (2023-2024), deck and railing (2024), and shingles (2017). Additionally, the seller has approved building plans and drawings for a detached double garage addition, adding further value and future potential. A rare opportunity to own a stylish and timeless property in one of the city's most desirable neighbourhoods. (id:27476)

Property Highlights

MLS® Number
S12700376
Type
Single Family
Community Name
Codrington
Ownership Type
Freehold
Land Size
70 x 131.1 FT ; 70.16ft x130.99ft x 70.00 ft x 131.02 ft
Parking Space Total
5

Building

Building Type
House
Square Footage
2000 - 2500 sqft
Bathrooms Total
3
Bedrooms Above Ground
5
Bedrooms Total
5
Amenities
Fireplace(s)
Exterior Finish
Brick, Vinyl siding
Fireplace Present
Yes
Basement Type
N/A (Finished)
Basement Features
Building Heating Type
Forced air
Heating Fuel
Natural gas
Building Cooling Type
Central air conditioning

Utilities

Water
Municipal water
Utility Sewer
Sanitary sewer

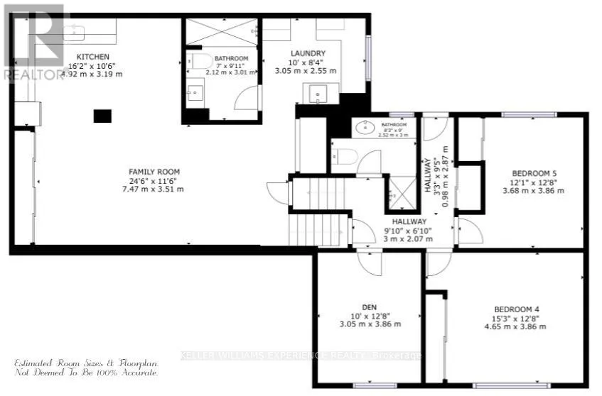
Room Layout

Bathroom
Second level
2.67 m x 2.97 m
Primary Bedroom
Second level
4.04 m x 4.14 m
Bedroom 2
Second level
4.04 m x 3.96 m
Bedroom 3
Second level
3.25 m x 3.96 m
Den
Third level
3.05 m x 3.86 m
Bathroom
Third level
2.52 m x 3 m
Bedroom 4
Third level
3.68 m x 3.86 m
Bedroom 5
Third level
4.65 m x 3.86 m
Kitchen
Lower level
4.92 m x 3.19 m
Kitchen
Main level
6.2 m x 3.33 m
Dining room
Main level
4.17 m x 3.26 m
Living room
Main level
6.92 m x 3.91 m

Location

Learn more about this property
More info:
Sutton Group Innovative Realty Inc.
MLS® number:
S12700376
Agent:
Darya Strilyana
Phone:
*Indicates required field
Name is required
Email is required
Please enter a valid phone number (e.g., 416-111-1111).

Community Spotlight: Homes For sale in Your Neighborhood