69 Alaskan Heights, Barrie, Ontario L9J 0H9

Listed for:
$749,900
3 beds
3 baths
Listed 11 days ago
House for rent: 69 Alaskan Heights, Barrie, Ontario L9J 0H9

View all 26 photos

About

ESSA TO MABERN TO FRANKLIN TO ALASKAN HEIGHTS Welcome to 69 Alaskan Heights, a beautifully maintained two-story home nestled in the sought-after, family-friendly Bear Creek community of South Barrie. Offering over 1,500 square feet of thoughtfully designed living space, this home features 3 bedrooms, 3 bathrooms, ideal for growing families or those in need of versatile spaces. Step inside to discover a bright, open-concept layout that's perfect for both daily living and entertaining. The home is enhanced by premium hardwood flooring, and a striking oak staircase. The stylish kitchen is a chefs dream, boasting quartz countertops, stainless steel appliances, a gas range, modern ceramic backsplash and pot lights. Retreat to the spacious primary bedroom complete with ensuite, featuring glass shower and elegant finishes. Outside, enjoy a single-car garage, spacious backyard, and a well-kept lawn, ready for summer barbecues or kids playtime. Conveniently located within walking distance to schools, parks, and trails, and just minutes from Highway 400, the GO Train, shopping, and Barrie's vibrant waterfront, this home offers the perfect blend of comfort, style, and accessibility. Don't miss your chance to call this exceptional property home! (id:27476)

Property Highlights

MLS® Number
S12811962
Type
Single Family
Community Name
Holly
Ownership Type
Freehold
Land Size
29 x 91 FT
Parking Space Total
3

Building

Building Type
House
Storeys
2.00
Square Footage
1500 - 2000 sqft
Bathrooms Total
3
Bedrooms Above Ground
3
Bedrooms Total
3
Amenities
Schools, Public Transit, Place of Worship
Exterior Finish
Brick
Fireplace Present
No
Basement Type
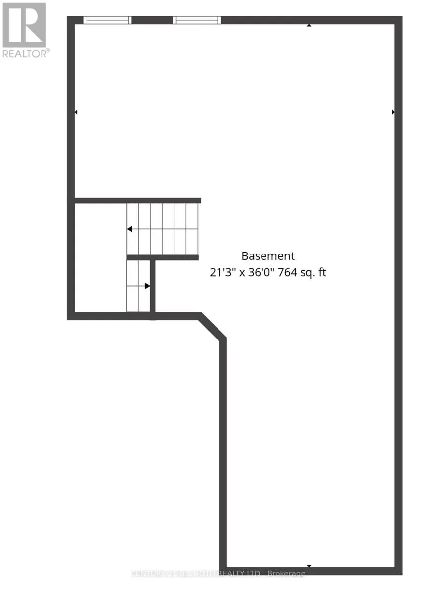
N/A (Unfinished)
Basement Features
Building Heating Type
Forced air
Heating Fuel
Natural gas
Building Cooling Type
Central air conditioning

Utilities

Water
Municipal water
Utility Sewer
Sanitary sewer

Room Layout

Primary Bedroom
Second level
5.12 m x 4.69 m
Bedroom
Second level
3.01 m x 3.96 m
Bedroom
Second level
3.41 m x 4.51 m
Bathroom
Second level
1.31 m x 3.13 m
Bathroom
Second level
1.31 m x 2.52 m
Recreational, Games room
Basement
6.49 m x 10.97 m
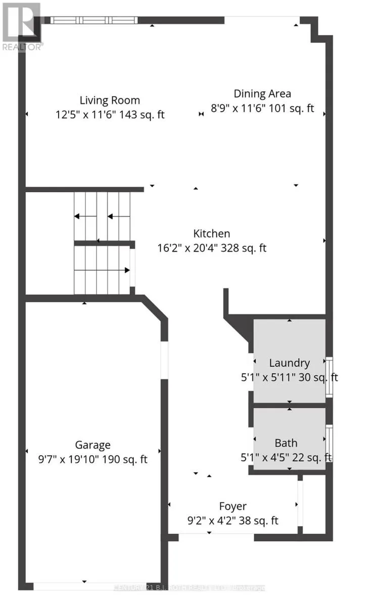
Living room
Main level
3.81 m x 3.53 m
Kitchen
Main level
4.93 m x 6.21 m
Dining room
Main level
2.71 m x 3.53 m
Laundry room
Main level
1.55 m x 1.55 m
Bathroom
Main level
1.55 m x 1.37 m

Location

Learn more about this property
More info:
Sutton Group Innovative Realty Inc.
MLS® number:
S12811962
Agent:
Darya Strilyana
Phone:
*Indicates required field
Name is required
Email is required
Please enter a valid phone number (e.g., 416-111-1111).