65 Donald Street, Barrie, Ontario L4N 1E5

Listed for:
$614,900
3 beds
1 baths
Listed 22 days ago
House for rent: 65 Donald Street, Barrie, Ontario L4N 1E5

View all 50 photos

About

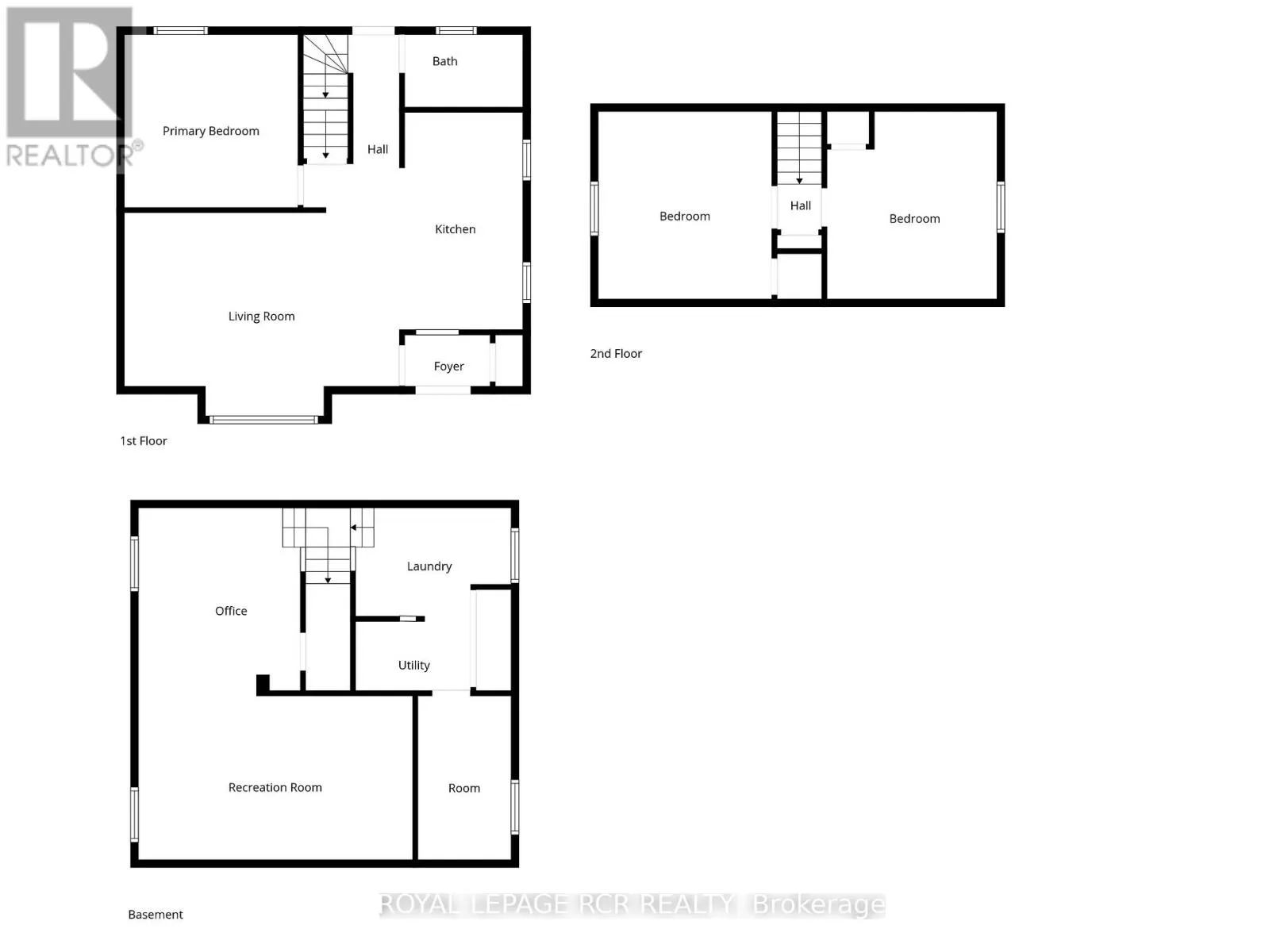
Cross Streets: Anne St N & Dunlop St W. ** Directions: Dunlop St W to Frances St N to Donald St. Welcome to this adorable 1.5-storey home full of character and thoughtful updates. Built in 1950, this well-maintained property features beautiful original hardwood floors and a functional layout that suits a variety of buyers. The main floor offers a primary bedroom and convenient 3-piece bathroom, ideal for those seeking main floor living. Upstairs you'll find two additional bedrooms, perfect for kids, guests, or a home office. The finished basement adds extra living space with a cozy family room, office area, laundry, and plenty of storage. Step outside to enjoy the covered back porch overlooking a fully fenced yard, offering a great space to relax or entertain. A detached single-car garage provides additional storage and parking. Important updates have already been completed, including roof (approx. 8 years), windows & doors, furnace, central air all 2010. Plus, a 200-amp breaker panel, giving peace of mind to the next owner. Conveniently located within walking distance to downtown Barrie, parks, and shopping. Available for quick possession, making this a fantastic opportunity for first-time buyers, downsizers, or investors. (id:27476)

Property Highlights

MLS® Number
S12872928
Type
Single Family
Community Name
Queen's Park
Ownership Type
Freehold
Land Size
50 x 150 FT
Parking Space Total
3

Building

Building Type
House
Storeys
1.50
Square Footage
700 - 1100 sqft
Bathrooms Total
1
Bedrooms Above Ground
3
Bedrooms Total
3
Amenities
Park, Public Transit
Exterior Finish
Vinyl siding
Fireplace Present
No
Basement Type
Full (Partially finished)
Basement Features
Building Heating Type
Forced air
Heating Fuel
Natural gas
Building Cooling Type
Central air conditioning

Utilities

Water
Municipal water
Utility Sewer
Sanitary sewer

Room Layout

Bedroom 2
Second level
3.41 m x 3.68 m
Bedroom 3
Second level
3.34 m x 3.68 m
Family room
Basement
5.38 m x 3.23 m
Office
Basement
4.15 m x 3.68 m
Laundry room
Basement
3.04 m x 2.12 m
Other
Basement
1.83 m x 3.22 m
Kitchen
Ground level
2.44 m x 4.26 m
Living room
Ground level
5.39 m x 3.98 m
Primary Bedroom
Ground level
3.41 m x 3.4 m

Location

Learn more about this property
More info:
Sutton Group Innovative Realty Inc.
MLS® number:
S12872928
Agent:
Darya Strilyana
Phone:
*Indicates required field
Name is required
Email is required
Please enter a valid phone number (e.g., 416-111-1111).