48 Barnyard Trail, Barrie, Ontario L9J 0C2

Listed for:
$799,000
4 beds
4 baths
Listed Today
House for rent: 48 Barnyard Trail, Barrie, Ontario L9J 0C2

View all 50 photos

About

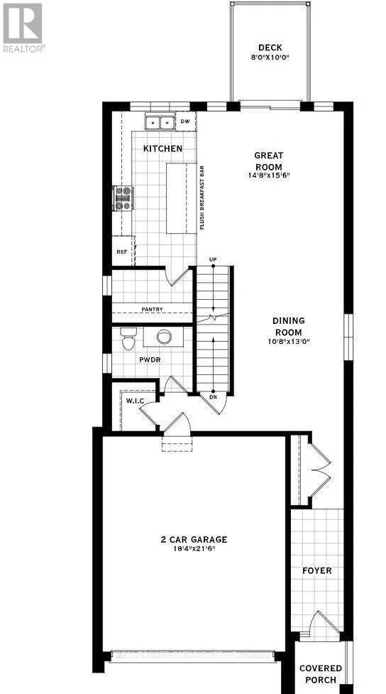
Mapleview Dr E & Lally Terrac Welcome to 48 Barnyard Trail - a beautifully upgraded brick and stone executive home nestled on a desirable corner lot in one of Barrie's fastest-growing communities. Hardwood floors, oversized windows, and a bright open-concept layout create a warm and inviting atmosphere throughout. The main floor is built for entertaining - a chef's kitchen with large island, breakfast bar, and dedicated pantry flows seamlessly into the great room, with a separate formal dining room and walkout to a private deck overlooking the fully fenced yard. Upstairs, the massive primary bedroom offers a private ensuite and generous his-and-her walk-in closets, while three additional bedrooms, a second ensuite rarely found in this community, a full bath, and a conveniently located second-floor laundry with laundry tub make everyday living effortless. The full unfinished basement with 3 piece rough-in and large above-grade windows is flooded with natural light and presents endless potential - rec room, home gym, or future ADU. All of this just minutes to Barrie South GO, Hwy 400, Metro, and Maple Ridge Secondary. 48 Barnyard Trail is one you have to see in person. (id:27476)

Property Highlights

MLS® Number
S12943690
Type
Single Family
Community Name
Rural Barrie Southeast
Ownership Type
Freehold
Land Size
41 x 91.8 FT
Parking Space Total
6

Building

Building Type
House
Storeys
2.00
Square Footage
2000 - 2500 sqft
Bathrooms Total
4
Bedrooms Above Ground
4
Bedrooms Total
4
Amenities
Park, Public Transit, Schools
Exterior Finish
Stone, Brick
Fireplace Present
No
Basement Type
Full (Unfinished)
Basement Features
Building Heating Type
Forced air
Heating Fuel
Natural gas
Building Cooling Type
Central air conditioning

Utilities

Water
Municipal water
Utility Sewer
Sanitary sewer

Room Layout

Primary Bedroom
Second level
5.28 m x 3.91 m
Bedroom 2
Second level
3.35 m x 2.74 m
Bedroom 3
Second level
3.61 m x 3.66 m
Bedroom 4
Second level
3.35 m x 3.66 m
Great room
Main level
4.72 m x 4.47 m
Dining room
Main level
3.96 m x 3.25 m
Kitchen
Main level
4.72 m x 3.35 m

Location

Learn more about this property
More info:
Sutton Group Innovative Realty Inc.
MLS® number:
S12943690
Agent:
Darya Strilyana
Phone:
*Indicates required field
Name is required
Email is required
Please enter a valid phone number (e.g., 416-111-1111).