450 Davis Side Road, Beckwith, Ontario K7A 4S7

Listed for:
$1,999,000
5 beds
3 baths
Listed 59 days ago
House for rent: 450 Davis Side Road, Beckwith, Ontario K7A 4S7

View all 48 photos

Learn more about this property
Listing provided by:
ROYAL LEPAGE TEAM REALTY
MLS® number:
X12417878
Agent:
Erica Young
*Indicates required field
Name is required
Email is required
Please enter a valid phone number (e.g., 416-111-1111).

About

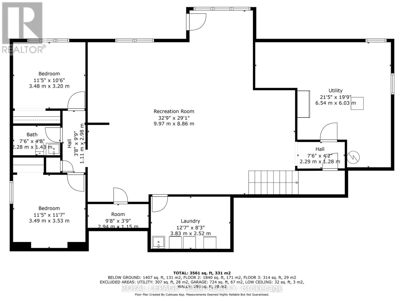
Cross Streets: Richmond Rd and Hwy 15. ** Directions: From Franktown, head northeast on Richmond Rd, turn left on Davis Sd Rd, property is at the very end of the street. Welcome to your dream country escape! Nestled on nearly 300 acres of pristine land, this exceptional 5-bedroom, 3-bathroom walk-out bungalow offers the perfect blend of comfort, quality, and opportunity. Built approx 10 years ago to the highest standards, this home features ICF construction from foundation to roofline, providing superior energy efficiency (ask about the R-value!) and incredible year-round comfort, topped with a lifetime steel roof for peace of mind. The spacious main floor boasts a high-end kitchen, with a bright dining area and walk-out to the elevated deck (ideal for morning coffee with wildlife views), a cozy living room, and three generous bedrooms including a private primary suite with ensuite bath. The two additional bedrooms share a full bath. A main floor office & bonus room above the garage give more flexibility. Below, the light-filled, walk-out basement offers radiant in-floor heating, two more bedrooms, a roughed in bathroom, and a family room that opens to a backyard oasis complete with a pond that freezes for winter skating & hockey. Dual heating systems, propane and a large outdoor wood furnace, keep utility bills in check. Cut your own wood from the land and heat the home for next to nothing! Radiant floor heating extends into the insulated triple car garage. The wood furnace is powerful enough to heat additional structures, offering excellent flexibility for future development. Outbuildings include a cabin with a wood stove and bunkbeds, perfect for guests or a rustic retreat. There's also a large barn with dual rafters for storage or hobby use. With hydro capacity to support a second home and zoning that permits one, the potential for expansion or multi-generational living is real.Trails wind through the landscape, teeming with deer, moose, turkey, and even the occasional bear, a true paradise for nature lovers, hunters, and those seeking peace and privacy. Contact the listing agent for a full list of premium construction details. (id:27476)

Property Highlights

MLS® Number
X12417878
Type
Single Family
Community Name
910 - Beckwith Twp
Ownership Type
Freehold
Land Size
3802 x 2764 Acre ; Yes|100+ acres
Parking Space Total
20

Building

Building Type
House
Storeys
1.00
Square Footage
2000 - 2500 sqft
Bathrooms Total
3
Bedrooms Above Ground
3
Bedrooms Total
5
Exterior Finish
Brick
Fireplace Present
Yes
Basement Type
N/A (Finished), N/A (Partially finished)
Basement Features
Walk out
Building Heating Type
Forced air
Heating Fuel
Other
Building Cooling Type
Central air conditioning

Utilities

Utility Sewer
Septic System

Location