63 S Church Street, Belleville, Ontario K8N 3B5

Listed for:
$349,900
0 beds
0 baths
Listed 97 days ago
63 S Church Street, Belleville, Ontario K8N 3B5

View all 15 photos

Learn more about this property
Listing provided by:
ROYAL LEPAGE PROALLIANCE REALTY
MLS® number:
X12426664
Agent:
Patricia Guernsey
*Indicates required field
Name is required
Email is required
Please enter a valid phone number (e.g., 416-111-1111).

About

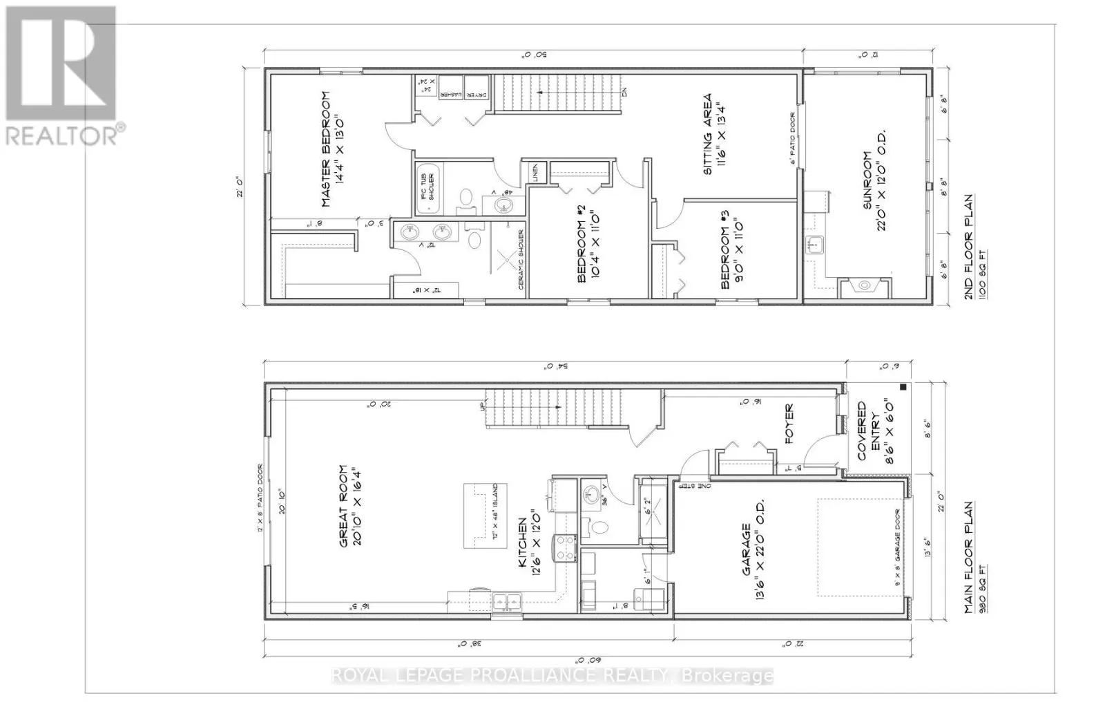
HWY 2 to S Church This rare south-end Belleville property offers a unique opportunity to build your dream home on a serviced lot complete with an existing 25' x 32' workshop featuring 10' ceilings. The seller has already paid for building permits, which are transferable, and is also willing to offer a short-term Vendor take back mortgage for added flexibility. The property is zoned R2-1, allowing for a single detached dwelling, an accessory unit, and the addition of a coach house - perfect for multi generational living, rental income or additional work space. A proposed custom home plan, designed specifically for this lot, is available and includes modern floor plans and elevations to show the full potential of the site. Highlights of this property are - Lot size 33.5ft x 170.18ft (approximately 5,862 sq ft) - No development charges if built within the next few years - Sewer to lot line ; hydro & gas available - Views of the Bay of Quinte, downtown and marina nearby Located in a quiet residential setting, this property is just minutes from shops, schools, parks and the waterfront. Enjoy boating, fishing, and trails along the Bay of Quinte, all while being close to Belleville's vibrant core. Don't miss the exceptional land opportunity in one of Belleville's most desirable areas! (id:27476)

Property Highlights

MLS® Number
X12426664
Type
Vacant Land
Community Name
Belleville Ward
Land Size
33.5 x 170.18 FT|under 1/2 acre
Parking Space Total
9

Building

Amenities
Park, Marina
Exterior Finish
Shingles, Wood
Fireplace Present
No
Basement Type
Basement Features
Building Heating Type
Heating Fuel
Building Cooling Type

Location

Community Spotlight: Homes For sale in Your Neighborhood