G - 1 Prince Of Wales Drive, Belleville, Ontario K8P 2T5

Listed for:
$2,200
3 beds
2 baths
Listed 3 days ago
Row / Townhouse for rent: G - 1 Prince Of Wales Drive, Belleville, Ontario K8P 2T5

View all 15 photos

Learn more about this property
Listing provided by:
CENTURY 21 GREEN REALTY INC.
MLS® number:
X12478480
Agent:
Servillano Mado
*Indicates required field
Name is required
Email is required
Please enter a valid phone number (e.g., 416-111-1111).

About

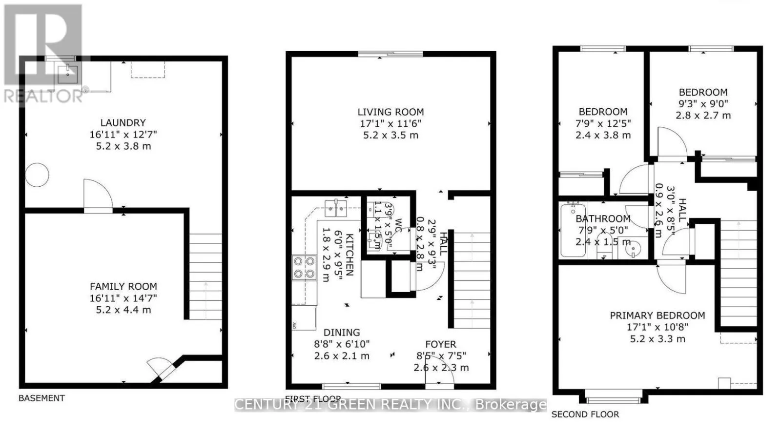
Prince Of Wales / College St A Place that you can call a home, a gorgeous 2-storey townhouse in the heart of Belleville that is conveniently located near all local amenities, public transit, and medical facilities. Main level you will find a kitchen/dining room, spacious living room with walkout to patio and fenced backyard and a 2-pc powder room. Upstairs houses 3-beds with closet space and a 4-pc bath. Currently, downstairs is a large family room and laundry room, but has potential to become whatever you desire with the large open space. An extensive list of updates including ductless heating/ac (2022), hot water tank owned (summer 2023), painted throughout (2022), fridge (summer 2023), dishwasher (2021), and washer and dryer (2021). Move Now!! The landlord welcome the short or a one year lease. (id:27476)

Property Highlights

MLS® Number
X12478480
Type
Single Family
Community Name
Belleville Ward
Ownership Type
Condominium/Strata
Parking Space Total
1

Building

Building Type
Row / Townhouse
Storeys
2.00
Square Footage
800 - 899 sqft
Bathrooms Total
2
Bedrooms Above Ground
3
Bedrooms Total
3
Amenities
Visitor Parking Park, Schools
Exterior Finish
Brick, Concrete
Fireplace Present
No
Basement Type
N/A (Finished)
Basement Features
Building Heating Type
Baseboard heaters
Heating Fuel
Electric
Building Cooling Type
Wall unit

Location