5 Sienna Avenue, Belleville, Ontario K8P 0E5

Listed for:
$1,450,000
8 beds
4 baths
Listed 109 days ago
Fourplex for rent: 5 Sienna Avenue, Belleville, Ontario K8P 0E5

View all 7 photos

About

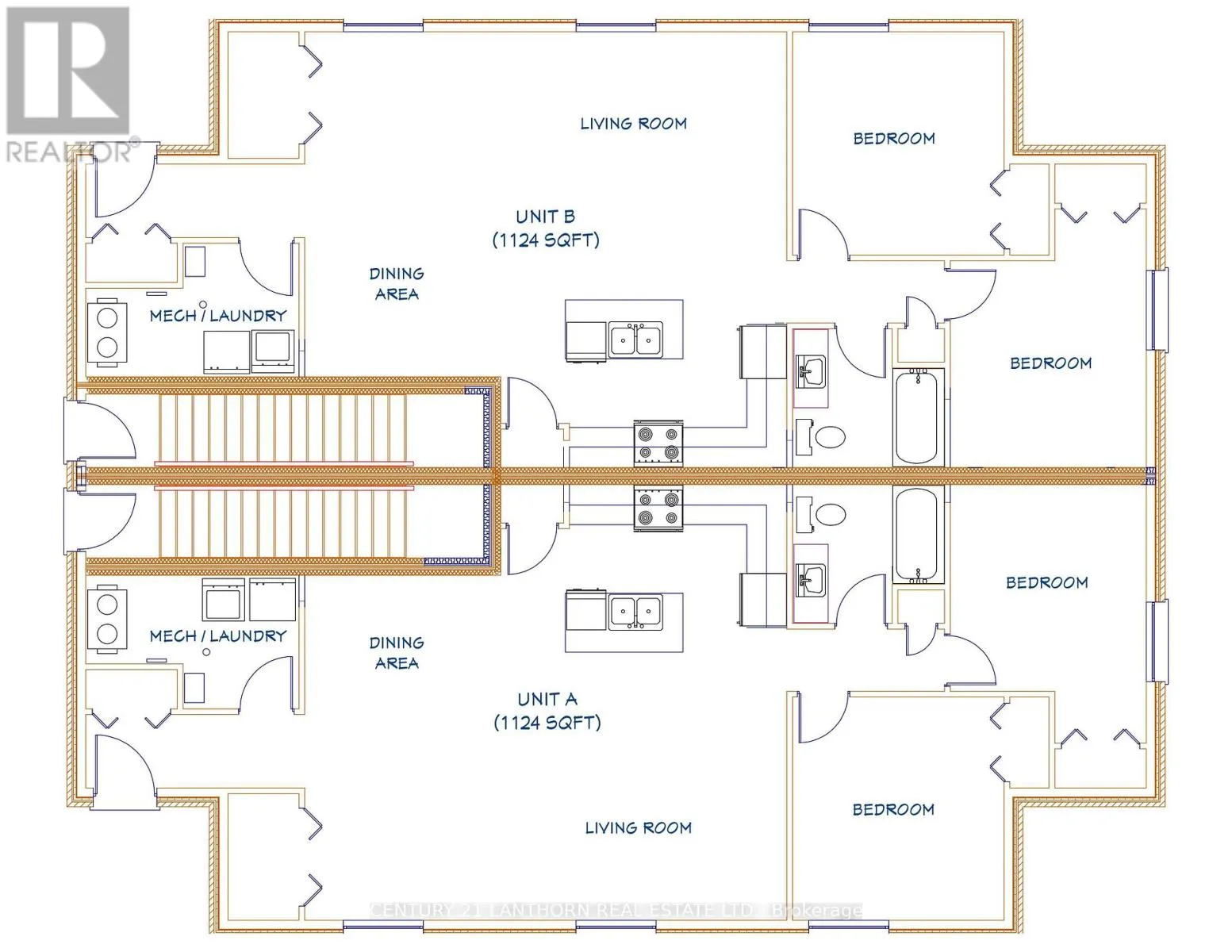
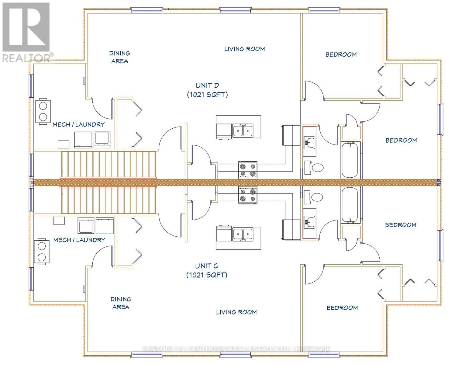
Cross Streets: Sienna Ave and Dundas Street West. ** Directions: Dundas Street West to Sienna Ave. INVEST IN POTTER'S CREEK! 5 Sienna is your best opportunity to own a wonderful, purpose-built, brand-new 4-plex right at the entrance of Potter's Creek. This location is so convenient for military personnel to get to the base, healthcare workers to get to the hospital, and access for everyone to all of Quinte's best amenities. PLUS! Being right on the corner of Dundas St, there is a prime opportunity to lease advertising space at a premium in the future. Each individual unit feature around 1,100 sq. ft of total living space, complete with 2 bedrooms, 1 bathroom, kitchen, laundry, and their own mechanical rooms and equipment. All utilities are separated and market rent for each unit is $2,200+utilities/month conservatively - giving you $105,600 in annual income! BONUS! Canada's new Purpose Built Rental Housing (PBRH) Rebate allow the buyer to apply for a FULL HST rebate, which would reduce the purchase price after closing to $1,283,186 - WOW, what a savings! Construction is under way now. (id:27476)

Property Highlights

MLS® Number
X12540074
Type
Multi-family
Community Name
Belleville Ward
Land Size
77.6 x 117.3 FT
Parking Space Total
4

Building

Building Type
Fourplex
Storeys
2.00
Square Footage
3500 - 5000 sqft
Bathrooms Total
4
Bedrooms Above Ground
8
Bedrooms Total
8
Exterior Finish
Vinyl siding
Fireplace Present
No
Basement Type
None
Basement Features
Building Heating Type
Heat Pump, Not known
Heating Fuel
Electric
Building Cooling Type
Central air conditioning

Utilities

Water
Municipal water
Utility Sewer
Sanitary sewer

Location

Learn more about this property
Listing provided by:
CENTURY 21 LANTHORN REAL ESTATE LTD.
MLS® number:
X12540074
Agent:
Ben Joslin
*Indicates required field
Name is required
Email is required
Please enter a valid phone number (e.g., 416-111-1111).