126 Hastings Park Drive, Belleville, Ontario K8P 0J4

Listed for:
$728,900
3 beds
2 baths
Listed 153 days ago
House for rent: 126 Hastings Park Drive, Belleville, Ontario K8P 0J4

View all 2 photos

About

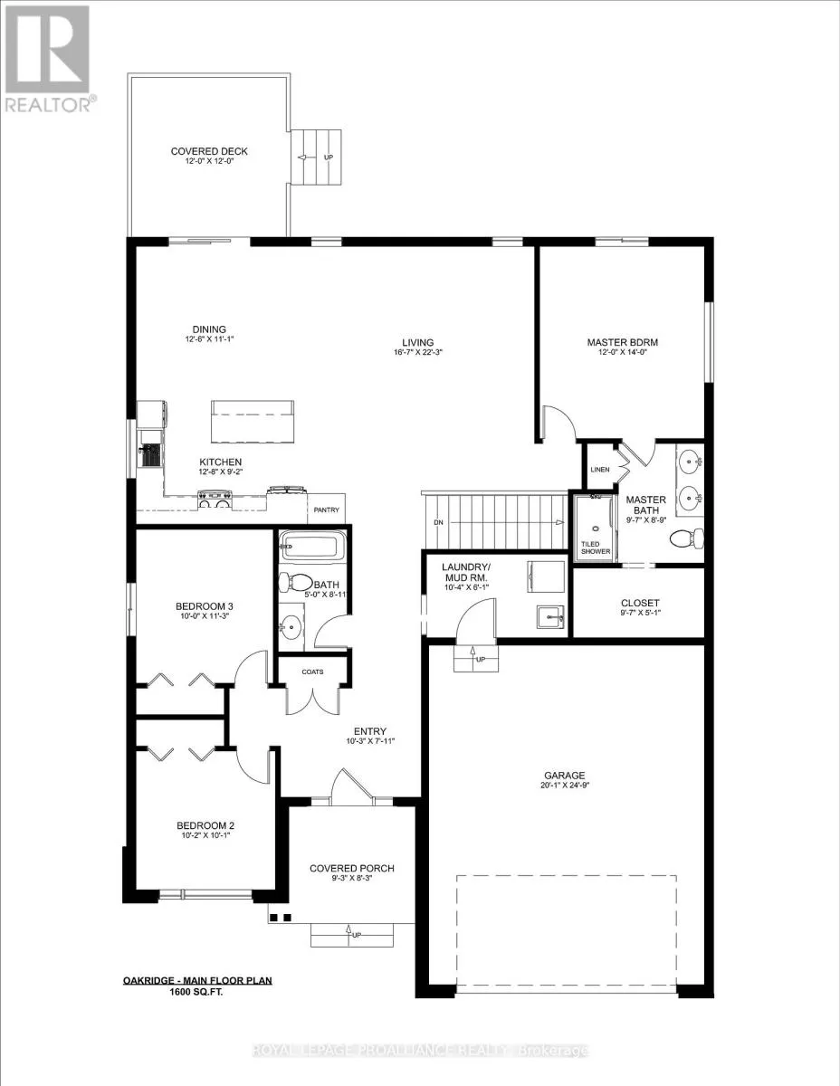
Cross Streets: Hastings Park Drive and Sienna Ave. ** Directions: Hwy 2 to Sienna Ave, Right on Hastings Park Drive. **Limited-time savings-the NEW enhanced 13% HST rebate is already included in the list price** Welcome to this brand-new 3 bedroom, 2 bathroom, 1,600 sq. ft. bungalow by Cobblestone Homes, showcasing a clean, modern roofline that sets it apart within the neighbourhood. A covered front porch and a striking mix of stone and board-and-batten siding create a strong first impression. Step inside to a bright, open foyer leading into a thoughtfully designed main level with 9-foot ceilings, pot lighting, and engineered hardwood throughout the living areas, with ceramic tile in the home's wet spaces. The kitchen anchors the space with quartz countertops, soft-close cabinetry, and a large island designed for everyday use and easy entertaining. The layout offers excellent bedroom separation, ideal for families, guests, or a home office. The primary suite features a walk-in closet and a well-appointed ensuite with a custom tile and glass shower and double quartz vanity. A combined mudroom and laundry area provides practical access to the double-car garage. Large basement windows bring in natural light and create strong potential for future development. Out back, a covered deck with a natural gas BBQ line extends your living space outdoors. Additional features include a stamped concrete walkway and porch, paved driveway, sodded yard, and insulated garage door with opener. Built with efficiency in mind and backed by a full Tarion warranty, this home offers quality construction in the sought-after Potters Creek neighbourhood, close to parks, schools, and just minutes to CFB Trenton. (id:27476)

Property Highlights

MLS® Number
X12594524
Type
Single Family
Community Name
Belleville Ward
Ownership Type
Freehold
Land Size
15 x 38 M
Parking Space Total
4

Building

Building Type
House
Storeys
1.00
Square Footage
1500 - 2000 sqft
Bathrooms Total
2
Bedrooms Above Ground
3
Bedrooms Total
3
Exterior Finish
Stone, Vinyl siding
Fireplace Present
No
Basement Type
Full (Unfinished)
Basement Features
Building Heating Type
Forced air
Heating Fuel
Natural gas
Building Cooling Type
Central air conditioning

Utilities

Water
Municipal water
Utility Sewer
Sanitary sewer

Room Layout

Foyer
Main level
3.12 m x 2.4 m
Living room
Main level
5.05 m x 6.78 m
Dining room
Main level
3.81 m x 3.37 m
Kitchen
Main level
3.86 m x 2.79 m
Primary Bedroom
Main level
3.66 m x 4.26 m
Bedroom 2
Main level
3.1 m x 3.07 m
Bedroom 3
Main level
3.05 m x 3.43 m
Laundry room
Main level
3.15 m x 1.85 m

Location

Learn more about this property
Listing provided by:
ROYAL LEPAGE PROALLIANCE REALTY
MLS® number:
X12594524
Agent:
Joey Rufo
*Indicates required field
Name is required
Email is required
Please enter a valid phone number (e.g., 416-111-1111).