Unit B - 89 College Street E, Belleville, Ontario K8P 2E8

Listed for:
$1,950
2 beds
1 baths
Listed 62 days ago
Triplex for rent: Unit B - 89 College Street E, Belleville, Ontario K8P 2E8

View all 7 photos

About

College St E / Baldwin St Available Immediately! Recently renovated 2 Bed 1 Bath Upper level apartment located in central Belleville. In-Unit Laundry. Two parking space included. Option to rent out 2 car garage for storage and parking at additional cost. Ultra efficient heat pump system for heating and cooling with supplemental electric baseboard heaters.Tenant responsible for all utilities. First and Last Months Rent Deposit. 12 Month Lease. (id:27476)

Property Highlights

MLS® Number
X12633842
Type
Multi-family
Community Name
Belleville Ward
Parking Space Total
2

Building

Building Type
Triplex
Storeys
2.00
Square Footage
700 - 1100 sqft
Bathrooms Total
1
Bedrooms Above Ground
2
Bedrooms Total
2
Amenities
Separate Electricity Meters, Separate Heating Controls
Exterior Finish
Vinyl siding
Fireplace Present
No
Basement Type
None
Basement Features
Building Heating Type
Heat Pump, Baseboard heaters
Heating Fuel
Electric
Building Cooling Type
Wall unit

Utilities

Water
Municipal water
Utility Sewer
Sanitary sewer

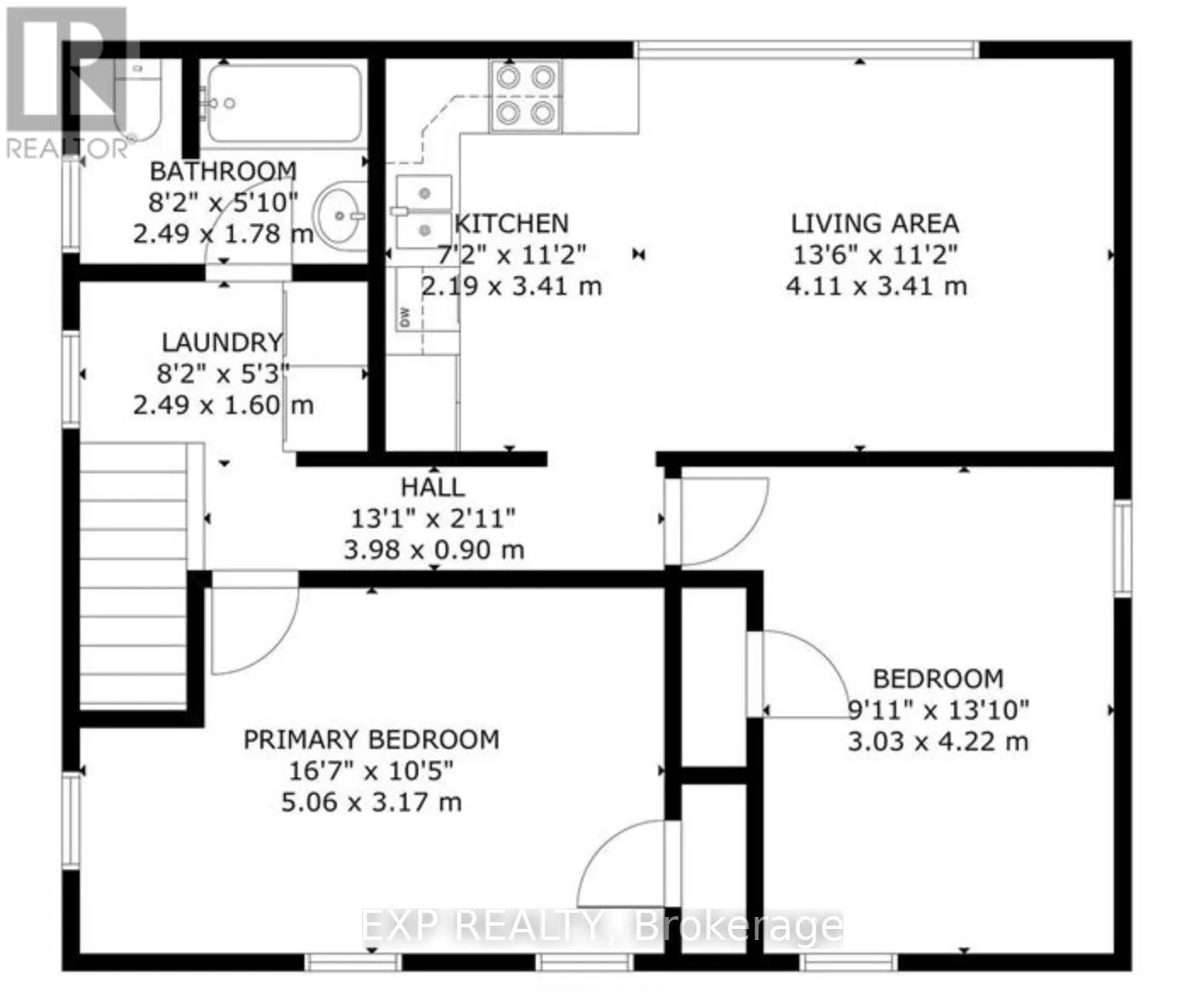
Room Layout

Kitchen
Upper Level
2.19 m x 3.41 m
Living room
Upper Level
4.11 m x 3.41 m
Primary Bedroom
Upper Level
5.06 m x 3.17 m
Bedroom 2
Upper Level
3.03 m x 4.22 m

Location

Learn more about this property
Listing provided by:
EXP REALTY
MLS® number:
X12633842
Agent:
George Wang
*Indicates required field
Name is required
Email is required
Please enter a valid phone number (e.g., 416-111-1111).

Community Spotlight: Homes For rent in Your Neighborhood