2 - 54 Dundas Street E, Belleville, Ontario K8N 1B8

Listed for:
$12
0 beds
0 baths
Listed 51 days ago
Offices for rent: 2 - 54 Dundas Street E, Belleville, Ontario K8N 1B8

View all 12 photos

About

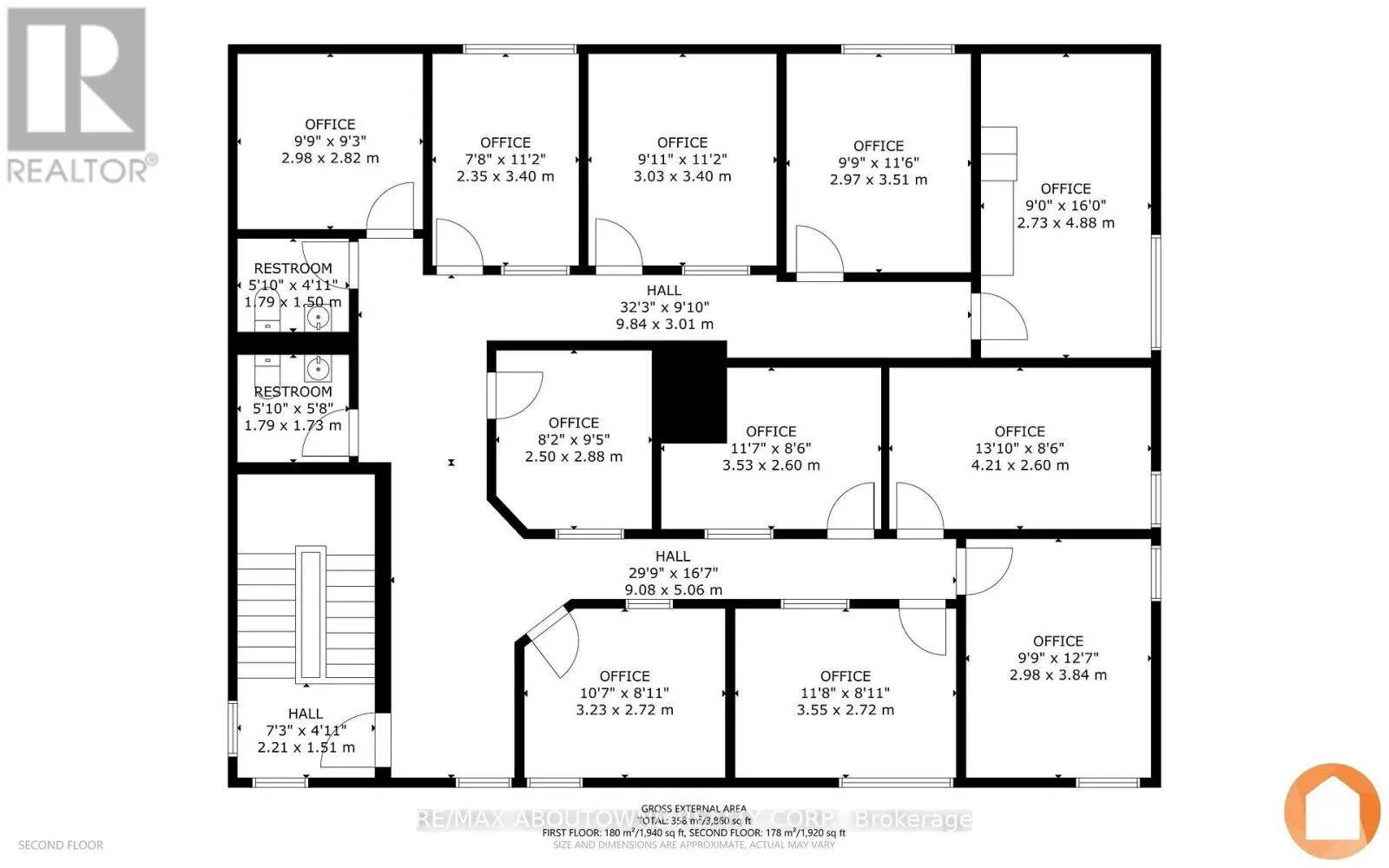
Cross Streets: Front St. & Dundas St. E. ** Directions: ... Excellent opportunity with this well-maintained, commercial/office building. Located on Dundas Street East (Highway 2) in Belleville, with fantastic traffic exposure, ample parking at front of building, and close to banking, law offices, hospital, and more. Currently available for lease second floor. Space is bright with lots of windows. Approximately 1,930 sq ft. (id:27476)

Property Highlights

MLS® Number
X12698268
Type
Office
Community Name
Belleville Ward

Building

Building Type
Offices
Square Footage
1930 sqft
Amenities
Highway, Public Transit
Fireplace Present
No
Basement Type
Basement Features
Building Heating Type
Forced air
Heating Fuel
Natural gas
Building Cooling Type
Fully air conditioned

Utilities

Water
Municipal water

Location

Learn more about this property
Listing provided by:
RE/MAX ABOUTOWNE REALTY CORP.
MLS® number:
X12698268
Agent:
Amanda Hoolihan
*Indicates required field
Name is required
Email is required
Please enter a valid phone number (e.g., 416-111-1111).