5 Simcoe Drive, Belleville, Ontario K8N 0N7

Listed for:
$725,000
5 beds
3 baths
Listed 56 days ago
House for rent: 5 Simcoe Drive, Belleville, Ontario K8N 0N7

View all 45 photos

About

Cross Streets: Maitland Drive & Farnham Road. ** Directions: North of Maitland off Farnham Road in Cannif Mills Estates. Looking for a home that truly works for the whole family? This beautifully finished bungalow in sought-after Canniff Mills Estates is designed for real life, where everyone has space to gather, relax, and feel at home. With a private in-law suite in the lower walkout level, plus an unbeatable location close to parks, the Quinte Mall, and easy 401 access, it offers flexibility for today and the future. The main floor features stunning hardwood throughout, vaulted living and dining areas filled with natural light, and an open-concept family room / kitchen, perfect for family meals, quiet mornings, or hosting friends. Step out to the private, south-facing deck with awning and enjoy peaceful outdoor moments in the sun. Three bedrooms are located on the main level, including a private primary suite where you can unwind at the end of the day + the convenient main-floor laundry in the mudroom with access to the insulated and heated garage adds to the ease of everyday living. The bright in-law suite offers true independence and comfort, complete with its own separate laundry, an open-concept kitchen overlooking the living area with a cozy fireplace, patio doors to the backyard, two bedrooms plus an office, and a full bath. Whether welcoming extended family, creating a guest retreat, or hosting effortlessly, this space adapts to your lifestyle. An incredible value in a prime location. This is more than a home; it's a place where your family can connect and grow. (id:27476)

Property Highlights

MLS® Number
X12759358
Type
Single Family
Community Name
Thurlow Ward
Ownership Type
Freehold
Land Size
49.2 x 105 FT
Parking Space Total
6

Building

Building Type
House
Storeys
1.00
Square Footage
1500 - 2000 sqft
Bathrooms Total
3
Bedrooms Above Ground
3
Bedrooms Total
5
Amenities
Fireplace(s)
Exterior Finish
Brick
Fireplace Present
Yes
Basement Type
N/A (Finished)
Basement Features
Walk out
Building Heating Type
Forced air
Heating Fuel
Natural gas
Building Cooling Type
Central air conditioning

Utilities

Water
Municipal water
Utility Sewer
Sanitary sewer

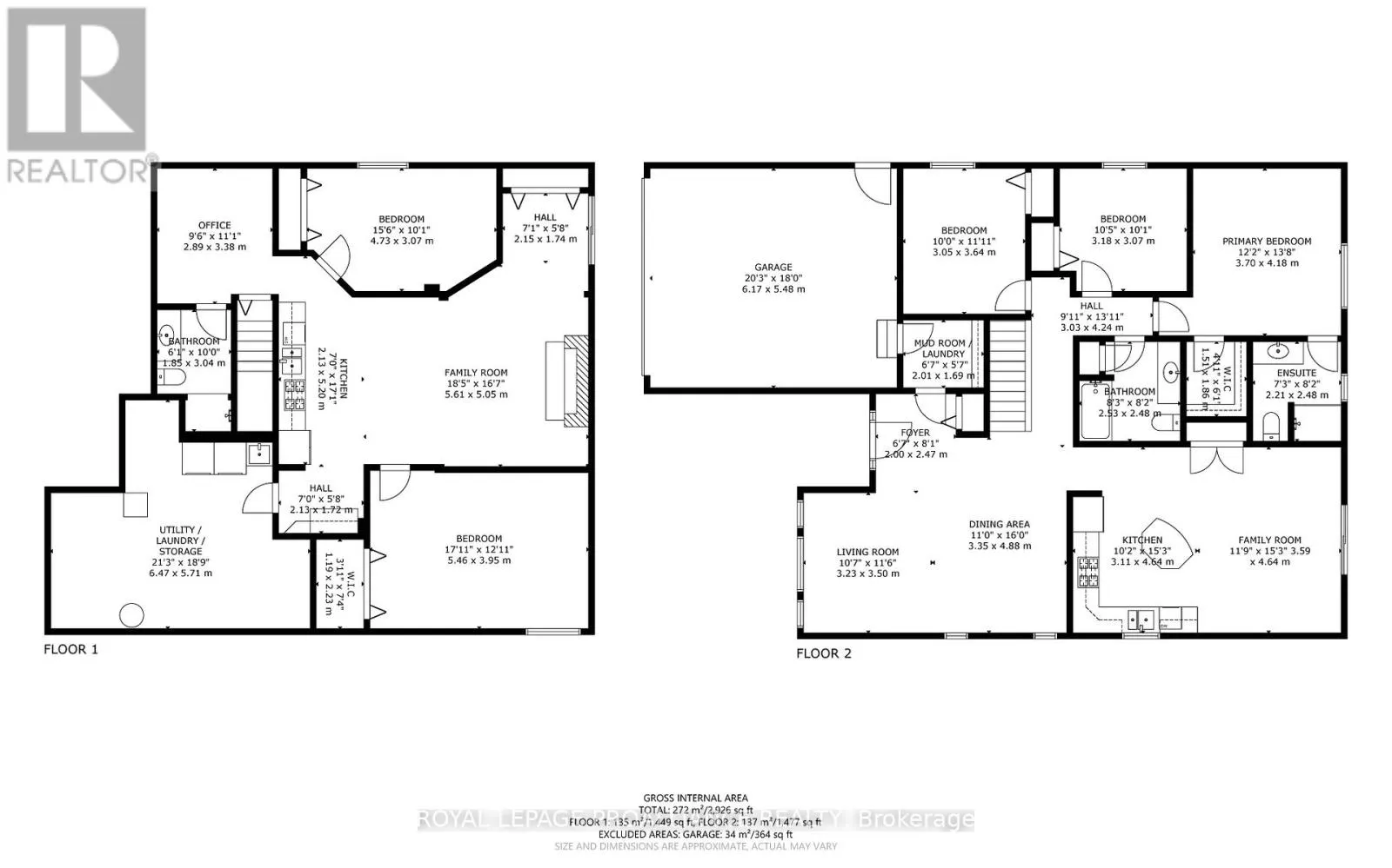
Room Layout

Living room
Lower level
5.61 m x 5.05 m
Foyer
Lower level
2.15 m x 1.74 m
Kitchen
Lower level
5.2 m x 2.13 m
Primary Bedroom
Lower level
5.46 m x 3.95 m
Bedroom 5
Lower level
4.73 m x 3.07 m
Bathroom
Lower level
3.04 m x 1.85 m
Office
Lower level
3.38 m x 2.89 m
Utility room
Lower level
6.47 m x 5.71 m
Foyer
Main level
2.47 m x 2 m
Mud room
Main level
2.01 m x 1.69 m
Living room
Main level
3.5 m x 3.23 m
Dining room
Main level
4.88 m x 3.35 m
Kitchen
Main level
4.64 m x 3.11 m
Family room
Main level
4.64 m x 3.59 m
Primary Bedroom
Main level
4.18 m x 3.7 m
Bathroom
Main level
2.48 m x 2.21 m
Bedroom 2
Main level
3.64 m x 3.05 m
Bedroom 3
Main level
3.18 m x 3.07 m
Bathroom
Main level
2.53 m x 2.48 m

Location

Learn more about this property
Listing provided by:
ROYAL LEPAGE PROALLIANCE REALTY
MLS® number:
X12759358
Agent:
Lorraine Kuschmierz
*Indicates required field
Name is required
Email is required
Please enter a valid phone number (e.g., 416-111-1111).

Community Spotlight: Homes For sale in Your Neighborhood