393 Front Street, Belleville, Ontario K8N 2Z9

Listed for:
$479,000
2 beds
1 baths
Listed 94 days ago
Apartment for rent: 393 Front Street, Belleville, Ontario K8N 2Z9

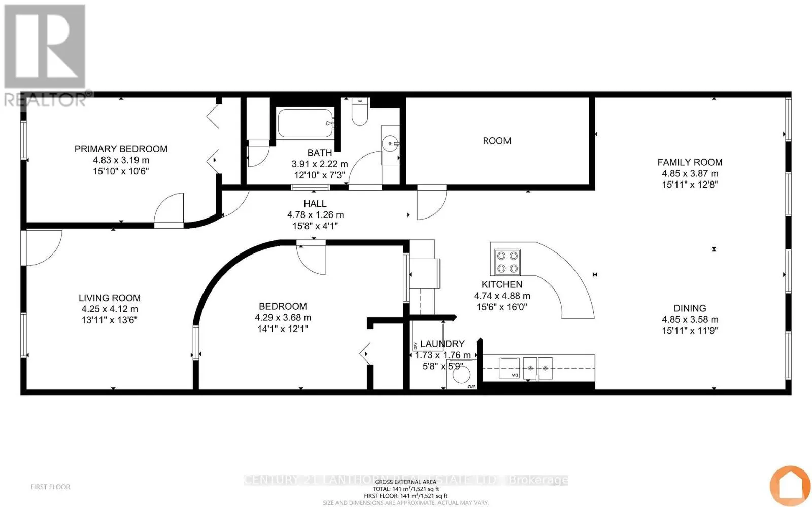
View all 30 photos

About

Cross Streets: Pinnacle St & Front St. ** Directions: 401, South on North Front St(62), Pinnacle St, Front St. Here's a great opportunity to own a unique residential condo in one of downtown Belleville's most recognizable historic buildings. Located in the iconic Marble Hall, originally built in 1857, this second level unit offers a blend of character, charm, and modern day comfort right in the heart of the city. This 2 bedroom, 1 bathroom condo features impressive ceiling height and oversized windows that bring in plenty of natural light and offer beautiful views toward the Moira River and surrounding downtown. Inside, the space is full of warmth and personality with exposed stone accents, rich hardwood flooring throughout the main living areas, and distinctive wood flooring in the bedrooms that adds to the overall character of the home. With amazingly low Condominium fees. The building itself is known for its striking unpolished marble stone exterior and its long standing presence in Belleville's downtown core. Step outside and you're within walking distance to local restaurants, cafs, shops, the waterfront, and all the energy that downtown continues to grow into. Whether you are looking for a stylish personal residence, a low maintenance downtown lifestyle, or exploring investment potential, this unit offers flexibility and a truly one of a kind setting in an up and coming part of Belleville. (id:27476)

Property Highlights

MLS® Number
X12792458
Type
Single Family
Community Name
Belleville Ward
Maintenance Fee
309.00
Ownership Type
Condominium/Strata
Parking Space Total
1

Building

Building Type
Apartment
Square Footage
1200 - 1399 sqft
Bathrooms Total
1
Bedrooms Above Ground
2
Bedrooms Total
2
Amenities
Canopy, Separate Heating Controls, Separate Electricity Meters Hospital, Public Transit, Schools, Place of Worship
Exterior Finish
Stone, Brick
Fireplace Present
No
Basement Type
None
Basement Features
Building Heating Type
Forced air
Heating Fuel
Natural gas
Building Cooling Type
Central air conditioning

Location

Learn more about this property
Listing provided by:
Century 21 Lanthorn Real Estate Ltd.
MLS® number:
X12792458
Agent:
Elliott Haatvedt
*Indicates required field
Name is required
Email is required
Please enter a valid phone number (e.g., 416-111-1111).

Street Spotlight - For sale