15 Thorncliffe Drive, Belleville, Ontario K8P 4L3

Listed for:
$569,900
3 beds
2 baths
Listed 43 days ago
House for rent: 15 Thorncliffe Drive, Belleville, Ontario K8P 4L3

View all 50 photos

About

Cross Streets: College St east/ Sidney Street. ** Directions: College Street east/Sidney Street. Located in family-friendly West Park Village, this well-designed 4-level split offers space for everyone with three distinct living areas; a bright living room, cozy family room, and spacious rec room. The functional layout includes 3 bedrooms and 2 full bathrooms, ideal for growing families. Hardwood floors flow through the main living spaces and bedrooms, while the eat-in kitchen features a gas stove. The walk-out basement adds tremendous value, offering a second kitchen, laundry, great storage, and direct backyard access. Enjoy a fenced yard with patio, gardens, and gas BBQ hookup, plus convenient garage entry. A fantastic home in a sought-after neighbourhood. (id:27476)

Property Highlights

MLS® Number
X12794344
Type
Single Family
Community Name
Belleville Ward
Ownership Type
Freehold
Land Size
59.3 x 124.6 FT
Parking Space Total
3

Building

Building Type
House
Square Footage
1100 - 1500 sqft
Bathrooms Total
2
Bedrooms Above Ground
3
Bedrooms Total
3
Exterior Finish
Aluminum siding, Brick
Fireplace Present
No
Basement Type
Full (Finished)
Basement Features
Building Heating Type
Forced air
Heating Fuel
Natural gas
Building Cooling Type
Central air conditioning

Utilities

Water
Municipal water
Utility Sewer
Sanitary sewer

Room Layout

Living room
Second level
6.18 m x 3.52 m
Dining room
Second level
2.95 m x 2.81 m
Kitchen
Second level
4.68 m x 2.71 m
Bathroom
Third level
2.51 m x 2.02 m
Bedroom
Third level
2.67 m x 2.76 m
Bedroom
Third level
2.9 m x 3.86 m
Primary Bedroom
Third level
3.95 m x 2.71 m
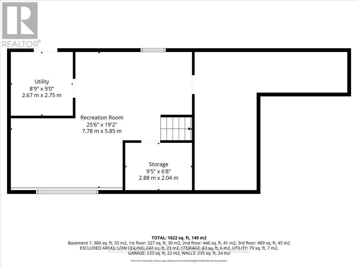
Utility room
Basement
2.67 m x 2.75 m
Recreational, Games room
Basement
7.78 m x 5.85 m
Family room
Ground level
3.04 m x 5.95 m
Bathroom
Ground level
2.69 m x 1.76 m

Location

Learn more about this property
Listing provided by:
ROYAL LEPAGE PROALLIANCE REALTY
MLS® number:
X12794344
Agent:
Brad Warner
*Indicates required field
Name is required
Email is required
Please enter a valid phone number (e.g., 416-111-1111).