27 Sulmon Street, Belleville, Ontario K8N 0S5

Listed for:
$659,900
3 beds
2 baths
Listed 73 days ago
House for rent: 27 Sulmon Street, Belleville, Ontario K8N 0S5

View all 9 photos

About

Cross Streets: Essex Drive. ** Directions: Farnham Rd to Kipling Dr to Essex Dr to Sulmon St. Currently offering no HST. Luxury New Build in Canniff Mill EstatesPrice: $659,900 Experience the perfect blend of modern sophistication and peaceful living in this Staikos-built custom bungalow. Nestled in the highly sought-after Canniff Mill Estates, this home offers a premium lifestyle just minutes from downtown Belleville. Key Home Features: Spacious Layout: A custom open-concept design based on the popular Birchwood model, featuring 3 large bedrooms and 2 modern bathrooms. Designer Kitchen: Equipped with premium Cambria Quartz countertops and a stainless steel under-mount sink. Elegant Finishes: Features Canadian-made engineered hardwood flooring (oak or maple) and premium porcelain tiles in high-traffic areas. Indoor-Outdoor Flow: The great room features an all-glass rear wall with a large patio door leading to a covered rear patio, perfect for entertaining. Energy Efficiency: Built with high-efficiency forced air gas heating, central air conditioning, and R-60 ceiling insulation. The Location: Canniff Mill EstatesEnjoy a community designed for outdoor family living: Nature at Your Door: Steps away from the Moira River waterfront trail for walking and cycling. Family Friendly: Close to Canniff Mill Park and the Thurlow Dog Park. Convenience: Located just 10 minutes from Highway 401, the Quinte Mall, and the Quinte Sports and Wellness Centre. Ready for Your Finishing TouchesThis quick-close inventory home includes a fully sodded lot. The basement is already equipped with a bathroom rough-in and a 100 amp sub-panel. (id:27476)

Property Highlights

MLS® Number
X12844634
Type
Single Family
Community Name
Thurlow Ward
Ownership Type
Freehold
Land Size
52 x 108 FT
Parking Space Total
4

Building

Building Type
House
Storeys
1.00
Square Footage
1500 - 2000 sqft
Bathrooms Total
2
Bedrooms Above Ground
3
Bedrooms Total
3
Amenities
Golf Nearby, Hospital, Schools, Park
Exterior Finish
Brick
Fireplace Present
No
Basement Type
Full (Unfinished)
Basement Features
Building Heating Type
Forced air
Heating Fuel
Natural gas
Building Cooling Type
Central air conditioning

Utilities

Water
Municipal water
Utility Sewer
Sanitary sewer

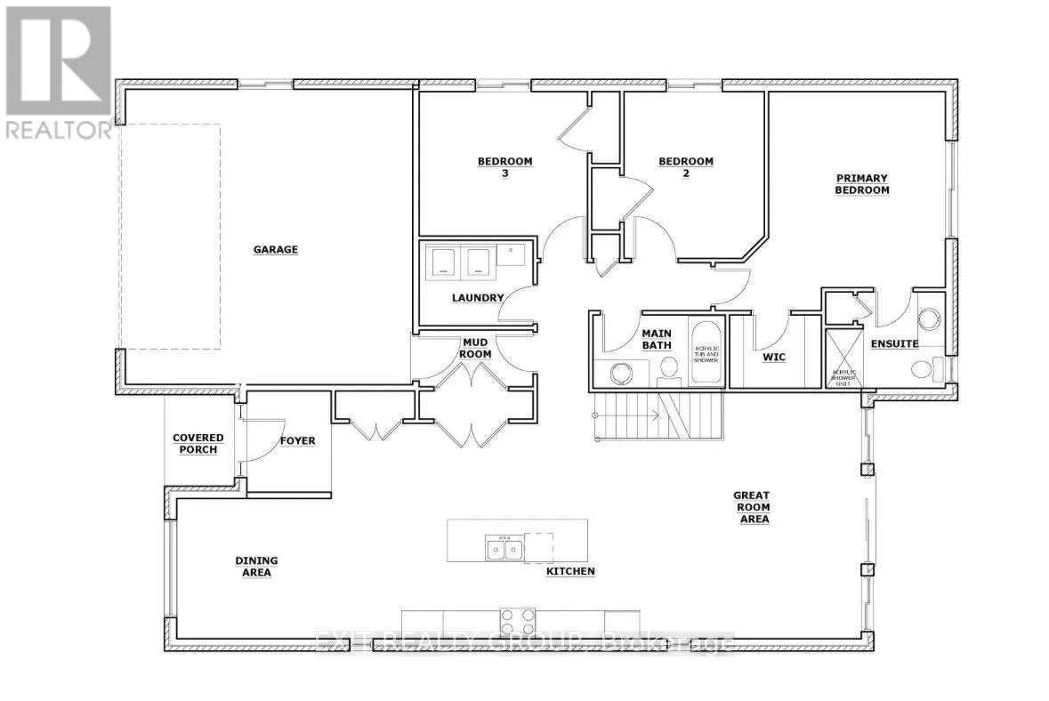
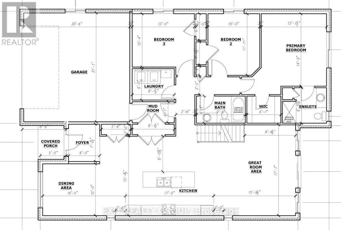
Room Layout

Foyer
Ground level
2.19 m x 1.82 m
Bathroom
Ground level
2.89 m x 1.61 m
Dining room
Ground level
4.87 m x 3.04 m
Kitchen
Ground level
5.18 m x 4.69 m
Great room
Ground level
5.39 m x 4.84 m
Mud room
Ground level
2.4 m x 1.24 m
Laundry room
Ground level
2.4 m x 1.85 m
Primary Bedroom
Ground level
4.26 m x 3.87 m
Bathroom
Ground level
2.59 m x 1.82 m
Bedroom 2
Ground level
3.62 m x 3.04 m
Bedroom 3
Ground level
3.65 m x 3.16 m

Location

Learn more about this property
Listing provided by:
EXIT REALTY GROUP
MLS® number:
X12844634
Agent:
Kristin Georgiou
*Indicates required field
Name is required
Email is required
Please enter a valid phone number (e.g., 416-111-1111).

Community Spotlight: Homes For sale in Your Neighborhood