208703 Highway 26 Highway, Blue Mountains, Ontario N0H 1J0

Listed for:
$2,599,900
4 beds
4 baths
Listed 147 days ago
House for rent: 208703 Highway 26 Highway, Blue Mountains, Ontario N0H 1J0

View all 50 photos

Learn more about this property
Listing provided by:
Royal LePage Locations North
MLS® number:
X12243515
Agent:
Justin Henri Bischoff
*Indicates required field
Name is required
Email is required
Please enter a valid phone number (e.g., 416-111-1111).

About

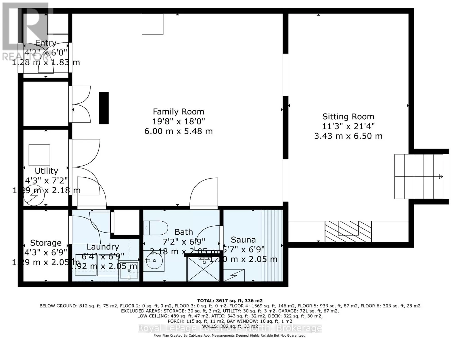
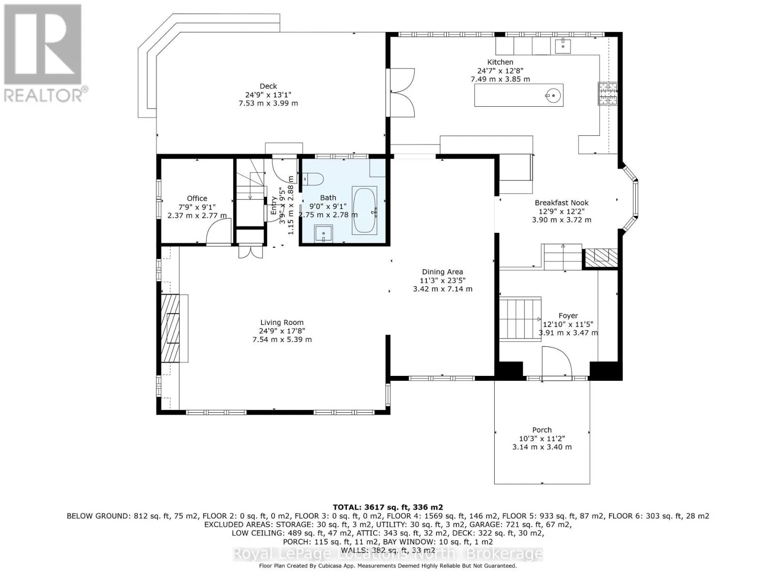
Cross Streets: Hwy 26. ** Directions: East side of Hwy 26 just past Geogian Peaks. Welcome to the historic Camperdown Sandhill Estate, a truly unique country retreat set on 2.5 private acres with panoramic views of the Niagara Escarpment and Georgian Bay.Perfectly positioned just minutes from the area's top ski clubs and the vibrant communities of Thornbury and Collingwood, this exceptional property blends rural charm with refined living.Lovingly and fully restored over the years, the home combines timeless character with modern comfort. Beyond the glass front entrance lies a gourmet kitchen with picture-perfect views of the English gardens and in-ground swimming pool. The bespoke dining room is designed for entertaining, comfortably accommodating up to 12 guests. The elegant living room features a wood-burning fireplace, creating a warm and inviting space for gatherings with family and friends.Upstairs, the second level hosts four spacious bedrooms and two bathrooms. The primary suite offers a private hallway entry, delivering a peaceful, retreat-like escape. The third floor adds versatile living space ideal for a kids zone, guest overflow, or a cozy recreational lounge.The fully finished lower level features a large rec room, a fitness area with sauna, and a full 3-piece bath. A separate entrance provides convenient access to the pool perfect for guests or easy transition from outdoor to indoor living.Outside, the property is nothing short of a showstopper. Spend your summer days lounging by the pool and cabana, or enjoy evenings around the fire pit, with the soothing sound of the nearby creek in the background. Two outbuildings provide generous storage for vehicles, tools, or recreational gear.This is a rare opportunity to experience the best of country living privacy, beauty, and proximity to everything that makes the Blue Mountains region so special. (id:27476)

Property Highlights

MLS® Number
X12243515
Type
Single Family
Community Name
Blue Mountains
Ownership Type
Freehold
Land Size
329.7 x 328 FT|2 - 4.99 acres
Parking Space Total
17

Building

Building Type
House
Storeys
3.00
Square Footage
2500 - 3000 sqft
Bathrooms Total
4
Bedrooms Above Ground
4
Bedrooms Total
4
Amenities
Fireplace(s)
Exterior Finish
Brick
Fireplace Present
Yes
Basement Type
Full
Basement Features
Separate entrance
Building Heating Type
Forced air
Heating Fuel
Natural gas
Building Cooling Type
Central air conditioning

Utilities

Water
Municipal water
Utility Sewer
Sanitary sewer

Location

Street Spotlight - For sale