595181 4th Line, Blue Mountains, Ontario N0H 2E0

Listed for:
$2,200,000
0 beds
2 baths
Listed 40 days ago
Unknown for rent: 595181 4th Line, Blue Mountains, Ontario N0H 2E0

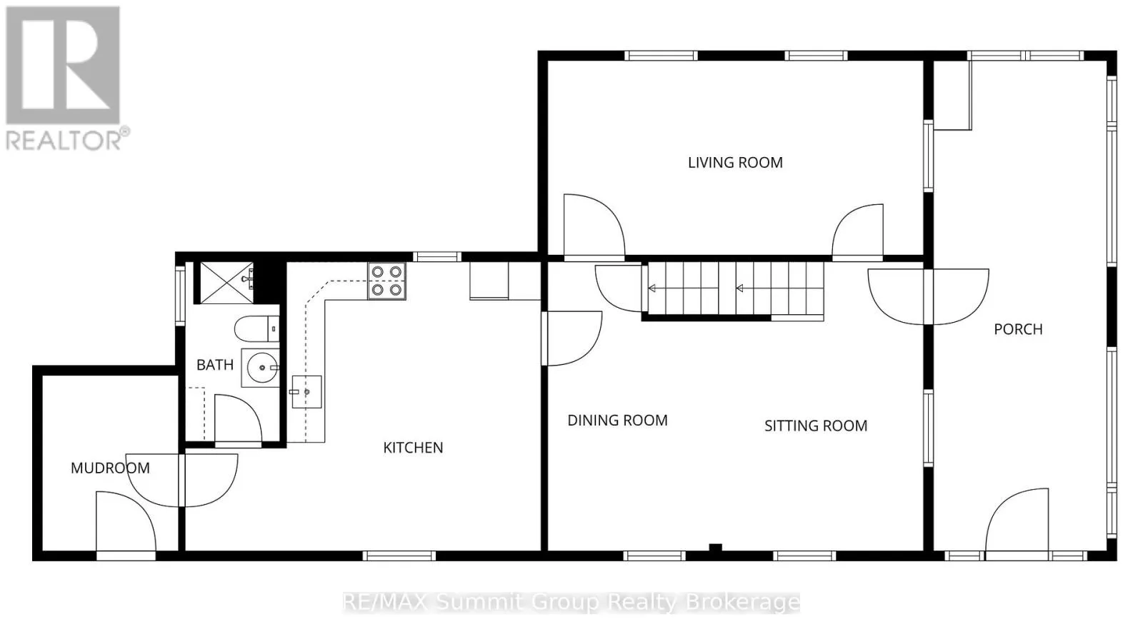
View all 30 photos

About

Cross Streets: Grey Rd 19 & 4th Line. ** Directions: From Grey Rd 2 turn east onto Grey Rd 19, south/right onto 4th Line to property on east/left side. Just over 100 acres, located only 15 minutes from Collingwood, offering approximately 60 to 65 workable acres, 5 acres of pasture, and 25 acres of hardwood bush, with the balance made up of the home and outbuildings. The workable land is a combination of Listowel Silt Loam and Osprey Loam soils, both known for good drainage, strong nutrient-holding capacity, and suitability for crops. The house is a solid red brick two-storey built around 1900 with about 1,600 sq ft of living space and features five bedrooms, a 3-piece main floor bathroom, and a 3-piece ensuite on the second floor, along with original hardwood floors, older windows, a metal roof, a covered front porch, and a back mudroom. The stone foundation with poured foundation addition is in good condition and the basement includes the laundry area, a cold room, and the forced air oil furnace with convenient exterior access. Outbuildings include a 20' x 20' garage with a concrete floor, a 30' x 60' drive shed with two large doors and a dirt floor, and a traditional bank barn with water. This is an excellent farm with a practical and workable setup, quality loam soils, useful buildings, and a farmhouse ready for its next chapter. (id:27476)

Property Highlights

MLS® Number
X12594932
Type
Agriculture
Community Name
Blue Mountains
Land Size
104.638 ac
Parking Space Total
5

Building

Building Type
Unknown
Square Footage
1648 sqft
Bathrooms Total
2
Fireplace Present
No
Basement Type
Basement Features
Building Heating Type
Forced air
Heating Fuel
Oil
Building Cooling Type
None

Utilities

Utility Sewer
Septic System

Location

Learn more about this property
Listing provided by:
RE/MAX Summit Group Realty Brokerage
MLS® number:
X12594932
Agent:
Erin Boynton-seeley
*Indicates required field
Name is required
Email is required
Please enter a valid phone number (e.g., 416-111-1111).