110 Dorothy Drive, Blue Mountains, Ontario N0H 2P0

Listed for:
$2,290,000
6 beds
5 baths
Listed 59 days ago
House for rent: 110 Dorothy Drive, Blue Mountains, Ontario N0H 2P0

View all 49 photos

About

Hwy 26 & Camperdown Welcome to this exceptional four-bedroom home, thoughtfully designed for both full-time living and the perfect ski-chalet getaway. The main level features a luxurious primary suite complete with a spa-inspired ensuite offering double vanities, a large glass shower, and a separate soaker tub. A second bedroom includes its own private three-piece ensuite, while the remaining two bedrooms share a convenient Jack-and-Jill bathroom. The heart of the home is the stunning gourmet kitchen, ideal for any chef, complete with a butler's area and spacious walk-in pantry. The dining room offers lots of windows for bright natural light, creating a warm and inviting atmosphere. Beautiful hardwood flooring runs throughout, enhancing the elegance of every space. The living room features a two-sided fireplace, creating a seamless flow into the dining area and setting the tone for cozy, memorable gatherings. A well-appointed laundry area includes custom storage cubbies and direct access to the garage for added convenience. Enjoy breathtaking escarpment views, offering a serene and picturesque backdrop year-round. The impressive loggia, a covered outdoor deck with a gas fireplace, provides the perfect setting for warm, relaxing summer evenings. The lower level extends your living space with two generous bedrooms, a full bathroom, and a huge recreational room-an ideal spot for kids to hang out, play, and make lifelong memories. Book your private viewing today and experience the charm and comfort this incredible home has to offer. (id:27476)

Property Highlights

MLS® Number
X12628088
Type
Single Family
Community Name
Blue Mountains
Ownership Type
Freehold
Land Size
59.3 x 280 FT
Parking Space Total
6

Building

Building Type
House
Storeys
2.00
Square Footage
2500 - 3000 sqft
Bathrooms Total
5
Bedrooms Above Ground
4
Bedrooms Total
6
Amenities
Beach, Golf Nearby, Ski area
Exterior Finish
Steel, Stone
Fireplace Present
Yes
Basement Type
N/A (Finished)
Basement Features
Building Heating Type
Forced air
Heating Fuel
Natural gas
Building Cooling Type
Central air conditioning

Utilities

Water
Municipal water
Utility Sewer
Sanitary sewer

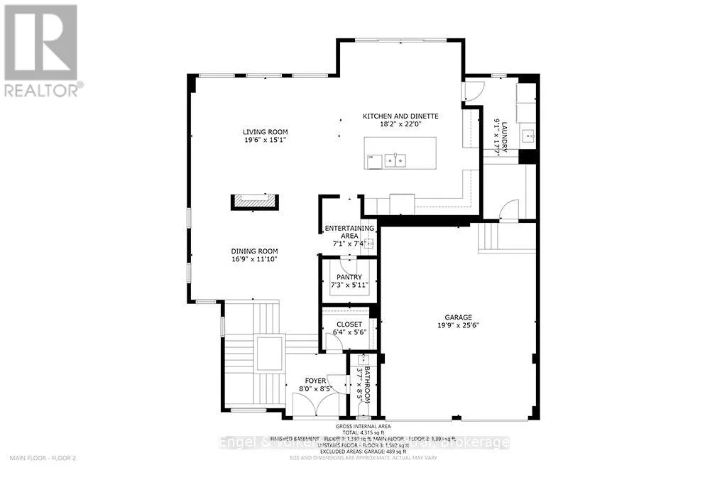
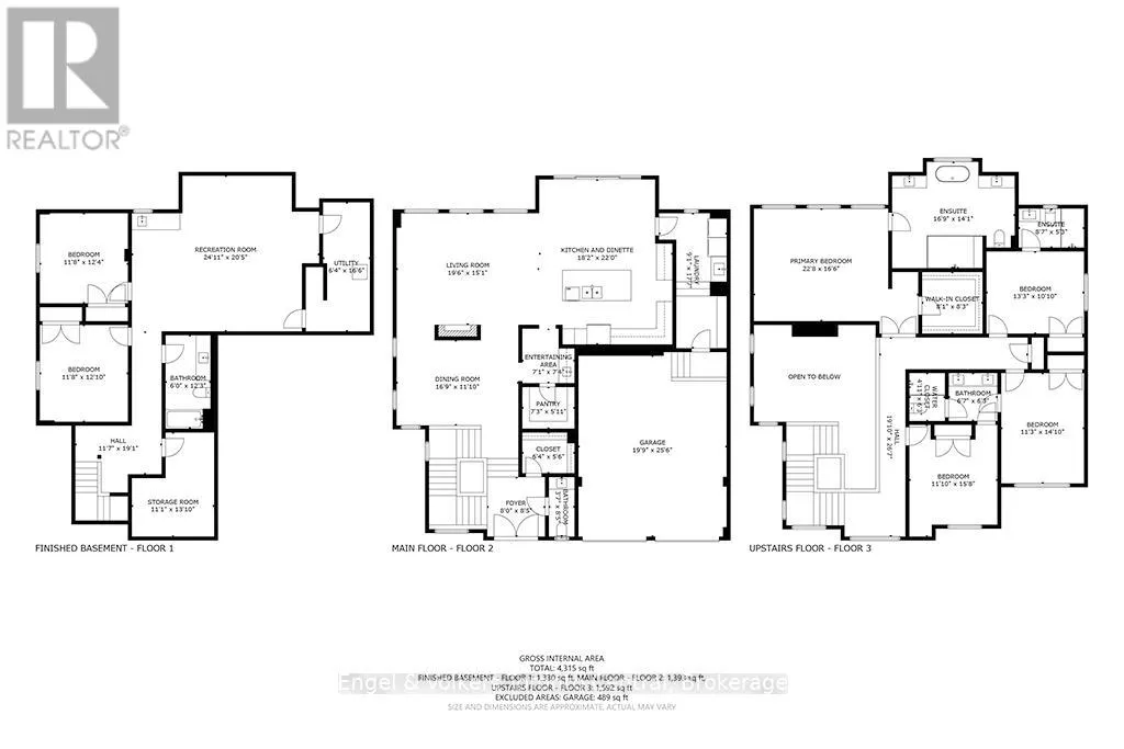
Room Layout

Primary Bedroom
Second level
5.73 m x 4.45 m
Bedroom 2
Second level
3.65 m x 3.47 m
Bedroom 3
Second level
3.47 m x 4.45 m
Bedroom 4
Second level
4.08 m x 3.35 m
Bedroom 5
Basement
3.38 m x 3.84 m
Bedroom
Basement
3.38 m x 3.96 m
Recreational, Games room
Basement
7.65 m x 4.97 m
Great room
Main level
5.79 m x 4.57 m
Dining room
Main level
5.12 m x 4.26 m
Kitchen
Main level
5.73 m x 3.05 m
Eating area
Main level
5.12 m x 3.65 m

Location

Learn more about this property
Listing provided by:
Engel & Volkers Toronto Central
MLS® number:
X12628088
Agent:
Karen Sarah Petley
*Indicates required field
Name is required
Email is required
Please enter a valid phone number (e.g., 416-111-1111).

Street Spotlight - For sale