173 National Drive, Blue Mountains, Ontario L9Y 0B5

Listed for:
$3,295,000
5 beds
4 baths
Listed 59 days ago
House for rent: 173 National Drive, Blue Mountains, Ontario L9Y 0B5

View all 34 photos

About

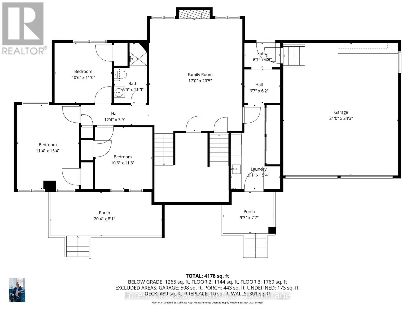
Cross Streets: Birches Boulevard and National Drive. ** Directions: From Hwy 26 head South on Grey Road 19 (Blue Mountain Road) towards Mountain, turn Right onto Birches Boulevard and follow to end, then left on National Drive and 173 is on Right overlooking Mountain. A rare opportunity to own one of the few true ski-in/ski-out family homes in the prestigious Orchard community, 173 National Drive is being offered for the first time in nearly 20 years. Set on the largest lot in the development, this exceptional reverse pie-shaped property offers over 150 ft of direct frontage backing onto Craigleith Ski Club, capturing uninterrupted views of the slopes and escarpment in every season. Thoughtfully positioned for privacy, the home delivers a true alpine setting designed for four-season family living. Just steps from the V-Hill chair, mornings begin with effortless first tracks while the ability to ski home for lunch makes family days on the hill easy and flexible. The club shuttle at the doorstep simplifies après-ski, lessons, and events, and direct access to private year-round trails encourages outdoor adventure beyond winter. Inside, the sought-after Panorama model features a dramatic Normerica great room with soaring ceilings and upgraded windows that frame the mountain views. Warm pine trim, upgraded oak hardwood flooring, and custom finishes create the timeless feel of a luxury ski chalet. The home offers five bedrooms and four bathrooms, including a private primary retreat, along with two spacious family rooms providing ample space for children, guests, and multigenerational gatherings. The finished lower level is set up as a games and recreation room, ideal for evenings after the slopes. Recent improvements include new appliances installed in December 2025, and the seller will refinish the hardwood flooring prior to closing upon request. Residents enjoy exclusive access to Orchard amenities including pool, tennis, and pickleball courts just steps from the backyard. Whether as a full-time residence or a cherished weekend retreat, this is a truly irreplaceable family ski chalet offering. (id:27476)

Property Highlights

MLS® Number
X12640788
Type
Single Family
Community Name
Blue Mountains
Maintenance Fee
207.00
Ownership Type
Freehold
Land Size
68.3 x 154.4 FT
Parking Space Total
6

Building

Building Type
House
Storeys
2.00
Square Footage
3000 - 3500 sqft
Bathrooms Total
4
Bedrooms Above Ground
5
Bedrooms Total
5
Amenities
Fireplace(s) Beach, Golf Nearby, Ski area, Marina
Exterior Finish
Stone, Wood
Fireplace Present
Yes
Basement Type
N/A (Finished)
Basement Features
Building Heating Type
Forced air
Heating Fuel
Natural gas
Building Cooling Type
Central air conditioning

Utilities

Water
Municipal water
Utility Sewer
Sanitary sewer

Location

Learn more about this property
Listing provided by:
Forest Hill Real Estate Inc.
MLS® number:
X12640788
Agent:
Simon Dearden
*Indicates required field
Name is required
Email is required
Please enter a valid phone number (e.g., 416-111-1111).