406 - 796468 Grey Road 19, Blue Mountains, Ontario L9Y 0N6

Listed for:
$334,000
1 beds
1 baths
Listed 22 days ago
Apartment for rent: 406 - 796468 Grey Road 19, Blue Mountains, Ontario L9Y 0N6

View all 37 photos

About

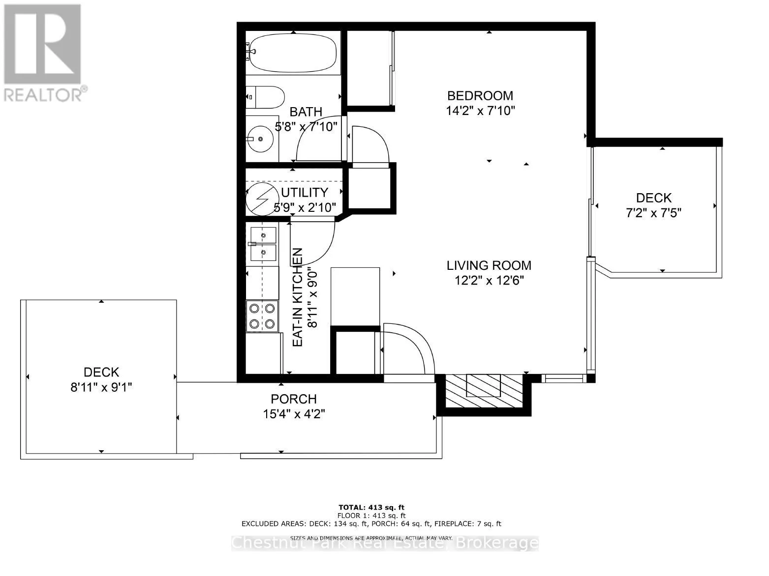
Cross Streets: Craigmore Crescent / Grey Road 19 / Highway 26. ** Directions: Grey Road 19 north of Blue Mountain Village & Blue Mountain Inn to North Creek Resort at Blue, across the street from Craigmore Crescent. From Highway 26, south on Grey Road 19, to North Creek Resort at Blue, just after The Orchard subdivision. North Creek Resort at Blue ~ income plus enjoyment! Great studio unit steps from the ski gate to Blue Mountain ski hill. Currently short term accommodation (STA) licence approved and renting on Airbnb, buyer to apply and meet criteria with the Town of The Blue Mountains if you wish to continue renting the unit out. Fully furnished and equipped, with a queen bed, pull out couch, in total the unit sleeps 4. Options available for combination of personal use, nightly/weekend/extended rentals. Enjoy the community amenities such as the year round outdoor hot tub, summer heated swimming pool, tennis/pickleball courts, community BBQ, lounge in Gatehouse, overnight security, snow removal to right to the door, Rogers Ignite TV and unlimited Internet, all included in Condo Maintenance. Conveniently dine onsite at the Indian Restaurant, or you can walk, bike, or take the shuttle to Village at Blue Mountain to dine and shop. HST and BMVA fees apply, and in addition to sale price. North Creek Resort at Blue is a member of the Blue Mountain Village Association, fees and corresponding benefits apply. Special assessment until 2027. North Creek Resort at Blue was previously known as Mountain Springs Resort. This is your chance to enjoy your weekend getaways & ski vacations, and supplement the costs with rental possibilities. (id:27476)

Property Highlights

MLS® Number
X12867268
Type
Single Family
Community Name
Blue Mountains
Maintenance Fee
506.70
Ownership Type
Condominium/Strata
Parking Space Total
1

Building

Building Type
Apartment
Square Footage
0 - 499 sqft
Bathrooms Total
1
Bedrooms Above Ground
1
Bedrooms Total
1
Amenities
Visitor Parking, Fireplace(s), Storage - Locker Beach, Ski area
Exterior Finish
Wood
Fireplace Present
Yes
Basement Type
None
Basement Features
Building Heating Type
Other
Heating Fuel
Building Cooling Type
Wall unit

Location

Learn more about this property
Listing provided by:
Chestnut Park Real Estate
MLS® number:
X12867268
Agent:
Michelle Kingsbury
*Indicates required field
Name is required
Email is required
Please enter a valid phone number (e.g., 416-111-1111).