595181 4th Line, Blue Mountains, Ontario N0H 2E0

Listed for:
$1,999,000
5 beds
2 baths
Listed 48 days ago
House for rent: 595181 4th Line, Blue Mountains, Ontario N0H 2E0

View all 34 photos

About

Cross Streets: Grey Rd 19 and 4th Line. ** Directions: From Grey Rd 2, turn east on Grey Rd 19, south/right on 4th Line to property on east/eft side. Just over 100 acres only 15 minutes from Collingwood, offering a quiet rural setting with plenty of space to spread out. The property includes approximately 60 to 65 workable acres, 5 acres of pasture, and 25 acres of excellent hardwood bush, creating a mix of open land, privacy, and natural beauty. The soils are a combination of Listowel Silt Loam and Osprey Loam, both known for good drainage, strong nutrient holding capacity, and suitability for crops. The home is a solid red brick two-storey built around 1900 with about 1,600 sq ft of living space. It features five bedrooms, a 3 piece main floor bathroom, and a 3 piece ensuite on the second floor, along with original hardwood floors, older windows, a metal roof, a covered front porch, and a back mudroom. The layout works well for families or anyone looking for a country home with character. The stone foundation with poured foundation addition is in good condition and the basement includes the laundry area, a cold room, and the forced air oil furnace with convenient exterior access. Outbuildings include a 20' x 20' garage with a concrete floor, a 30' x 60' drive shed with two large doors and a dirt floor, and a traditional bank barn with water. This is an excellent farm with a practical and workable setup, and it also offers the space, privacy, and charm that appeal to residential buyers looking for a rural lifestyle with room to grow. (id:27476)

Property Highlights

MLS® Number
X12957626
Type
Single Family
Community Name
Blue Mountains
Ownership Type
Freehold
Land Size
1008.6 x 4486.3 FT|100+ acres
Parking Space Total
5

Building

Building Type
House
Storeys
2.00
Square Footage
1500 - 2000 sqft
Bathrooms Total
2
Bedrooms Above Ground
5
Bedrooms Total
5
Exterior Finish
Brick
Fireplace Present
No
Basement Type
Full (Unfinished)
Basement Features
Building Heating Type
Forced air
Heating Fuel
Oil
Building Cooling Type
None

Utilities

Utility Sewer
Septic System

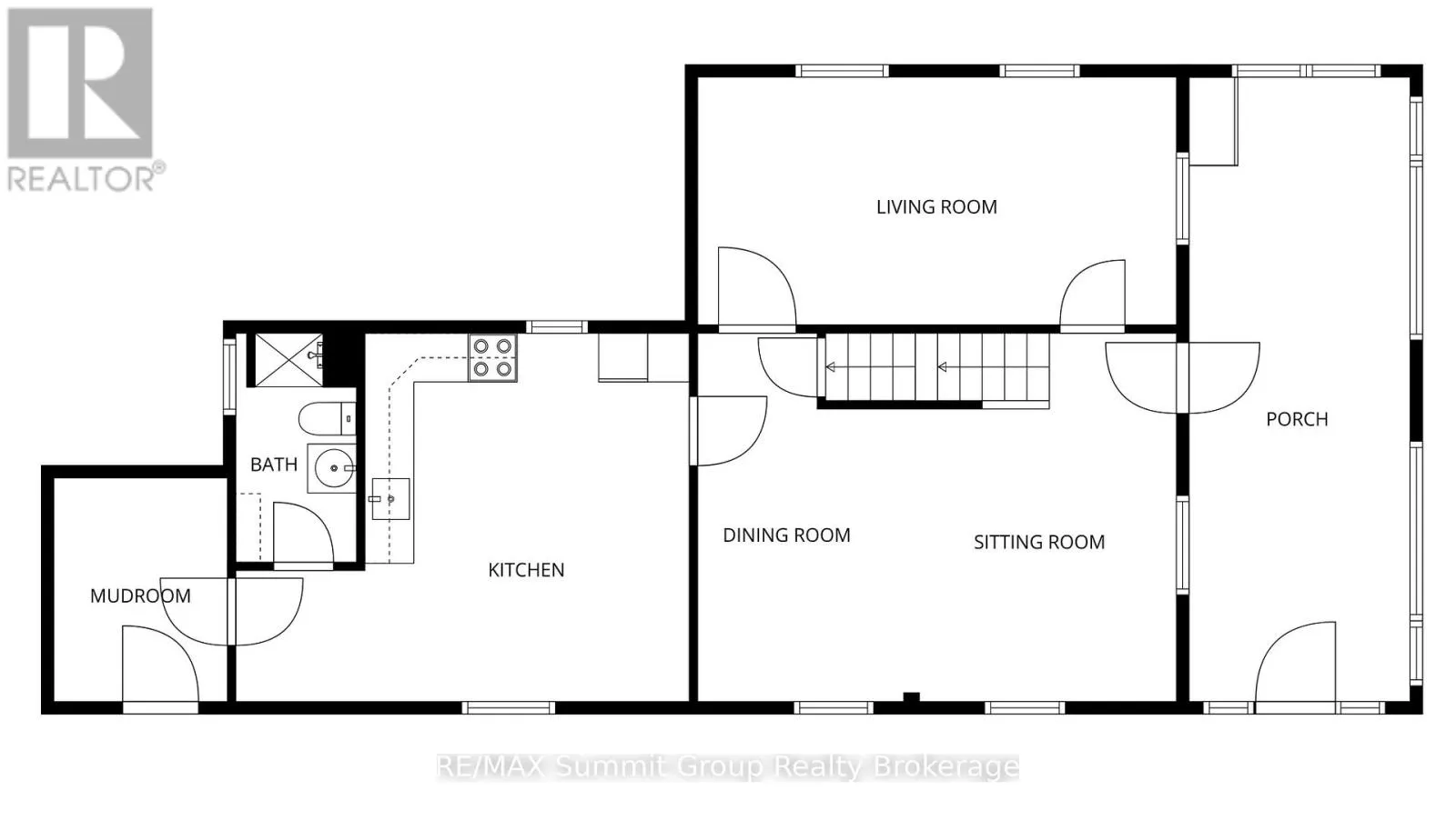
Room Layout

Primary Bedroom
Second level
4.62 m x 2.95 m
Bedroom 2
Second level
3.1 m x 2.11 m
Bedroom 3
Second level
3.33 m x 2.67 m
Bedroom 4
Second level
2.64 m x 2.57 m
Bedroom 5
Second level
3.56 m x 3.12 m
Kitchen
Main level
4.55 m x 3.94 m
Dining room
Main level
5.87 m x 3.63 m
Living room
Main level
5.82 m x 3.07 m
Mud room
Main level
2.74 m x 2.13 m

Location

Learn more about this property
Listing provided by:
RE/MAX Summit Group Realty Brokerage
MLS® number:
X12957626
Agent:
Erin Boynton-seeley
*Indicates required field
Name is required
Email is required
Please enter a valid phone number (e.g., 416-111-1111).

Community Spotlight: Homes For sale in Your Neighborhood