71259 William Street N, Bluewater, Ontario N0M 1N0

Listed for:
$915,000
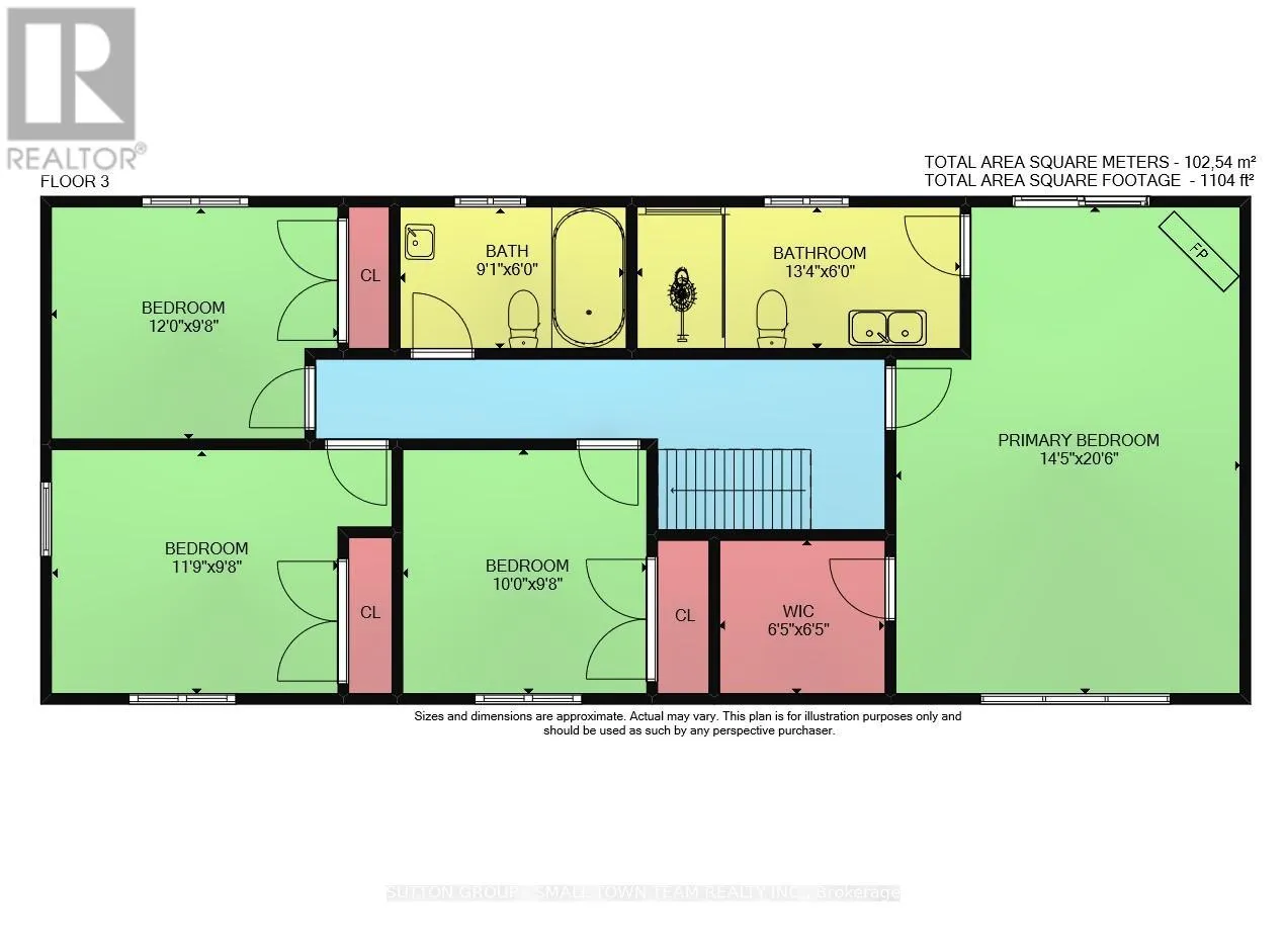
4 beds
3 baths
Listed 62 days ago
House for rent: 71259 William Street N, Bluewater, Ontario N0M 1N0

View all 47 photos

Learn more about this property
Listing provided by:
SUTTON GROUP - SMALL TOWN TEAM REALTY INC.
MLS® number:
X12357860
Agent:
Rose Riddell
*Indicates required field
Name is required
Email is required
Please enter a valid phone number (e.g., 416-111-1111).

About

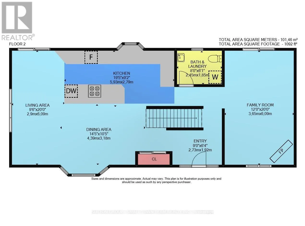
Cross Streets: Elizabeth St and William St. ** Directions: Coming South on HWY 21, turn left onto Elizabeth street into Highlands 3. Turn Left at stop sign and property located on right side. Welcome to 71259 William St N, a beautifully maintained home in Highlands 3 community. Nestled in a quiet, well-kept neighborhood surrounded by mature trees, this property offers the perfect blend of comfort, charm, and convenience, just minutes from the sandy shores of Grand Bend. This 4-bedroom, 3-bathroom home boasts an inviting open concept layout, filled with natural light from big, bright windows and enhanced with California shutters. At the heart of the home is a spacious kitchen with plenty of room for cooking, entertaining, and gathering with friends and family perfect for creating lasting memories. The spacious bedrooms and thoughtfully updated finishes throughout create a cozy, welcoming feel that reflects the pride of ownership. The newly finished basement features brand-new vinyl flooring and offers endless versatility perfect for lounging, a home office, toy room, and more. Plus, it's equipped with a rough-in ready for a half bathroom, giving you the opportunity to add even more functionality. Step outside to your private backyard oasis, where you'll find a large one-level deck, outdoor shower, outdoor TV, and sitting area perfect for BBQs, entertaining, or catching the game under the open sky. The mature gardens, ample outdoor storage, and tranquil setting make this property as functional as it is beautiful. With so many updates already completed, all that's left to do is move in and enjoy. Whether you're looking for a year-round home or a summer retreat close to the beach, this property is a true gem. (id:27476)

Property Highlights

MLS® Number
X12357860
Type
Single Family
Community Name
Dashwood
Ownership Type
Freehold
Land Size
70 x 107.5 FT
Parking Space Total
5

Building

Building Type
House
Storeys
2.00
Square Footage
2000 - 2500 sqft
Bathrooms Total
3
Bedrooms Above Ground
4
Bedrooms Total
4
Amenities
Fireplace(s)
Exterior Finish
Vinyl siding
Fireplace Present
Yes
Basement Type
N/A (Partially finished)
Basement Features
Building Heating Type
Forced air
Heating Fuel
Natural gas
Building Cooling Type
Central air conditioning

Utilities

Water
Municipal water
Utility Sewer
Septic System

Location