14 Dominican Lane, Bluewater, Ontario N0M 1N0

Listed for:
$319,700
3 beds
2 baths
Listed 77 days ago
Modular for rent: 14 Dominican Lane, Bluewater, Ontario N0M 1N0

View all 50 photos

Learn more about this property
Listing provided by:
ROYAL LEPAGE TRILAND REALTY
MLS® number:
X12380066
Agent:
Mike Sloan
*Indicates required field
Name is required
Email is required
Please enter a valid phone number (e.g., 416-111-1111).

About

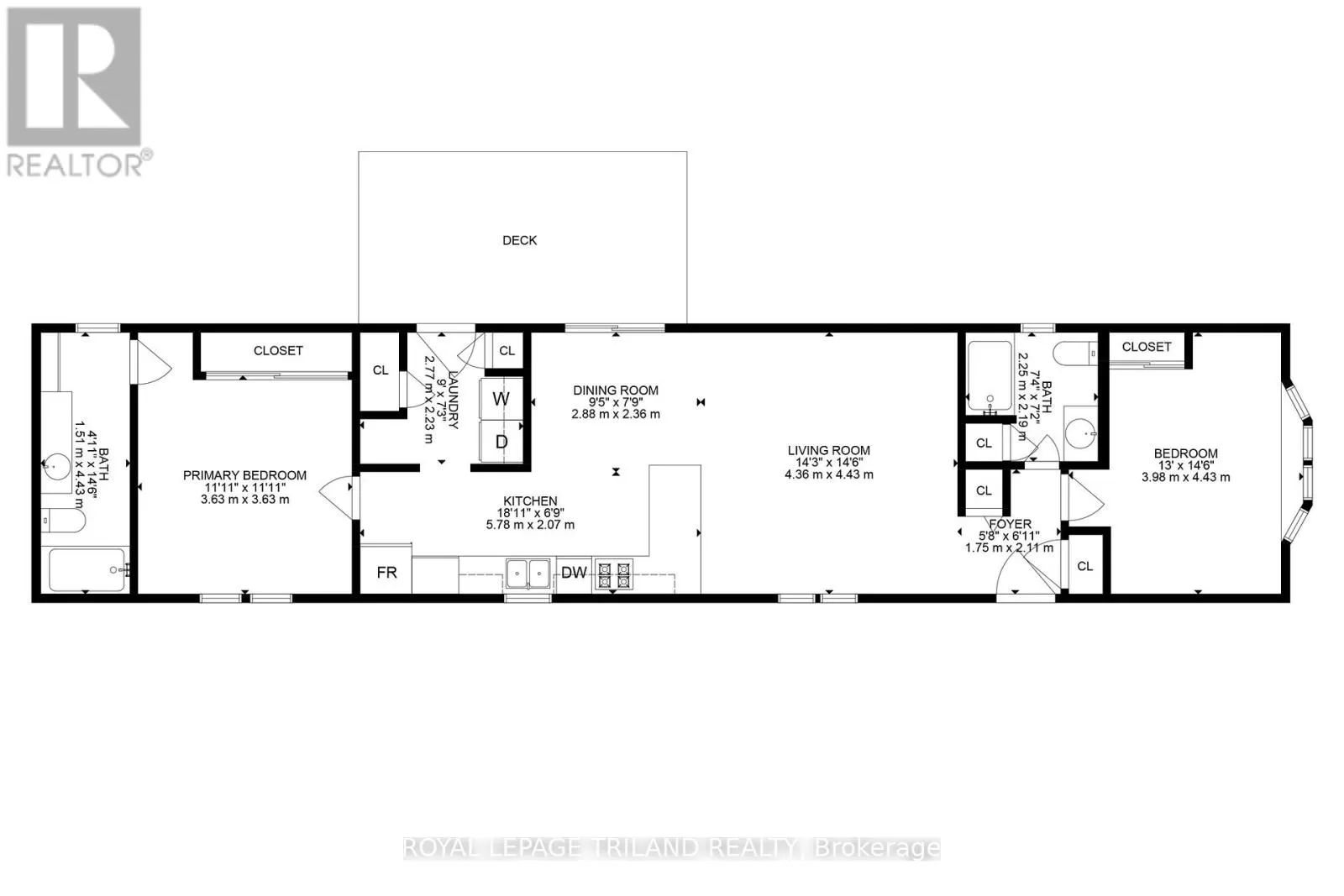
Cross Streets: Panama Lane, Turnbull's Grove Rd South. ** Directions: MAP TO: 14 Dominican Lane, Bluewater, ON (may also come up as 14 Johnston St), located in the desirable Turnbull's Grove land lease community just steps to a stellar private beach!. GRAND BEND'S FAVORITE LAKEFRONT LAND LEASE COMMUNITY | LARGEST LOT IN TURNBULL'S GROVE | EXCELLENT ALTERNATIVE TO A MUCH PRICIER FREEHOLD COTTAGE | 4 SEASON / YEAR ROUND HOME IDEAL FOR A FAMILY STARTER COTTAGE OR RETIREMENT PAD! This 2 bedroom + Bunky + 2 FULL bathroom winterized bungalow is tucked away in an extremely secluded & very private section of Turnbull's Grove South. You're still just steps to the Turnbull's Grove South fantastic private sandy beach; with your private beach access forever guaranteed by your ownership in this wonderful community; but this location, on the largest lot in the neighborhood at the end of the laneway, is second to none! The property provides ample parking with large yards on both sides of the home offering an abundance of space for gardening (w/ gardens included), recreation, your Bunky guests, pets, storage, etc. This particular location makes this a very unique opportunity in this sought after land lease enclave on the lake, arguably, a once every 30 yr opportunity given how long the current owners have enjoyed this property. However, the value doesn't stop there - even over and above this top 10 location, you get a 4 season home that is rock solid! The open concept kitchen/living/dining area is in fantastic condition, along with the main level in-suite laundry, and the 2 large bedrooms including a master suite w/ a large ensuite bathroom, which is one of 2 bright & roomy FULL bathrooms. Generally speaking, from the roof and windows to the gas fueled forced air HVAC & included appliances, everything is in great shape and has been updated in recent time, all ready to enjoy on day 1! And the best party, the full year resident monthly fees are only $385/Month (includes lease, water, and community sewer fees) & taxes are only $632 per year! Come out and see why everyone is moving to Turnbull's! (id:27476)

Property Highlights

MLS® Number
X12380066
Type
Single Family
Community Name
Hay
Land Size
100 x 120 FT
Parking Space Total
4

Building

Building Type
Modular
Storeys
1.00
Square Footage
1100 - 1500 sqft
Bathrooms Total
2
Bedrooms Above Ground
2
Bedrooms Total
3
Exterior Finish
Vinyl siding
Fireplace Present
No
Basement Type
None
Basement Features
Building Heating Type
Forced air
Heating Fuel
Natural gas
Building Cooling Type
Central air conditioning

Utilities

Water
Municipal water

Location

Community Spotlight: Homes For sale in Your Neighborhood