73952 Durand Street, Bluewater, Ontario N0M 2T0

Listed for:
$1,999,500
6 beds
5 baths
Listed 127 days ago
House for rent: 73952 Durand Street, Bluewater, Ontario N0M 2T0

View all 50 photos

About

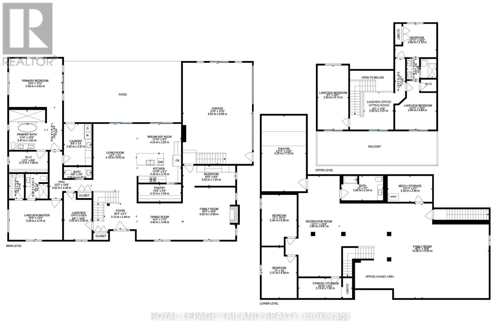
Cross Streets: Staffa Road. ** Directions: MAP to 73952 Durand Street, Bluewater, ON | Situated 1.25 KM off HWY 21 perched above Lake Huron & just a short walk to easy Beach Access is this incredible 5.34 Acre Estate Property, right in between Grand Bend & Bayfield with VIEWS OF LAKE HURON!. LAKEFRONT BENEFITS & LAKE VIEWS w/ 2ND ROW PRICING | PRICED WELL BELOW REPLACEMENT COST | 5.34 ACRE EXECUTIVE ESTATE STYLE PROPERTY | MODERN 2024 CAPE-COD HOME SURROUNDED BY ROLLING PASTURES & VIEWS OF LAKE HURON & ITS AWARD WINNING SUNETS | 5 MIN WALK TO SECLUDED SANDY BEACH | SHORT DRIVE TO GRAND BEND OR BAYFILED | This 7 bed/5 bath architecturally designed masterpiece offering 6763 sq ft of epically finished living space is one for the magazines. Situated on a 5.34 acre lake view location, its surrounded by other oversized parcels & perched atop the sparkling waters of Lake Huron 145 MTRS from the shoreline! Courtesy of Lakeshore Construction, an esteemed local outfit w/ extensive experience building high-end lakefront & lakeside custom homes; this 1 yr young immaculately finished entertainment paradise is virtually BRAND NEW. The main level, below a variety of vaulted shiplap ceilings features 2 master suites; one lake view & one rural view; w/ hardly any neighbors in sight! These are just 2 of the 7 bedrooms, 2 more of which also provide ensuite access & lake views! The inventive & exceptional layout is ideal for large multi-generational families, providing a variety of vast principal rooms & several home office locations/sitting areas, including a lake view den on the main level. For the parents, the oversized 500 sq ft master suite w/ incredible built-in dressing room & zero edge wet room style ensuite bath w/ heated floors are all finished to the 9s. The chefs kitchen/living/dining areas & oversized walk-in pantry opposite the large mudroom & sprawling main level laundry are absolutely perfect. Just like the vaulted fireplace living room, the lower level all over heated floors w/ separate entrance/movie theatre/gym space & the 3 car garage (also over heated floors), these are best-in-class spaces finished w/ premium materials & fixtures. This is a truly remarkable home when compared to others in this price range, outstanding & unbeatable from top to bottom (id:27476)

Property Highlights

MLS® Number
X12681500
Type
Single Family
Community Name
Stanley
Ownership Type
Freehold
Land Size
250.3 x 730 FT ; Wider back than front, SEE PHOTOS|5 - 9.99 acres
Parking Space Total
15

Building

Building Type
House
Storeys
2.00
Square Footage
3500 - 5000 sqft
Bathrooms Total
5
Bedrooms Above Ground
4
Bedrooms Total
6
Amenities
Fireplace(s), Separate Heating Controls Beach
Exterior Finish
Shingles, Wood
Fireplace Present
Yes
Basement Type
N/A (Finished)
Basement Features
Building Heating Type
Forced air
Heating Fuel
Natural gas
Building Cooling Type
Central air conditioning, Air exchanger

Utilities

Water
Municipal water
Utility Sewer
Septic System

Room Layout

Study
Second level
6.13 m x 2.94 m
Bedroom
Second level
4.64 m x 3.94 m
Bedroom
Second level
3.94 m x 3.19 m
Bedroom
Lower level
3.36 m x 4.86 m
Bedroom
Lower level
3.37 m x 4.88 m
Family room
Lower level
14.08 m x 9.05 m
Great room
Main level
5.02 m x 5 m
Kitchen
Main level
8.48 m x 5.62 m
Living room
Main level
6.42 m x 4.16 m
Laundry room
Main level
3.97 m x 2.65 m
Primary Bedroom
Main level
5.09 m x 4.63 m
Primary Bedroom
Main level
5.09 m x 3.78 m

Location

Learn more about this property
Listing provided by:
ROYAL LEPAGE TRILAND REALTY
MLS® number:
X12681500
Agent:
Mike Sloan
*Indicates required field
Name is required
Email is required
Please enter a valid phone number (e.g., 416-111-1111).