107 - 78a Queen Street, Bonnechere Valley, Ontario K0J 1T0

Listed for:
$1,850
1 beds
0 baths
Listed 418 days ago
Other for rent: 107 - 78a Queen Street, Bonnechere Valley, Ontario K0J 1T0

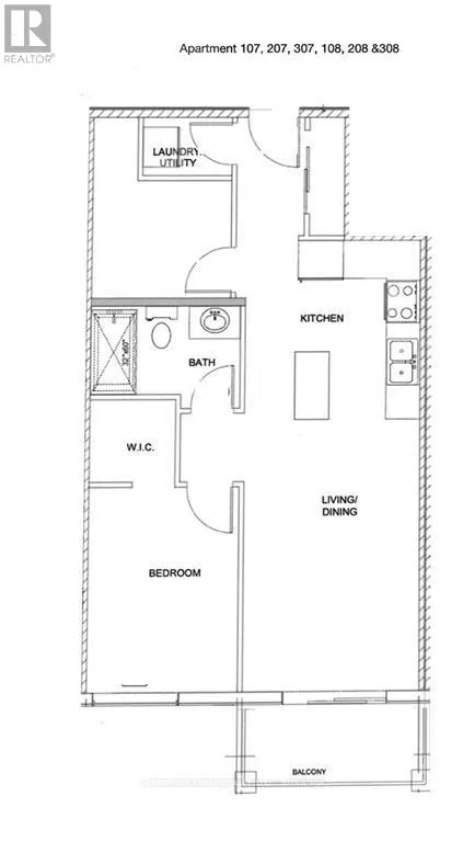
View all 18 photos

Learn more about this property
Listing provided by:
SIGNATURE TEAM REALTY LTD.
MLS® number:
X9523050
Agent:
Tony Worsfold
*Indicates required field
Name is required
Email is required
Please enter a valid phone number (e.g., 416-111-1111).

About

Queen Street and Wellington, Eganville For Rent; A stunning brand new one bedroom plus den, one full bath apartment in Eganville, perfect for seniors or professionals seeking a low-maintenance lifestyle. This main floor unit in an elevator serviced, secure building offers convenient walk out access to a private patio with lovely views of the valley. The bedroom features a walk in closet. Bathroom is wall to wall tile with walk in shower. The modern white kitchen with elegant black trim and subway tiled backsplash is more than you would expect to see in an apartment and the granite counters makes this the talk of the town. All kitchen major appliances are included and each unit has its own laundry hook-up, HRV system, full sized hot water tank and heat pump for your individually controlled A/C. In floor heating that is controlled in each unit is included in your rent as is water, sewer and parking. Hydro and internet/ phone is the tenants responsibility. Eganville is a great family friendly community surrounded by nature! (id:27476)

Property Highlights

MLS® Number
X9523050
Type
Single Family
Community Name
560 - Eganville/Bonnechere Twp
Ownership Type
Freehold
Land Size
* ft X * ft
Parking Space Total
1

Building

Building Type
Other
Storeys
1.00
Square Footage
0 - 699 sqft
Bedrooms Above Ground
1
Bedrooms Total
1
Amenities
Laundry - In Suite Golf Nearby
Exterior Finish
Stone
Fireplace Present
No
Basement Type
None, None
Basement Features
Building Heating Type
Not known
Heating Fuel
Propane
Building Cooling Type
Air exchanger

Utilities

Water
Municipal water
Utility Sewer
Sanitary sewer

Room Layout

Kitchen
Main level
2.74 m x 2.13 m
Living room
Main level
4.57 m x 3.04 m
Den
Main level
3.04 m x 2.74 m
Bedroom
Main level
3.65 m x 2.74 m
Bathroom
Main level
1.83 m x 2.1 m
Laundry room
Main level
1.52 m x 1.3 m

Location

Street Spotlight - For rent