Part 1&2&3 - 196 Ecclestone Drive, Bracebridge, Ontario P1L 1G4

Listed for:
$1,487,000
0 beds
0 baths
Listed 39 days ago
Part 1&2&3 - 196 Ecclestone Drive, Bracebridge, Ontario P1L 1G4

View all 0 photos

Learn more about this property
Listing provided by:
Royal Lepage Real Estate Associates
MLS® number:
X12469093
Agent:
Ragy Moussa
*Indicates required field
Name is required
Email is required
Please enter a valid phone number (e.g., 416-111-1111).

About

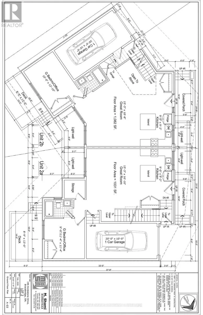
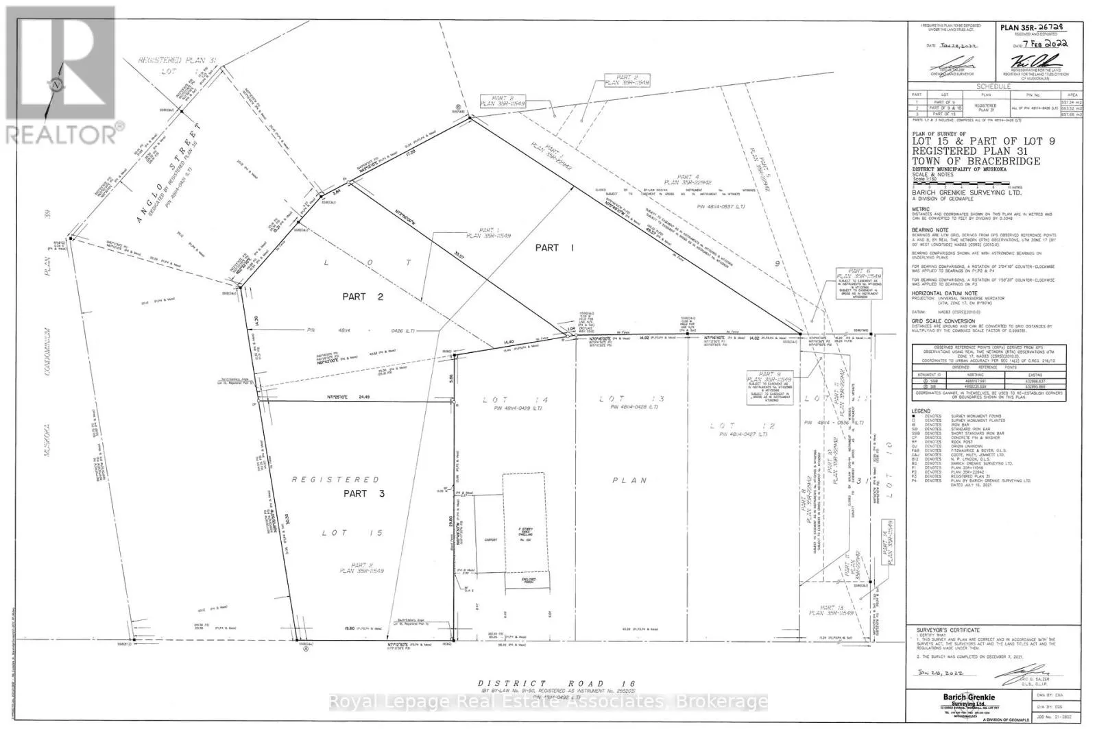
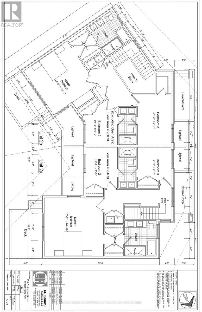
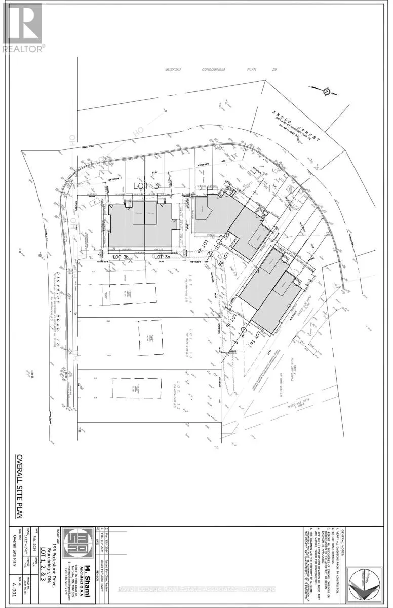
Ecclestone Dr / Anglo St Prime Development Opportunity in the Heart of Bracebridge, Muskoka Welcome to 196 Ecclestone Drive, a rare and ready-to-build development site offering incredible potential in one of Muskoka's most desirable locations. This exceptional parcel comes with conditional site plan approval to construct six (6) semi-detached homes, presenting an ideal opportunity for builders, developers, or investors seeking a turn-key project. Located just minutes from downtown Bracebridge, the property offers convenient access to schools, shopping, parks, and the Muskoka River - perfectly positioned for families and year-round living. With approvals well underway, the heavy lifting has been done - simply take it to permit and build out this beautiful enclave of modern semis. Site Plan Conditional Approval for 6 Semi-Detached Home, Municipal Services Available, Prime Location Near Downtown Bracebridge, Minutes to Shops, Trails, and the Muskoka River (id:27476)

Property Highlights

MLS® Number
X12469093
Type
Vacant Land
Community Name
Macaulay
Land Size
265.08 x 157.34 FT|1/2 - 1.99 acres

Building

Fireplace Present
No
Basement Type
Basement Features
Building Heating Type
Heating Fuel
Building Cooling Type

Location

Community Spotlight: Homes For sale in Your Neighborhood