4 Leeds Court, Bracebridge), Ontario P1L 0B7

Listed for:
$816,814
4 beds
3 baths
Listed 32 days ago
Row / Townhouse for rent: 4 Leeds Court, Bracebridge), Ontario P1L 0B7

View all 3 photos

About

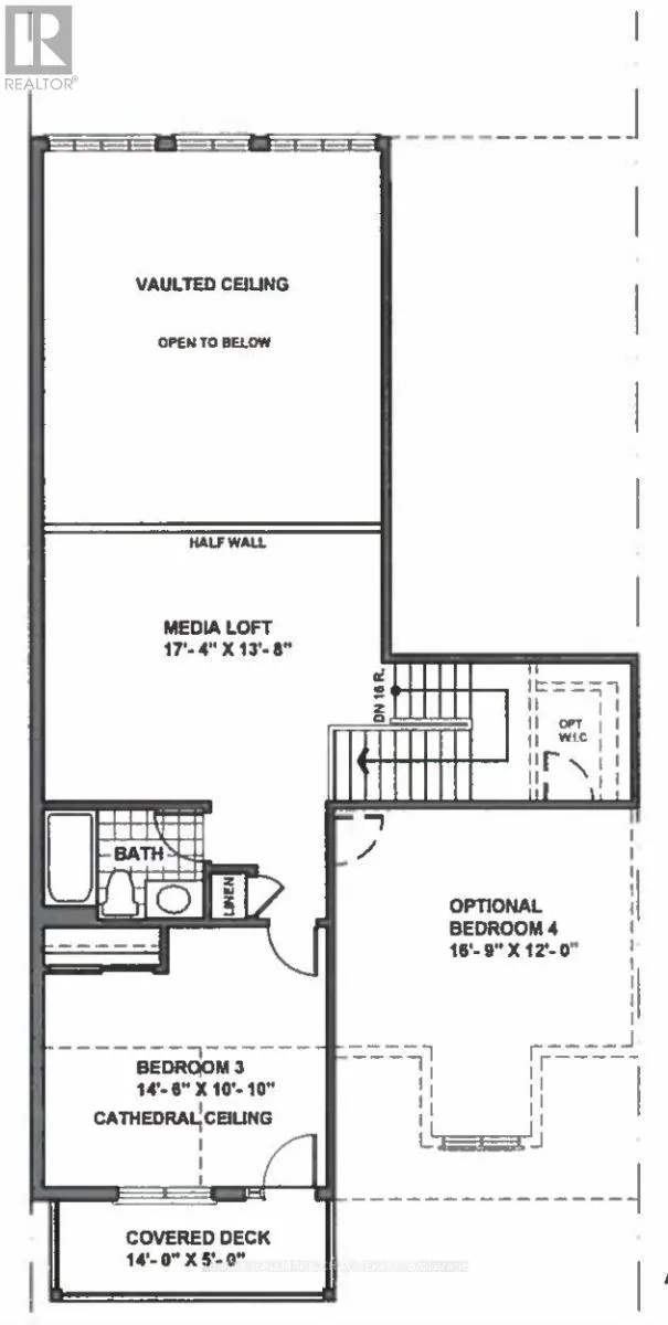
Cross Streets: Spencer St andn Leeds Court. ** Directions: Santas Village Rd to Spencer St. Welcome to Waterways of Muskoka, where carefree living meets the natural beauty of cottage country. This bright and spacious new construction bungaloft townhome offers 2,320 sq ft of thoughtfully designed living space and the convenience of freehold ownership with common element condominium services, including snow removal and lawn maintenance.The main floor features a stunning great room with vaulted ceiling, filling the home with natural light and creating an open, airy feel. A main floor primary bedroom with walk-in closet provides comfortable one-level living, while a second main floor bedroom is ideal for guests or a home office. Main floor laundry adds everyday convenience.Upstairs, a large media loft offers flexible living space for relaxing or entertaining and is complemented by two additional bedrooms, perfect for family or visiting guests.New construction means there is still time to choose your finishes and personalize the home to suit your style. Enjoy modern design, generous space, and low-maintenance living in the sought-after Waterways of Muskoka community. Sparrow Model (id:27476)

Property Highlights

MLS® Number
X12946712
Type
Single Family
Community Name
Monck (Bracebridge)
Maintenance Fee
287.06
Ownership Type
Freehold
Land Size
31 x 72.7 FT
Parking Space Total
2

Building

Building Type
Row / Townhouse
Storeys
1.50
Square Footage
2000 - 2500 sqft
Bathrooms Total
3
Bedrooms Above Ground
4
Bedrooms Total
4
Amenities
Fireplace(s)
Exterior Finish
Stone, Wood
Fireplace Present
Yes
Basement Type
Full
Basement Features
Building Heating Type
Forced air
Heating Fuel
Natural gas
Building Cooling Type

Utilities

Water
Municipal water
Utility Sewer
Sanitary sewer

Room Layout

Kitchen
Main level
3.16 m x 3.27 m
Great room
Main level
5.25 m x 5.79 m
Primary Bedroom
Main level
3.65 m x 4.11 m
Bedroom 2
Main level
3.05 m x 3.81 m
Media
Upper Level
5.25 m x 4.11 m
Bedroom 3
Upper Level
4.41 m x 3.27 m
Bedroom 4
Upper Level
5.1 m x 3.65 m

Location

Learn more about this property
Listing provided by:
RE/MAX HALLMARK CHAY REALTY
MLS® number:
X12946712
Agent:
Paula Carney
*Indicates required field
Name is required
Email is required
Please enter a valid phone number (e.g., 416-111-1111).