43 Vintage Gate, Brampton, Ontario L6X 5C2

Listed for:
$1,049,000
4 beds
3 baths
Listed 27 days ago
House for rent: 43 Vintage Gate, Brampton, Ontario L6X 5C2

View all 31 photos

Learn more about this property
Listing provided by:
CITYSCAPE REAL ESTATE LTD.
MLS® number:
W12479152
Agent:
Sahra Desriee Mcfarlane
*Indicates required field
Name is required
Email is required
Please enter a valid phone number (e.g., 416-111-1111).

About

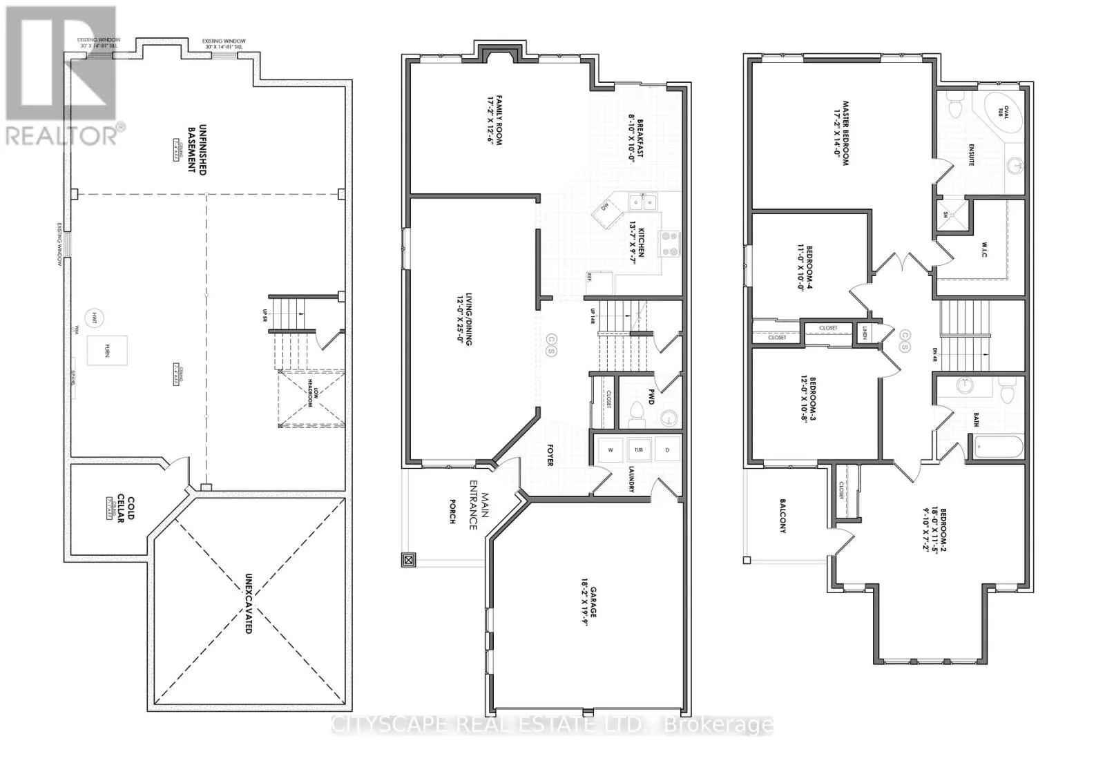
Bovaird & Fletcher's Creek Blvd This beautifully renovated 4 bedroom, 2.5 bath detached home offers turnkey living and exceptional future versatility designed for modern family living, entertaining, and multigenerational flexibility. Every surface has been recently upgraded, including professionally sanded and re-stained hardwood floors and staircase, freshly painted walls, doors, railings, trims, casings, refreshed energy-efficient argon gas-filled windows, modern pot lights brightening every corner and all new baseboards. The open-concept kitchen gleams with freshly painted cabinetry and a full suite of brand-new stainless steel appliances including stove, fridge, dishwasher, and microwave hood, ready to inspire your culinary creativity, while the adjoining family room offers a cozy gas fireplace. The main floor laundry room features a brand-new Electrolux washer & dryer. The double-car garage, freshly painted inside and out, is complemented by two additional driveway parking spaces. A new front door with keyless entry adds convenience and peace of mind. Upstairs, the spacious second master suite at the front offers semi-ensuite access to the main bathroom and a private balcony, ideal for in-laws, guests, or a quiet work-from-home sanctuary. On the opposite side, the expansive primary bedroom features a gas fireplace, a luxurious 4-piece ensuite with a jetted tub, and a roomy walk-in closet. One of the home's most compelling features is its incredible potential. City-approved plans are in place for a smartly designed 2+ bedroom basement layout with a private backyard staircase entrance. This flexible, income-ready space offers exciting possibilities for rental income, extended family living, or expanded living quarters. Ideally located close to schools, parks, shopping, and transit. Don't miss your chance to own this impeccably updated Brampton gem-ready and waiting for you to call home! (id:27476)

Property Highlights

MLS® Number
W12479152
Type
Single Family
Community Name
Fletcher's Creek Village
Ownership Type
Freehold
Land Size
34.1 x 109.9 FT
Parking Space Total
4

Building

Building Type
House
Storeys
2.00
Square Footage
2500 - 3000 sqft
Bathrooms Total
3
Bedrooms Above Ground
4
Bedrooms Total
4
Amenities
Park, Public Transit, Schools
Exterior Finish
Brick
Fireplace Present
Yes
Basement Type
N/A (Unfinished)
Basement Features
Building Heating Type
Forced air
Heating Fuel
Natural gas
Building Cooling Type
Central air conditioning

Utilities

Water
Municipal water
Utility Sewer
Sanitary sewer

Room Layout

Bedroom 3
Second level
3.53 m x 3.37 m
Bedroom 4
Second level
5.53 m x 5.68 m
Bathroom
Second level
2.54 m x 2.38 m
Primary Bedroom
Second level
5.25 m x 4.21 m
Bathroom
Second level
2.56 m x 2.99 m
Bedroom 2
Second level
3.3 m x 2.99 m
Living room
Main level
3.62 m x 4.14 m
Dining room
Main level
3.62 m x 3.2 m
Kitchen
Main level
4.14 m x 3 m
Eating area
Main level
2.68 m x 3.15 m
Family room
Main level
5.26 m x 3.79 m
Laundry room
Main level
1.82 m x 2.43 m

Location