5 - 351 Parkhurst Square, Brampton, Ontario L6T 0C2

Listed for:
$32
0 beds
1 baths
Listed 53 days ago
Retail for rent: 5 - 351 Parkhurst Square, Brampton, Ontario L6T 0C2

View all 23 photos

Learn more about this property
Listing provided by:
RE/MAX GOLD REALTY INC.
MLS® number:
W12549712
Agent:
Jaz Bains
*Indicates required field
Name is required
Email is required
Please enter a valid phone number (e.g., 416-111-1111).

About

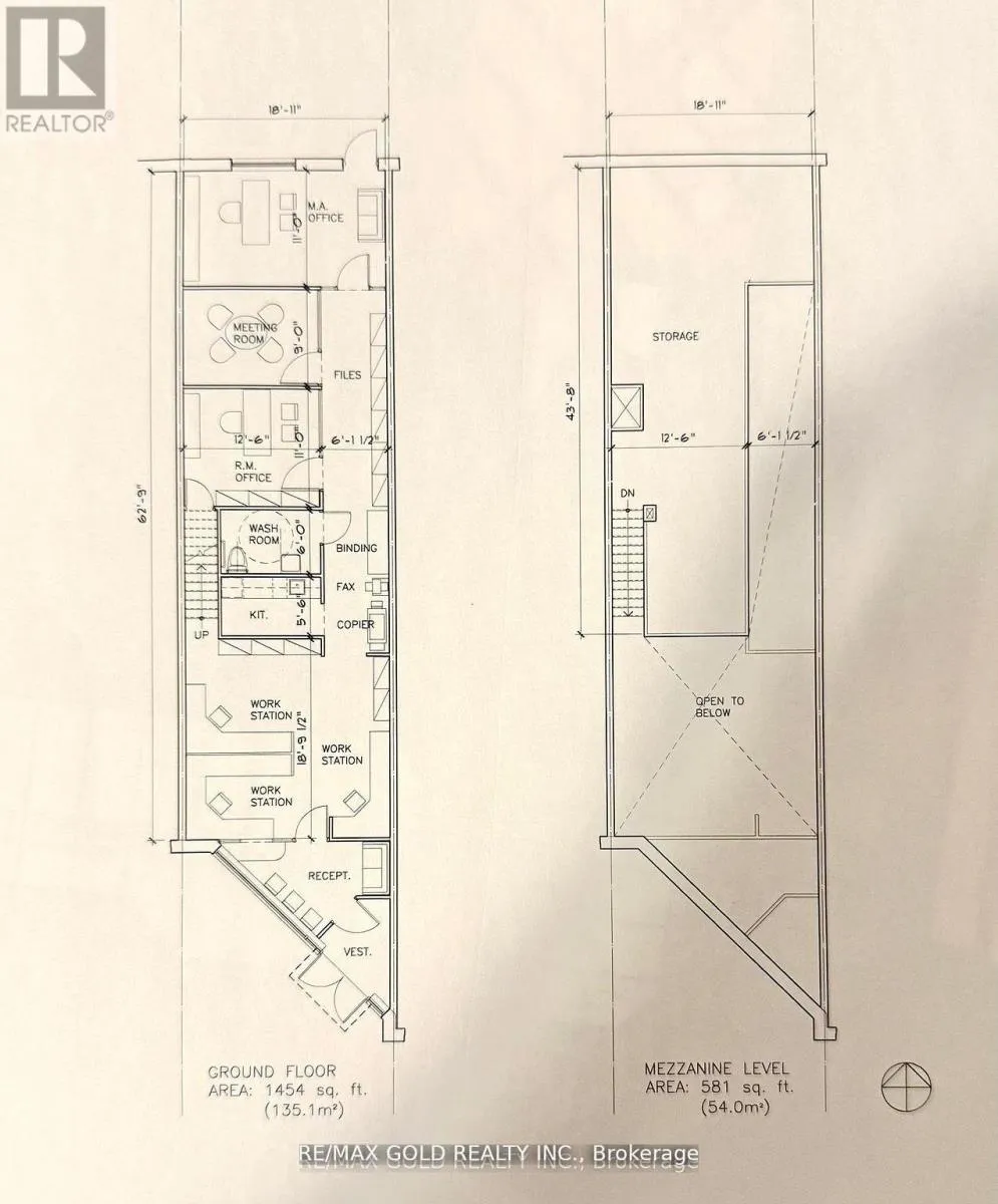
Cross Streets: Airport Rd & Steeles Ave. ** Directions: Off Of Steeles Ave. Available Immediately!! Professional Office Unit on The Ground Floor. Facing Steeles Ave., Very Convenient Location Near 407/Steeles Ave and Airport Road. Excellent For Retail, Restaurant or Immigration Office, Lawyers Office, Dentist Practice, Professional Office, Pharmacy & Doctors Office, Salon And Spa, Mortgage Offices & Real Estate Brokerage. Ample Parking. Approx. 1,454 SQ.FT on Main Floor with Bonus (Separate approx. 580 Square Feet Finished Office Mezzanine for Free!) And Back Entrance. Next To Major New Developments. Unit Can Be Divided Into 2 Units. (id:27476)

Property Highlights

MLS® Number
W12549712
Type
Retail
Community Name
Parkway Belt Industrial Area

Building

Building Type
Retail
Square Footage
1454 sqft
Bathrooms Total
1
Fireplace Present
No
Basement Type
Basement Features
Building Heating Type
Forced air
Heating Fuel
Natural gas
Building Cooling Type
Fully air conditioned

Utilities

Water
Municipal water

Location