52 Savino Drive, Brampton, Ontario L6Z 0J7

Listed for:
$899,900
3 beds
3 baths
Listed 19 days ago
Row / Townhouse for rent: 52 Savino Drive, Brampton, Ontario L6Z 0J7

View all 27 photos

Learn more about this property
Listing provided by:
RE/MAX GOLD REALTY INC.
MLS® number:
W12629988
Agent:
Harbinder Brar
*Indicates required field
Name is required
Email is required
Please enter a valid phone number (e.g., 416-111-1111).

About

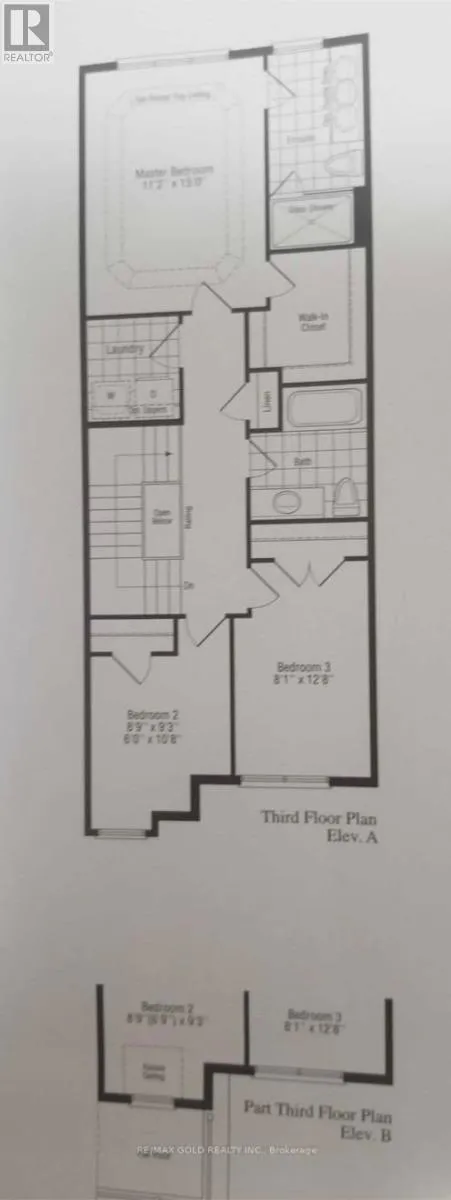
Sandalwood/Conestoga Dr 2185 Sq Ft!! Come & Check Out This, 3 Years Old Fully Upgraded 3-Storey Freehold Townhouse Backing On To A Ravine Lot. Main Floor Features Huge Rec Room Ideal For Living Space Or A Home Office. This Bright & Spacious Home Features An Open Concept Layout On The Second Floor With Spacious Family & Living Room. Enjoy a Private Retreat Space That Opens Onto A Huge Balcony Ideal For Relaxing Outdoors. Kitchen Is Equipped With Quartz Countertop & S/S Appliances. Third Floor Offers 3 Good Size Bedrooms. Master Bedroom With Ensuite Bath & Walk-in Closet. Located Close To All Amenities Including Shopping Malls, Schools, Highway (401), Parks. (id:27476)

Property Highlights

MLS® Number
W12629988
Type
Single Family
Community Name
Heart Lake West
Ownership Type
Freehold
Land Size
18.2 x 88.2 FT
Parking Space Total
3

Building

Building Type
Row / Townhouse
Storeys
3.00
Square Footage
2000 - 2500 sqft
Bathrooms Total
3
Bedrooms Above Ground
3
Bedrooms Total
3
Amenities
Park, Place of Worship, Public Transit
Exterior Finish
Brick
Fireplace Present
No
Basement Type
N/A (Unfinished)
Basement Features
Building Heating Type
Forced air
Heating Fuel
Natural gas
Building Cooling Type
Central air conditioning

Utilities

Water
Municipal water
Utility Sewer
Sanitary sewer

Room Layout

Living room
Second level
Measurements not available
Family room
Second level
Measurements not available
Kitchen
Second level
Measurements not available
Eating area
Second level
Measurements not available
Primary Bedroom
Third level
Measurements not available
Bedroom 2
Third level
Measurements not available
Bedroom 3
Third level
Measurements not available
Recreational, Games room
Main level
Measurements not available

Location

Community Spotlight: Homes For sale in Your Neighborhood