49 Lockwood Road, Brampton, Ontario L6Y 4T7

Listed for:
$939,990
4 beds
3 baths
Listed 40 days ago
House for rent: 49 Lockwood Road, Brampton, Ontario L6Y 4T7

View all 37 photos

About

Chinguacousy/Steeles/Drinkwater One owner home in the Fletcher's West community. True double-door entry with large porch and real cold cellar. Unbeatable value and size. Clean home. Built in 1998 by Remington Homes, this all brick 2447 sq.ft. plus basement home excels in space. Extra large kitchen for all to gather around. Pride of ownership in this superbly kept home. 4 family size bedrooms including a King& Queen size Primary bedroom with 5 piece ensuite. Open concept family and living room with 3sided gas fireplace. Ultra convenient and rare 2nd floor laundry room. This large centre hall plan is awaiting your custom touches! Come add your personality, both throughout and in the unspoiled basement. Completely repainted throughout. Quality 30yr shingles replaced 8 years ago. Solar panels on roof to the benefit of a solar company without affecting roof. Located in the heart of it all, shopping, transit, great schools and park. Large family? No problem with all this space. Huge potential to create a custom 1 or 2 bedroom basement apartment or decorate to your taste. Front yard and driveway nicely landscaped with interlock stones and french curbs. Meticulously maintained throughout the years. Double car garage with upgraded insulated garage door. Stainless steel appliances, central vacuum system and much more. Don't let this one getaway. (id:27476)

Property Highlights

MLS® Number
40805570
Type
Single Family
Ownership Type
Freehold
Land Size
under 1/2 acre
Parking Space Total
4

Building

Building Type
House
Storeys
2.00
Square Footage
2447 sqft
Bathrooms Total
3
Bedrooms Above Ground
4
Bedrooms Total
4
Amenities
Hospital, Park, Place of Worship, Public Transit, Schools
Exterior Finish
Brick Veneer
Fireplace Present
Yes
Basement Type
Full (Unfinished)
Basement Features
Building Heating Type
Forced air
Heating Fuel
Natural gas
Building Cooling Type
Central air conditioning

Utilities

Water
Municipal water
Utility Sewer
Municipal sewage system

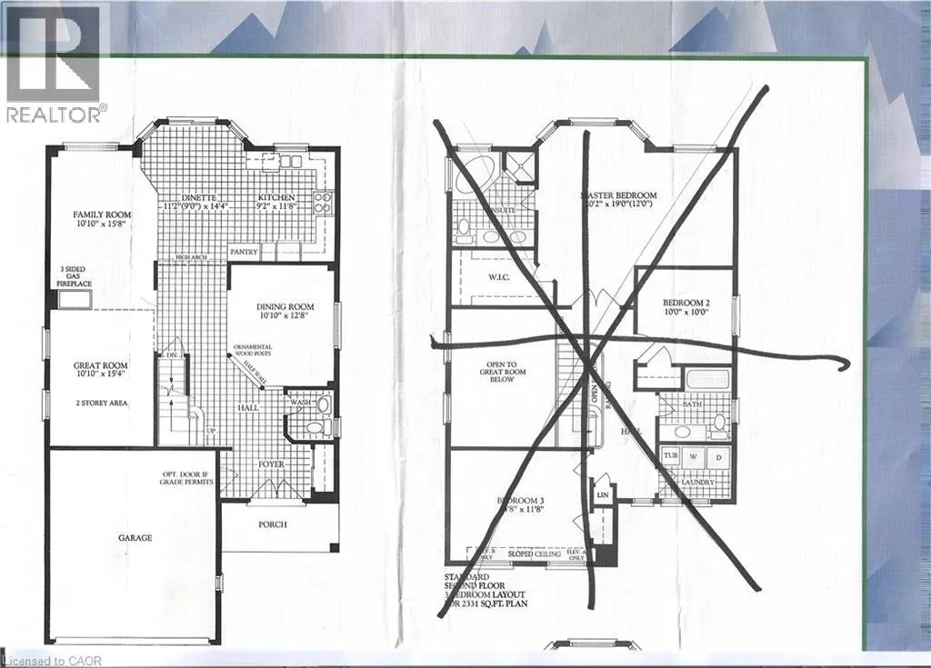
Room Layout

4pc Bathroom
Second level
Measurements not available
Full bathroom
Second level
Measurements not available
Laundry room
Second level
8'7'' x 5'8''
Bedroom
Second level
9'11'' x 9'10''
Bedroom
Second level
14'6'' x 10'10''
Bedroom
Second level
14'7'' x 11'6''
Primary Bedroom
Second level
20'2'' x 14'8''
2pc Bathroom
Main level
Measurements not available
Living room
Main level
16'0'' x 10'10''
Family room
Main level
15'0'' x 11'2''
Dining room
Main level
12'2'' x 11'0''
Eat in kitchen
Main level
14'2'' x 9'3''
Kitchen
Main level
11'7'' x 9'2''

Location

Learn more about this property
Listing provided by:
RE/MAX Aboutowne Realty Corp.
MLS® number:
40805570
Agent:
Joe Camastra
*Indicates required field
Name is required
Email is required
Please enter a valid phone number (e.g., 416-111-1111).