4 Divers Road, Brampton, Ontario L7A 5C8

Listed for:
$1,900
3 beds
2 baths
Listed 5 days ago
House for rent: 4 Divers Road, Brampton, Ontario L7A 5C8

View all 12 photos

About

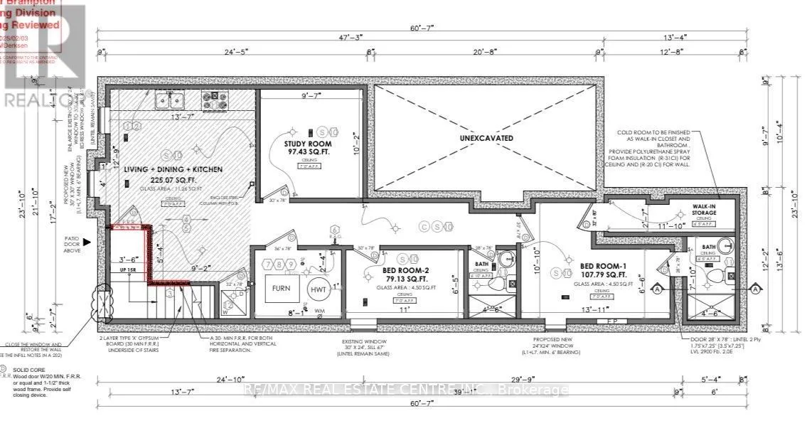
Edenbrook Hill & Remembrance Welcome to this brand new legal two-bedroom plus separate study room with 2 full washrooms basement apartment with A private separate entrance. This bright and well-designed basement unit offers functional & comfortable living in a Brampton desired Northwest Community neighborhood offers an open concept layout with modern laminate flooring throughout. Modern kitchen boasts stainless steel appliances & laminate flooring, it showcases stunning finishes that give it a bright and elegant feel with not of usual basement apartment. This apartment has all that you need and more, close to schools, parks, shops, bus stops etc. Perfect for professionals, couples or small families. One parking space is included. Tenant is responsible to pay 35% of utilities. (id:27476)

Property Highlights

MLS® Number
W12819198
Type
Single Family
Community Name
Northwest Brampton
Ownership Type
Freehold
Parking Space Total
1

Building

Building Type
House
Storeys
2.00
Square Footage
2000 - 2500 sqft
Bathrooms Total
2
Bedrooms Above Ground
2
Bedrooms Total
3
Exterior Finish
Brick
Fireplace Present
No
Basement Type
N/A
Basement Features
Apartment in basement
Building Heating Type
Forced air
Heating Fuel
Natural gas
Building Cooling Type
Central air conditioning

Utilities

Water
Municipal water
Utility Sewer
Sanitary sewer

Room Layout

Kitchen
Basement
3.88 m x 4.13 m
Living room
Basement
3.88 m x 4.13 m
Dining room
Basement
3.88 m x 4.13 m
Primary Bedroom
Basement
3.3 m x 4.24 m
Bedroom 2
Basement
1.95 m x 3.35 m
Study
Basement
3.1 m x 2.92 m

Location

Learn more about this property
Listing provided by:
RE/MAX REAL ESTATE CENTRE INC.
MLS® number:
W12819198
Agent:
Afzal Paracha
*Indicates required field
Name is required
Email is required
Please enter a valid phone number (e.g., 416-111-1111).

Street Spotlight - For rent