20 Dunblaine Crescent, Brampton, Ontario L6T 3H2

Listed for:
$889,000
4 beds
2 baths
Listed 55 days ago
House for rent: 20 Dunblaine Crescent, Brampton, Ontario L6T 3H2

View all 25 photos

About

Cross Streets: Torbram/Balmoral Drive. ** Directions: Torbram and Balmoral Drive. Welcome to 20 Dunblaine Crescent! A beautiful bungalow with a double car garage, situated at the top of a quiet court and backing onto a greenbelt. No homes behind! This lovely home offers you a totally private backyard with almost 97 feet across the back. The interior of the home features high end laminate throughout the main floor living spaces, an upgraded kitchen featuring quartz counters and large custom pantry with large pull out drawers and terrific storage space. The basement is finished with a side entrance, two large living areas, a gas fireplace, 3 pc bathroom plus a large walk in closet and pantry. Lots of space for extra bedrooms if necessary. The laundry/workshop room (used to be a kitchen )offers a laundry sink, a window, stove plug and lots of space for storage etc. 200 amp service! Located in a wonderful family oriented neighbourhood with various schools just theought he back gate and all of the other amenities you could need. Grocery store, convenience store, bus stop and Earnscliffe Recreation Centre. Plus the GO Train station is just 7 minutes away! (id:27476)

Property Highlights

MLS® Number
W12897572
Type
Single Family
Community Name
Southgate
Ownership Type
Freehold
Land Size
40.6 x 110 FT ; Pie shaped lot,96.9 feet across the back
Parking Space Total
5

Building

Building Type
House
Storeys
1.00
Square Footage
1100 - 1500 sqft
Bathrooms Total
2
Bedrooms Above Ground
3
Bedrooms Total
4
Amenities
Fireplace(s)
Exterior Finish
Stucco, Brick
Fireplace Present
Yes
Basement Type
N/A (Finished), N/A
Basement Features
Separate entrance
Building Heating Type
Forced air
Heating Fuel
Natural gas
Building Cooling Type
Central air conditioning

Utilities

Water
Municipal water
Utility Sewer
Sanitary sewer

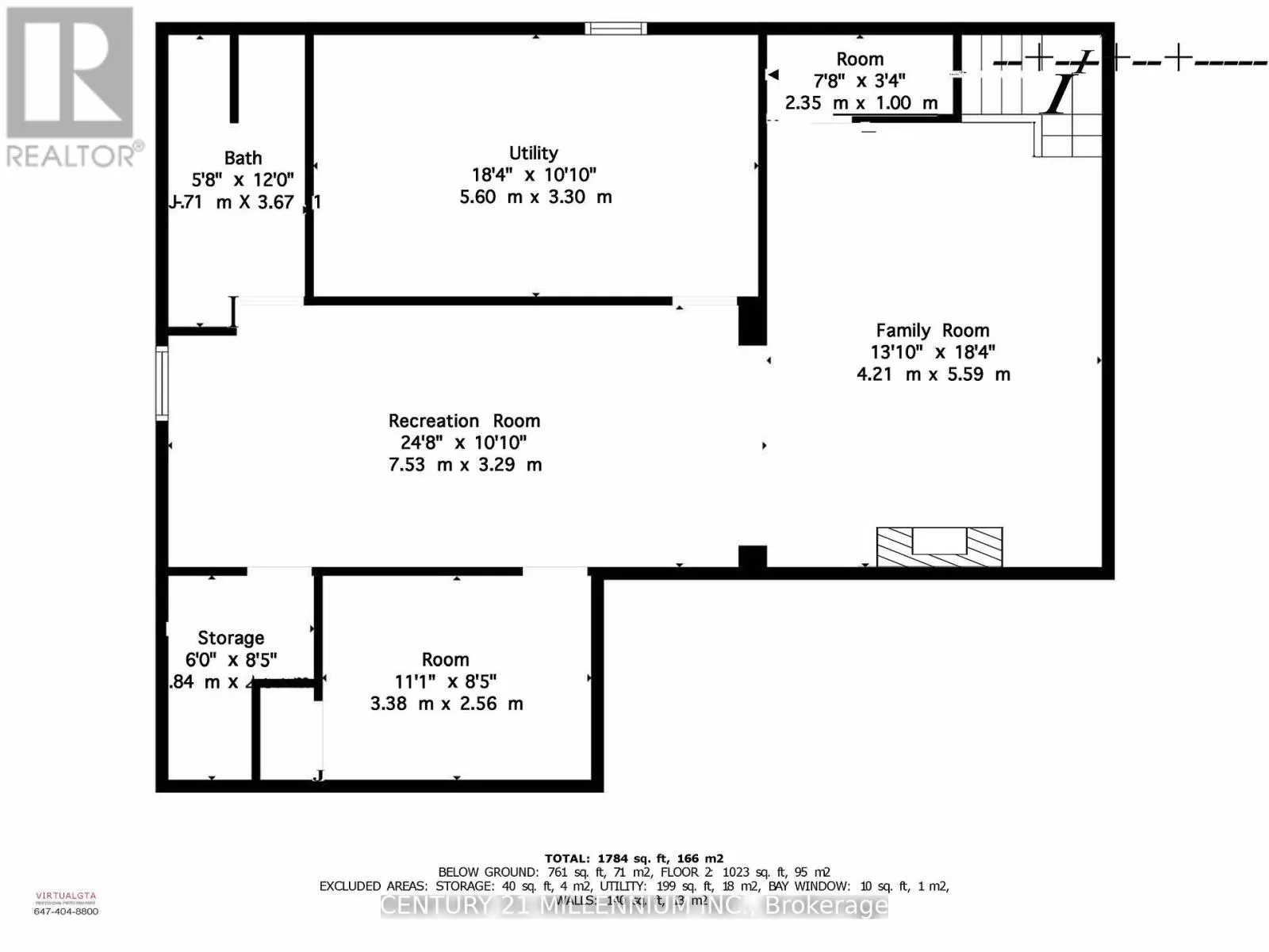
Room Layout

Den
Basement
11.97 m x 3.36 m
Laundry room
Basement
5.74 m x 3.35 m
Den
Basement
3.49 m x 2.36 m
Pantry
Basement
2.53 m x 1.3 m
Kitchen
Main level
4.46 m x 3.34 m
Living room
Main level
5.37 m x 3.31 m
Dining room
Main level
3.04 m x 2.46 m
Primary Bedroom
Main level
4.26 m x 3.34 m
Bedroom 2
Main level
3.64 m x 2.67 m
Bedroom 3
Main level
3.29 m x 2.75 m

Location

Learn more about this property
Listing provided by:
CENTURY 21 MILLENNIUM INC.
MLS® number:
W12897572
Agent:
Holly Parkes
*Indicates required field
Name is required
Email is required
Please enter a valid phone number (e.g., 416-111-1111).

Community Spotlight: Homes For sale in Your Neighborhood