24 Accent Circle, Brampton, Ontario L7A 0L2

Listed for:
$2,900
3 beds
3 baths
Listed 7 days ago
House for rent: 24 Accent Circle, Brampton, Ontario L7A 0L2

View all 37 photos

About

Cross Streets: Mayfield Rd & McLaughlin. ** Directions: Mayfield Rd and Mclaughlin. Wooow, woow, woow Look at this gorgeous family room located in between the levels. Welcome to this exquisite semi-detached home situated within a desirable neighbourhood. This property features three bedrooms, Living room with Dining, and a spacious family room, located between the main and second floors. The kitchen is equipped with contemporary stainless steel appliances, a refined backsplash, and a combined breakfast area that extends onto a wooden deck, providing an ideal setting for outdoor dining and entertaining. The residence is freshly painted, brand new laminated floors in the bedrooms, bathed in natural light, facilitated by its 9-nine-foot ceilings and strategically placed pot lights. Additional features include an electric vehicle charger in the garage and a smart thermostat for your convenience. The property's proximity to highways, parks, grocery stores, schools, and daycare centres renders it an ideal residence for families and commuters alike. The Tenant is responsible for all utilities, Gas, Hydro, Water, Hot water tank rental, Internet and lawn maintenance, including snow shovelling. Property virtually staged, book your showing today before it's gone! (id:27476)

Property Highlights

MLS® Number
W12766926
Type
Single Family
Community Name
Northwest Sandalwood Parkway
Ownership Type
Freehold
Land Size
28.1 x 88.7 FT
Parking Space Total
3

Building

Building Type
House
Storeys
2.00
Square Footage
1500 - 2000 sqft
Bathrooms Total
3
Bedrooms Above Ground
3
Bedrooms Total
3
Exterior Finish
Brick
Fireplace Present
No
Basement Type
Full
Basement Features
Building Heating Type
Forced air
Heating Fuel
Natural gas
Building Cooling Type
Central air conditioning

Utilities

Water
Municipal water
Utility Sewer
Sanitary sewer

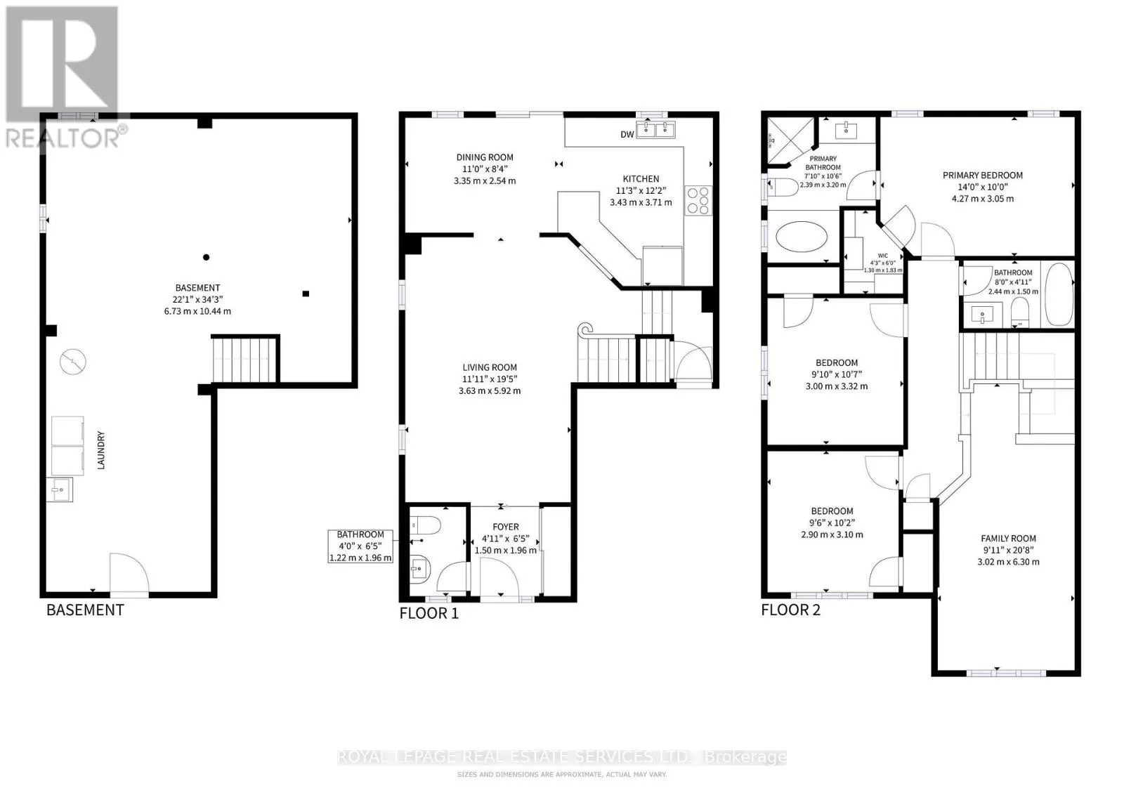
Room Layout

Bedroom 2
Second level
3.32 m x 3 m
Bedroom 3
Second level
3.1 m x 2.9 m
Bathroom
Second level
2.44 m x 1.5 m
Primary Bedroom
Second level
4.27 m x 3.05 m
Bathroom
Second level
3.2 m x 2.39 m
Other
Second level
1.83 m x 1.3 m
Other
Basement
10.44 m x 6.73 m
Foyer
Main level
1.96 m x 1.5 m
Living room
Main level
5.92 m x 3.63 m
Dining room
Main level
5.92 m x 3.63 m
Eating area
Main level
2.54 m x 3.35 m
Kitchen
Main level
3.71 m x 3.43 m
Family room
In between
6.3 m x 3.02 m

Location

Learn more about this property
Listing provided by:
ROYAL LEPAGE REAL ESTATE SERVICES LTD.
MLS® number:
W12766926
Agent:
Arjwan Yahya
*Indicates required field
Name is required
Email is required
Please enter a valid phone number (e.g., 416-111-1111).

Community Spotlight: Homes For rent in Your Neighborhood