2 Balmoral Street, Brant, Ontario N3L 0C8

Listed for:
$1,999,000
0 beds
0 baths
Listed 112 days ago
Multi-Family for rent: 2 Balmoral Street, Brant, Ontario N3L 0C8

View all 41 photos

Learn more about this property
Listing provided by:
Sotheby's International Realty Canada, Brokerage
MLS® number:
X12315799
Agent:
Kevin Haight
*Indicates required field
Name is required
Email is required
Please enter a valid phone number (e.g., 416-111-1111).

About

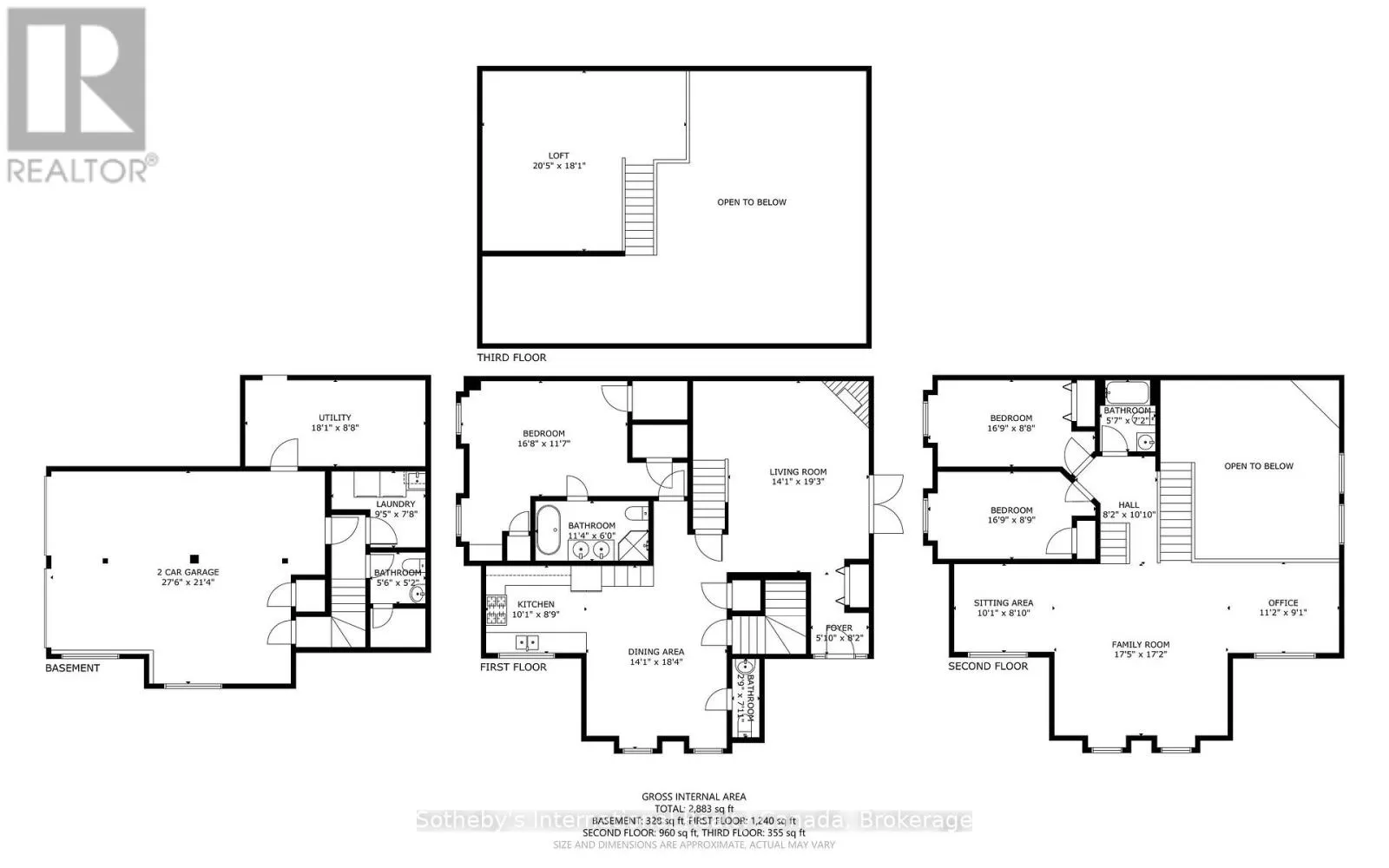
Cross Streets: William Street and Grand River N. ** Directions: Willow Street towards Balmoral Street. Incredible opportunity for investor or owner/operator with this purpose built 4-plex near the banks of the Grand River in beautiful Paris Ontario! Over 5,800 sqft including a 2,883 sqft suite with 3 bedrooms and 4 bathrooms and double attached garage. 3 secondary suites including 1 fully accessible unit and 2 other units with lofts. Separate water, hydro and gas meters for all units. High efficiency spec including on demand water heaters and source water conditioning. This property is impeccably owner/operator maintained with ample parking, privacy fencing and architecturally inspired landscaping. Located on a quiet court only steps to the Grand River, walking trails and the downtown core of Paris. Stroll or bike along the pathways, walk to the nearby restaurants, cafes and shops or relax with friends for a drink on one of the many outdoor patios perched on the river's edge . This section of the Grand River boasts some of the best fly fishing in south western Ontario. Wildlife abounds here with daily sightings of great blue heron, river otter, deer, mink and bald eagles among the most common of visitors. High quality lifestyle with substantial residual income awaits the next owner of this unique and thoughtfully planned property in an extraordinary location. (id:27476)

Property Highlights

MLS® Number
X12315799
Type
Multi-family
Community Name
Paris
Land Size
78.22 x 97.45 FT
Parking Space Total
9

Building

Building Type
Multi-Family
Square Footage
5853 sqft
Fireplace Present
No
Basement Type
Basement Features
Building Heating Type
Coil Fan
Heating Fuel
Building Cooling Type
Fully air conditioned

Utilities

Water
Municipal water

Location