131 Daugaard Avenue, Brant, Ontario N3L 0L6

Listed for:
$1,399,000
6 beds
5 baths
Listed 156 days ago
House for rent: 131 Daugaard Avenue, Brant, Ontario N3L 0L6

View all 50 photos

About

Cross Streets: Daugaard and Court. ** Directions: Turn towards King Edward St, Rest Acres Rd and then onto Daugaard Ave. If luxury living had an address, it would be 131 Daugaard Ave in Paris. This 6-bed, 5-bath executive home offers around 5000 sq.ft. of finished living space and over $500,000 in premium upgrades, designed for families who refuse to compromise on quality, comfort, or lifestyle. Step inside the grand foyer with soaring ceilings and a custom open-riser staircase a showpiece that sets the tone for the craftsmanship throughout. The main level features 11' ceiling, wide-plank hardwood, elegant millwork, designer lighting, and a spacious open-concept layout perfect for entertaining. The coffered dining room ceiling with cove lighting adds a touch of architectural artistry and is perfect for family gatherings.The chef's kitchen is a standout, equipped with Wolf + Sub-Zero appliances, Caesarstone quartz counters, a large island, upgraded cabinetry, and butler's walk-thru pantry. The living room is anchored by a modern gas fireplace and oversized windows that flood the space with natural light.Upstairs, the primary suite is a true retreat with a tray ceiling, walk-in closet, makeup vanity and a spa-like ensuite featuring a freestanding tub, glass shower, double sided fireplace and double sinks. Second Bedroom features its own ensuite and Bedrooms three & four share a stylish Jack & Jill bathroom, ensuring every family member has comfort and privacy. The fully finished basement is an entertainer's paradise, featuring a spacious games room, sleek bar area, and an open concept layout-the perfect setting for movie nights, or celebrations, two additional bedrooms, a full bath. The separate basement entrance provides flexibility for a future in-law suite or income potential perfect for multigenerational living. Located in one of Paris' most sought-after neighbourhoods, this property offers the perfect blend of luxury living and small-town charm. Enjoy nearby trails, top-rated schools, parks, cafés, and the scenic Grand River - all just minutes away. (id:27476)

Property Highlights

MLS® Number
X12534124
Type
Single Family
Community Name
Paris
Ownership Type
Freehold
Land Size
55.8 x 115.9 FT
Parking Space Total
6

Building

Building Type
House
Storeys
2.00
Square Footage
3000 - 3500 sqft
Bathrooms Total
5
Bedrooms Above Ground
4
Bedrooms Total
6
Amenities
Fireplace(s) Golf Nearby, Hospital, Park, Place of Worship, Schools
Exterior Finish
Brick Veneer, Concrete
Fireplace Present
Yes
Basement Type
Full (Finished)
Basement Features
Building Heating Type
Forced air
Heating Fuel
Natural gas
Building Cooling Type
Central air conditioning

Utilities

Water
Municipal water
Utility Sewer
Sanitary sewer

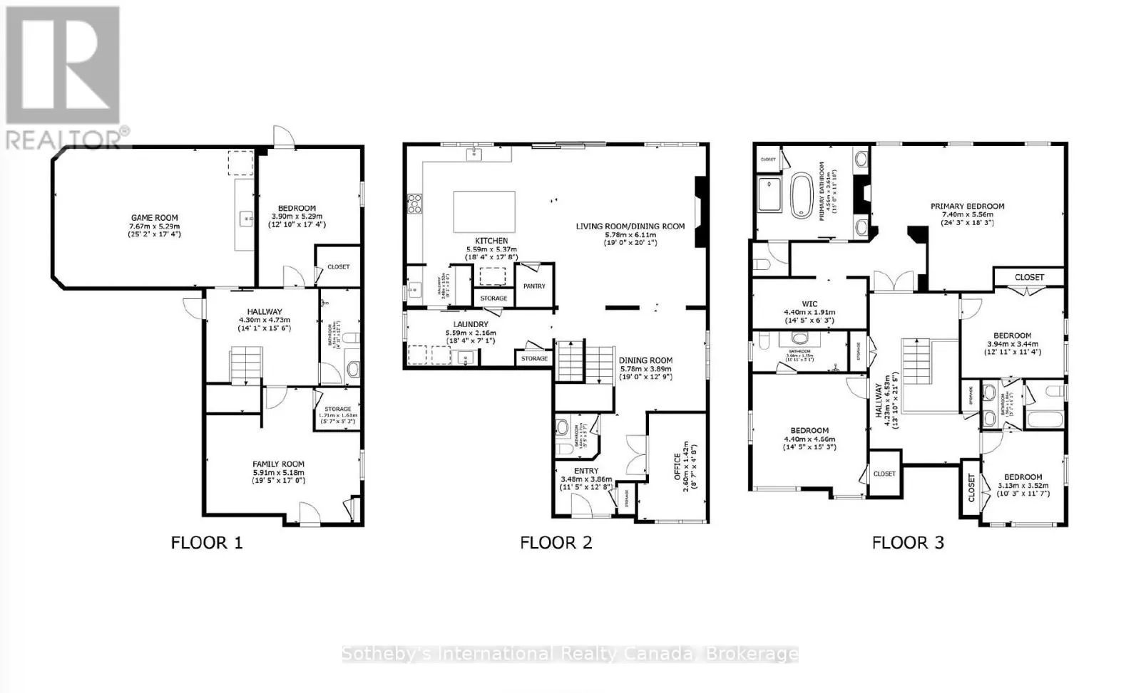
Room Layout

Primary Bedroom
Second level
7.4 m x 5.56 m
Bathroom
Second level
4.56 m x 3.61 m
Bedroom
Second level
3.94 m x 3.44 m
Bathroom
Second level
1.56 m x 1.86 m
Bedroom
Second level
3.13 m x 3.52 m
Bedroom
Second level
4.4 m x 4.66 m
Bathroom
Second level
3.64 m x 1.55 m
Games room
Basement
7.67 m x 5.28 m
Bedroom
Basement
3.9 m x 5.29 m
Bedroom
Basement
5.91 m x 5.18 m
Bathroom
Basement
3.68 m x 1.5 m
Pantry
Main level
2.48 m x 1.52 m
Mud room
Main level
5.59 m x 2.16 m
Foyer
Main level
3.48 m x 3.86 m
Office
Main level
2.6 m x 1.42 m
Bathroom
Main level
1.64 m x 1.71 m
Dining room
Main level
5.78 m x 3.89 m
Living room
Main level
5.78 m x 6.11 m
Kitchen
Main level
5.59 m x 5.37 m

Location

Learn more about this property
Listing provided by:
Sotheby's International Realty Canada, Brokerage
MLS® number:
X12534124
Agent:
Alicia Haight
*Indicates required field
Name is required
Email is required
Please enter a valid phone number (e.g., 416-111-1111).

Community Spotlight: Homes For sale in Your Neighborhood