220-221 - 505 Park Road N, Brantford, Ontario N3R 7K8

Listed for:
$16
0 beds
0 baths
Listed 66 days ago
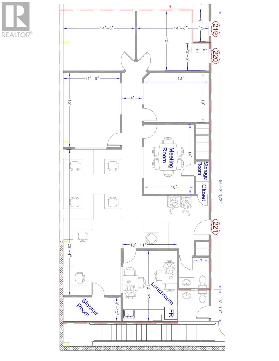
Offices for rent: 220-221 - 505 Park Road N, Brantford, Ontario N3R 7K8

View all 10 photos

Learn more about this property
Listing provided by:
HODGINS REALTY GROUP INC.
MLS® number:
X8057474
Agent:
James S. Hodgins
*Indicates required field
Name is required
Email is required
Please enter a valid phone number (e.g., 416-111-1111).

About

Wayne Gretzky & Dunsdon Suite 220-221 is a 2380 sq. ft professional office space in well maintained uilding available for lease. The unit was rcently rfresdhes to a good standard. Lyout consists of a reception area, a large open orking area, four private offices, board room, lunch room, storage room, and private washroom. Signage available on Wayne Gretzky Pwky. (id:27476)

Property Highlights

MLS® Number
X8057474
Type
Office
Land Size
169.9 x 491.24 FT
Parking Space Total
128

Building

Building Type
Offices
Square Footage
2380 sqft
Amenities
Highway, Public Transit
Fireplace Present
No
Basement Type
Basement Features
Building Heating Type
Forced air
Heating Fuel
Natural gas
Building Cooling Type
Fully air conditioned

Utilities

Water
Municipal water

Location