75 Plant Farm Boulevard Unit# 5, Brantford, Ontario N3S 7W3

Listed for:
$10
0 beds
0 baths
Listed 110 days ago
75 Plant Farm Boulevard Unit# 5, Brantford, Ontario N3S 7W3

View all 26 photos

About

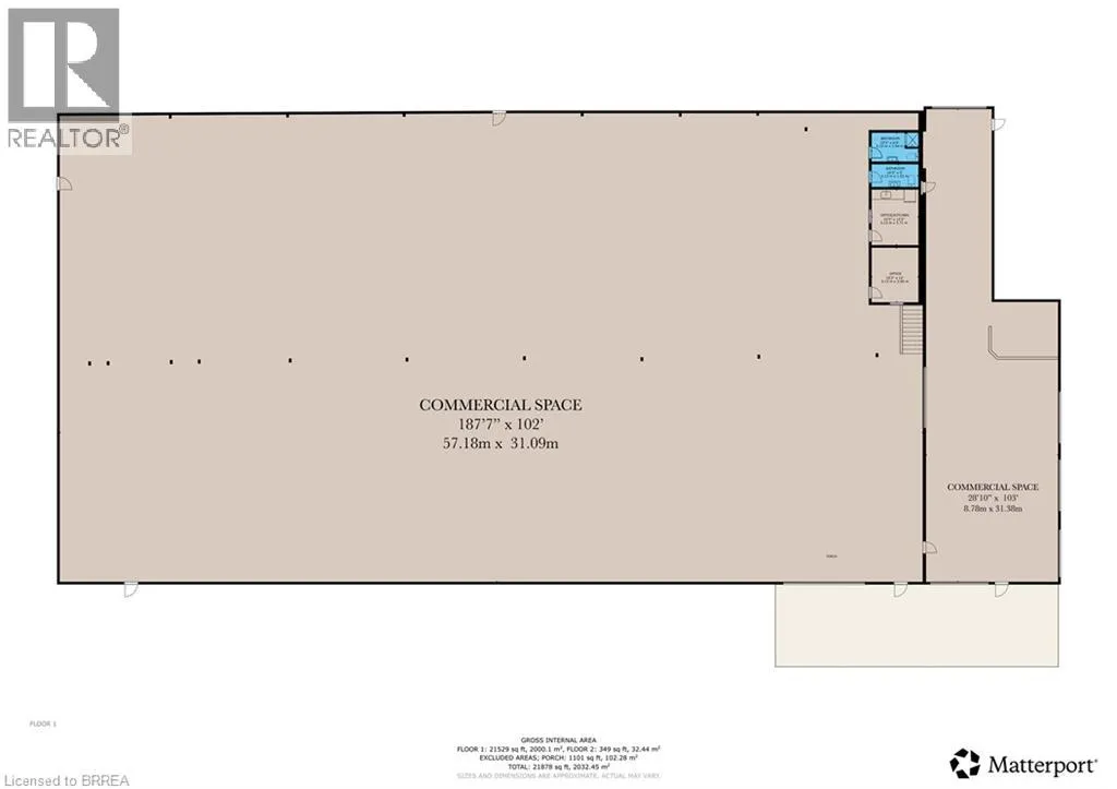
Corner of Henry Street and Plant Farm 21,878 of industrial space ideally located with easy access to Hwy 403 with GE General Employment zoning allowing for a wide range of industrial/warehouse uses. Clear height 20'; power: 3000 amps; 5 ton bridge crane. Building is sprinklered. (id:27476)

Property Highlights

MLS® Number
40782123
Type
Industrial
Ownership Type
Freehold
Land Size
0|Unknown

Building

Storeys
1.00
Square Footage
21878 sqft
Amenities
Public Transit
Fireplace Present
No
Basement Type
None
Basement Features
Building Heating Type
Heating Fuel
Building Cooling Type

Utilities

Water
Municipal water
Utility Sewer
Municipal sewage system

Location

Learn more about this property
Listing provided by:
Re/Max Twin City Realty Inc
MLS® number:
40782123
Agent:
Ed Doucet
*Indicates required field
Name is required
Email is required
Please enter a valid phone number (e.g., 416-111-1111).