41 Morton Avenue E, Brantford, Ontario N3R 7J5

Listed for:
$15
0 beds
0 baths
Listed 87 days ago
Warehouse for rent: 41 Morton Avenue E, Brantford, Ontario N3R 7J5

View all 6 photos

About

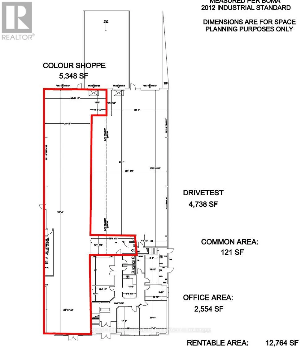
Morton Avenue / West Street Professionally managed industrial unit available for lease, suitable for retail, service industrial, manufacturing, warehousing, or recreational uses. Strategically located in Brantford, offering excellent exposure, a strong labour pool, and rapid access to Highway 403. High traffic location enhanced by neighbouring DriveTest tenancy. (id:27476)

Property Highlights

MLS® Number
X12747986
Type
Industrial
Land Size
5348 ac

Building

Building Type
Warehouse
Square Footage
5348 sqft
Amenities
Highway, Public Transit
Fireplace Present
No
Basement Type
Basement Features
Building Heating Type
Forced air
Heating Fuel
Natural gas
Building Cooling Type
Partially air conditioned, Fully air conditioned

Utilities

Water
Municipal water

Location

Learn more about this property
Listing provided by:
ROYAL LEPAGE FLOWER CITY REALTY
MLS® number:
X12747986
Agent:
Aman Matharu
*Indicates required field
Name is required
Email is required
Please enter a valid phone number (e.g., 416-111-1111).