137 Nelson Street Unit# 303, Brantford, Ontario N3S 4B5

Listed for:
$3,200
0 beds
0 baths
Listed 18 days ago
137 Nelson Street Unit# 303, Brantford, Ontario N3S 4B5

View all 10 photos

About

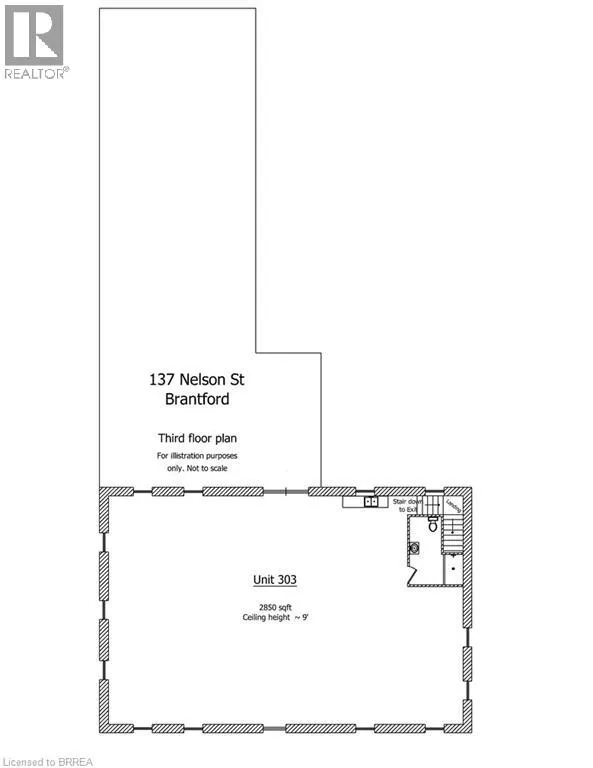
Just steps from Clarence Street and the heart of downtown Brantford, this beautifully updated and revitalized historic mixed-use building offers a range of flexible leasing opportunities. 3rd floor 2550 sq ft office space features 12' high ceilings with restored original post and beam structure exposed creating a character-rich environment. The building has multiple unit configurations available, including office, retail, private studio, warehousing, and storage spaces—ideal for businesses of various sizes and industries. Units may be leased individually or combined to create a custom footprint tailored to your operational needs. Each unit includes onsite parking and benefits from close proximity to public transit, the university campus, and all the amenities downtown Brantford has to offer. Need more space, this unit combines well with units 102 & 103 & 203 (MLS®#40801634 & 40801664). A rare opportunity to position your business in a historical building with modern functionality in a high-visibility, high-demand location. (id:27476)

Property Highlights

MLS® Number
40801681
Type
Other
Ownership Type
Freehold
Land Size
under 1/2 acre

Building

Storeys
1.00
Square Footage
2850 sqft
Amenities
Public Transit
Exterior Finish
Brick, Stucco
Fireplace Present
No
Basement Type
None
Basement Features
Building Heating Type
Heating Fuel
Building Cooling Type

Utilities

Water
Municipal water
Utility Sewer
Municipal sewage system

Location

Learn more about this property
Listing provided by:
EXP Realty
MLS® number:
40801681
Agent:
Alex Faux
*Indicates required field
Name is required
Email is required
Please enter a valid phone number (e.g., 416-111-1111).

Street Spotlight - For lease