138 Henry Street Unit# Upper, Brantford, Ontario N3S 5C7

Listed for:
$2,100
3 beds
1 baths
Listed 7 days ago
House for rent: 138 Henry Street Unit# Upper, Brantford, Ontario N3S 5C7

View all 23 photos

About

For lease is a bright and comfortable 3-bedroom, 1-bathroom suite that offers both convenience and privacy. This home features a private entrance, in-suite laundry, and 2 dedicated parking spaces. The layout is functional and inviting, making it an ideal space for anyone seeking a clean, well-maintained place to call home. Tastefully updated with modern finishes, and comfortable lifestyle in mind. Situated close to all major transit routes, shopping amenities, and beautiful parks, the location is perfect for commuters and anyone who values walkable access to everyday essentials. This is a fantastic opportunity to lease a quality home in a highly accessible and vibrant neighbourhood.. (id:27476)

Property Highlights

MLS® Number
40815340
Type
Single Family
Ownership Type
Freehold
Land Size
under 1/2 acre
Parking Space Total
2

Building

Building Type
House
Storeys
1.00
Square Footage
976 sqft
Bathrooms Total
1
Bedrooms Above Ground
3
Bedrooms Total
3
Amenities
Public Transit, Schools, Shopping
Exterior Finish
Vinyl siding
Fireplace Present
No
Basement Type
None
Basement Features
Building Heating Type
Forced air
Heating Fuel
Building Cooling Type
Central air conditioning

Utilities

Water
Municipal water
Utility Sewer
Municipal sewage system

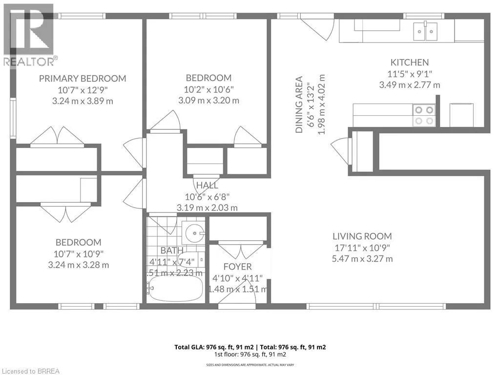
Room Layout

Foyer
Main level
4'10'' x 4'11''
Bedroom
Main level
10'7'' x 10'9''
Bedroom
Main level
10'2'' x 10'6''
Primary Bedroom
Main level
10'7'' x 12'9''
4pc Bathroom
Main level
4'11'' x 7'4''
Dining room
Main level
6'6'' x 13'2''
Kitchen
Main level
11'5'' x 9'1''
Living room
Main level
17'11'' x 10'9''

Location

Learn more about this property
Listing provided by:
Re/Max Twin City Realty Inc
MLS® number:
40815340
Agent:
Alla Sharma
*Indicates required field
Name is required
Email is required
Please enter a valid phone number (e.g., 416-111-1111).