25 Harbour Street, Brighton, Ontario K0K 1H0

Listed for:
$524,900
4 beds
2 baths
Listed 3 days ago
House for rent: 25 Harbour Street, Brighton, Ontario K0K 1H0

View all 36 photos

About

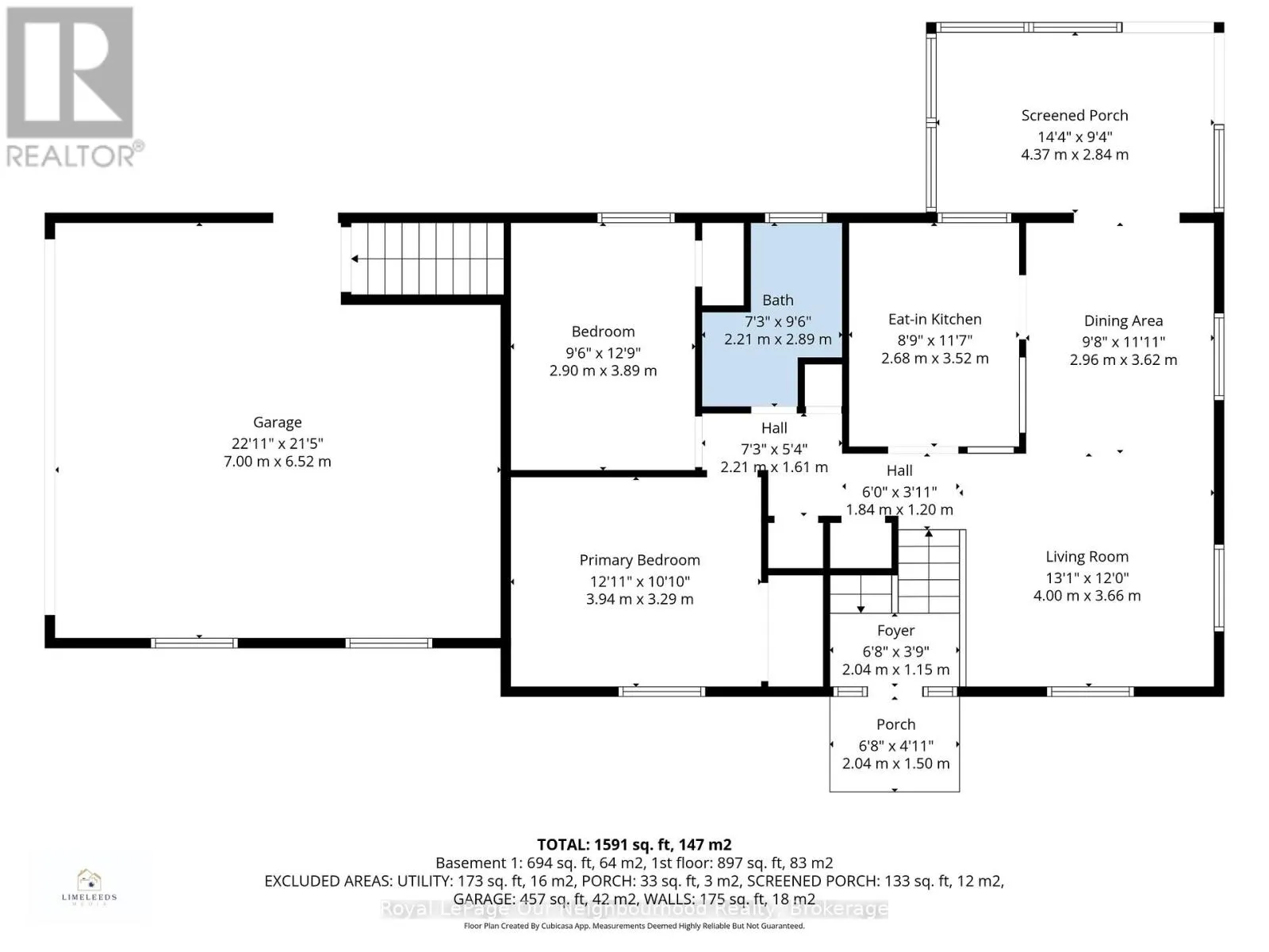
Cross Streets: Baldwin / Harbour. ** Directions: West onto Harbour from Prince Edward St. Tucked on a mature corner lot in desirable Brighton, this bright and inviting raised bungalow offers space, comfort, and a layout made for everyday living. The open-concept upper level features a combined living and dining area with large pass-throughs to the kitchen, keeping everyone connected. Walk-out from the dining area to the sunroom, an ideal spot to unwind. On warmer days step out from the sunroom to enjoy the wrap-around deck, gazebo, and tranquil backdrop, owned by the Nature Conservancy of Canada. Two bedrooms and a 4-piece washroom complete the main level. Downstairs, the finished lower level continues to impress with large windows, a cozy rec room with a gas fireplace, two additional bedrooms, and a 3-piece washroom. Complete with an attached 1.5 car garage, this home is full of warmth and potential. (id:27476)

Property Highlights

MLS® Number
X12782430
Type
Single Family
Community Name
Brighton
Ownership Type
Freehold
Land Size
66 x 132 FT ; Wider at rear|under 1/2 acre
Parking Space Total
6

Building

Building Type
House
Storeys
1.00
Square Footage
700 - 1100 sqft
Bathrooms Total
2
Bedrooms Above Ground
2
Bedrooms Total
4
Amenities
Fireplace(s) Marina, Park, Place of Worship, Schools
Exterior Finish
Vinyl siding
Fireplace Present
Yes
Basement Type
N/A (Finished)
Basement Features
Building Heating Type
Forced air
Heating Fuel
Natural gas
Building Cooling Type
Central air conditioning

Utilities

Water
Municipal water
Utility Sewer
Sanitary sewer

Room Layout

Bedroom
Lower level
4.91 m x 3.55 m
Bedroom
Lower level
3.9 m x 3.02 m
Recreational, Games room
Lower level
4 m x 4.16 m
Utility room
Lower level
4.91 m x 3.63 m
Living room
Upper Level
4 m x 3.66 m
Dining room
Upper Level
2.96 m x 3.62 m
Kitchen
Upper Level
2.68 m x 3.52 m
Primary Bedroom
Upper Level
3.94 m x 3.29 m
Bedroom 2
Upper Level
2.9 m x 3.89 m

Location

Learn more about this property
Listing provided by:
Royal LePage Our Neighbourhood Realty
MLS® number:
X12782430
Agent:
Melissa Flynn
*Indicates required field
Name is required
Email is required
Please enter a valid phone number (e.g., 416-111-1111).