Lot 49 Lancaster Drive, Brighton, Ontario K0K 1H0

Listed for:
$639,000
2 beds
2 baths
Listed 65 days ago
House for rent: Lot 49 Lancaster Drive, Brighton, Ontario K0K 1H0

View all 3 photos

About

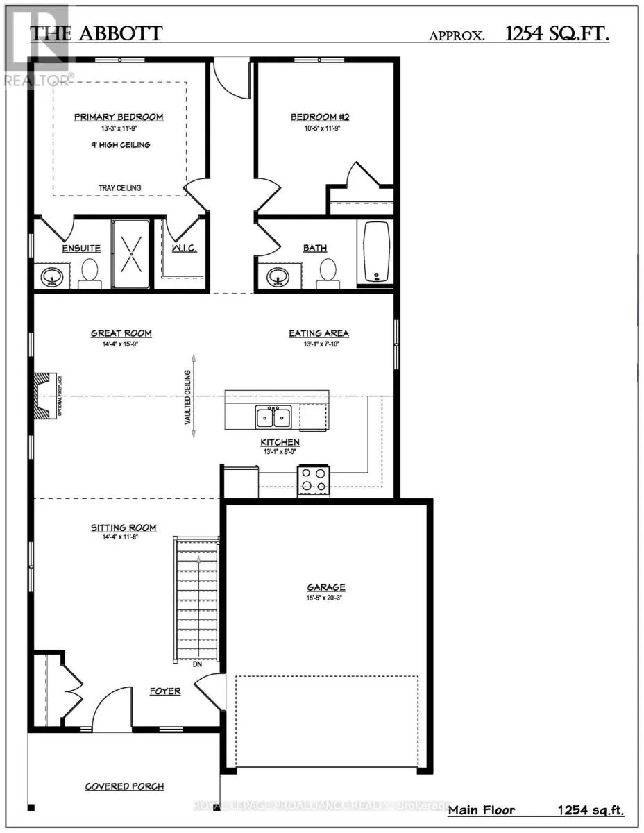
Ontario Street to Lancaster Drive WELCOME TO WESTGATE, Brighton's newest community, offering a selection of thoughtfully designed floor plans, attractive pricing and available lots with closings as early as Spring 2027. The neighbourhood is ideally situated between downtown and the stunning Presqu'ile Provincial Park, where you can hike nature trails, enjoy world-class bird watching, swim or relax along sandy beaches. "THE ABBOTT" is a stunning 2 Bedroom, 2 Bath bungalow, offering 1254 sq ft of main floor living space with beautiful features and finishes! Your customized kitchen is perfect for entertaining with a sit-up Island, modern lighting and ample counter space and cabinetry. Open-concept Dining, Kitchen and Great Room areas are enhanced by vaulted ceilings, creating a spacious and inviting atmosphere. The Primary suite offers a walk in closet and a luxurious ensuite with walk-in shower. An attached 1.5-car garage provides direct access to the foyer, while the bright lower level includes a rough-in bath that can be finished now or later for added living space. Additional features include Sodding, HRV and high-efficiency furnace for year-round comfort. An excellent opportunity to personalize your dream home with your own selections and finishes from floor to ceiling, inside and out! An unmatched location for recreation and convenience, WESTGATE places you a short bike, stroll or moments drive from Brighton's many amenities, including shopping, cafes, restaurants, Rec Centre, parks, curling club, YMCA, schools, tennis and pickleball courts. SEVERAL ADDITIONAL FLOOR PLANS AVAILABLE TO SUIT YOUR LIVING STYLE AND NEEDS! LISTING PRICE REFLECTS EXPANDED HST NEW RESIDENTIAL REBATE FOR ELIGIBLE PURCHASERS. (id:27476)

Property Highlights

MLS® Number
X12882578
Type
Single Family
Community Name
Brighton
Ownership Type
Freehold
Land Size
39.4 x 93.5 FT
Parking Space Total
3

Building

Building Type
House
Storeys
1.00
Square Footage
1100 - 1500 sqft
Bathrooms Total
2
Bedrooms Above Ground
2
Bedrooms Total
2
Amenities
Beach, Golf Nearby, Marina, Park
Exterior Finish
Vinyl siding
Fireplace Present
No
Basement Type
Full (Unfinished)
Basement Features
Building Heating Type
Forced air
Heating Fuel
Natural gas
Building Cooling Type
Air exchanger, Ventilation system

Utilities

Water
Municipal water
Utility Sewer
Sanitary sewer

Room Layout

Foyer
Main level
3.38 m x 1.55 m
Kitchen
Main level
3.99 m x 2.43 m
Dining room
Main level
3.99 m x 2.16 m
Great room
Main level
4.38 m x 4.84 m
Primary Bedroom
Main level
4.05 m x 3.62 m
Bathroom
Main level
2.46 m x 1.64 m
Sitting room
Main level
4.38 m x 3.59 m
Bedroom
Main level
3.2 m x 3.62 m
Bathroom
Main level
3.2 m x 1.64 m

Location

Learn more about this property
Listing provided by:
ROYAL LEPAGE PROALLIANCE REALTY
MLS® number:
X12882578
Agent:
Diana Scott
*Indicates required field
Name is required
Email is required
Please enter a valid phone number (e.g., 416-111-1111).

Street Spotlight - For sale