Lower - 33 Braeburn Street, Brighton, Ontario K0K 1H0

Listed for:
$1,800
2 beds
1 baths
Listed 2 days ago
House for rent: Lower - 33 Braeburn Street, Brighton, Ontario K0K 1H0

View all 13 photos

About

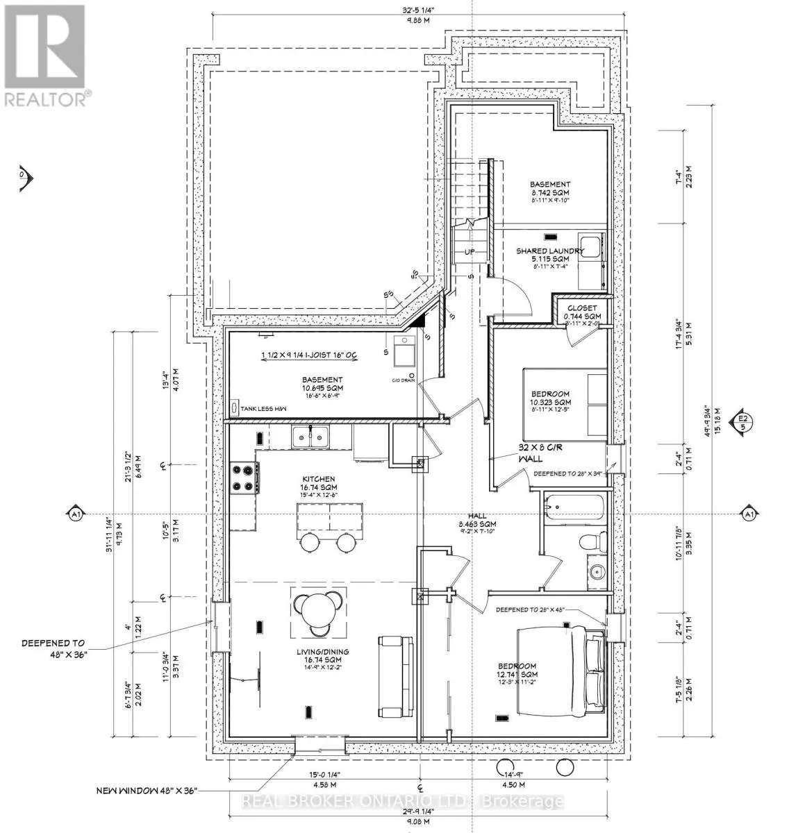
Cross Streets: Main St/Rundle Ln. ** Directions: From Main St/Hwy 2 exit south onto Rundle Lane. Turn east onto Braeburn. Move right into this recently completed, legal basement apartment offering modern finishes and everyday convenience. With utilities included, this bright and thoughtfully designed space features luxury vinyl plank flooring throughout and large windows that bring in plenty of natural light. The functional layout includes two well-sized bedrooms, each with its own closet, ideal for comfortable living. The contemporary kitchen is equipped with sleek quartz countertops and a built-in dishwasher, providing both style and practicality. Shared laundry is conveniently located in a common area, and one parking space is included. Tenant plays flat rate of 100/month for heat, hydro and water. (id:27476)

Property Highlights

MLS® Number
X12941528
Type
Single Family
Community Name
Brighton
Ownership Type
Freehold
Parking Space Total
1

Building

Building Type
House
Storeys
1.00
Square Footage
1100 - 1500 sqft
Bathrooms Total
1
Bedrooms Above Ground
2
Bedrooms Total
2
Exterior Finish
Brick, Vinyl siding
Fireplace Present
No
Basement Type
N/A (Finished)
Basement Features
Building Heating Type
Forced air
Heating Fuel
Natural gas
Building Cooling Type
Central air conditioning

Utilities

Water
Municipal water
Utility Sewer
Sanitary sewer

Room Layout

Kitchen
Lower level
4.69 m x 3.84 m
Living room
Lower level
4.54 m x 3.71 m
Bedroom
Lower level
3.75 m x 3.41 m
Bedroom 2
Lower level
3.81 m x 2.47 m

Location

Learn more about this property
Listing provided by:
REAL BROKER ONTARIO LTD.
MLS® number:
X12941528
Agent:
Marlene Boyle
*Indicates required field
Name is required
Email is required
Please enter a valid phone number (e.g., 416-111-1111).